**Standout Features:**
- Extended 3-bedroom semi-detached home.
- Open-plan kitchen/dining area with bi-fold doors and a roof lantern.
- Converted garage for entertainment use.
- Generous southwest-facing rear garden with decked patio.
- Driveway accommodating up to 3 cars.
- Renovated to modern standards with stylish fixtures.
**Concerns:**
- Situated in an area with above-average crime rates, which may be a consideration for some buyers.
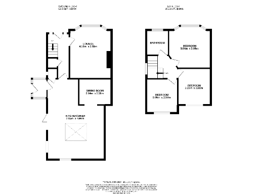
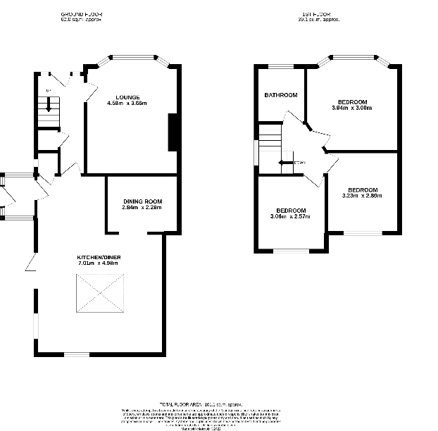
Nestled at the end of a tranquil cul-de-sac in the sought-after area of Idle, this superbly presented 3-bedroom semi-detached home is perfect for families seeking comfort and modern living. The property has been extensively renovated, featuring an impressive open-plan kitchen and dining room flooded with natural light from the bi-fold doors and central roof lantern. The stylish kitchen boasts anthracite units and integrated appliances, making it a dream space for home cooks and entertainers alike.
Upstairs offers three good-sized bedrooms and a contemporary bathroom, while a useful loft conversion presents additional storage or an ideal home office. The outdoor space is equally inviting, showcasing a large southwest-facing garden ideal for family gatherings and enjoying the evening sun. With a detached garage transformed into a modern entertainment facility, and a spacious driveway for three cars, the property ensures ample room for family and guests.
While the location does have above-average crime rates, the area's affluence and proximity to good schools—such as the highly-rated Idle CofE Primary School—make it a compelling option for families. Don’t miss your chance to own this beautifully upgraded home that combines spacious living with modern conveniences, as properties in this desirable location are sure to attract attention!
3 bedroom semi-detached house for sale in Pellon Terrace, Idle,, BD10 — £225,000 • 3 bed • 1 bath • 801 ft²
5 bedroom detached house for sale in Croftlands, Idle,, BD10 — £460,000 • 5 bed • 3 bath • 1851 ft²
4 bedroom detached house for sale in Javelin Close, Idle,, BD10 — £399,995 • 4 bed • 2 bath • 1554 ft²
3 bedroom semi-detached house for sale in Harper Grove, Idle,, BD10 — £229,995 • 3 bed • 1 bath • 816 ft²
4 bedroom detached house for sale in Evesham Grove, Idle,, BD10 — £339,950 • 4 bed • 1 bath • 1185 ft²
3 bedroom semi-detached house for sale in Woodbine Grove, Idle, Bradford, BD10 — £210,000 • 3 bed • 1 bath • 775 ft²










































































































