Spacious, flexible home with garage and big garden, perfect for young families.
- Large rear open-plan kitchen-diner with five bi-fold doors
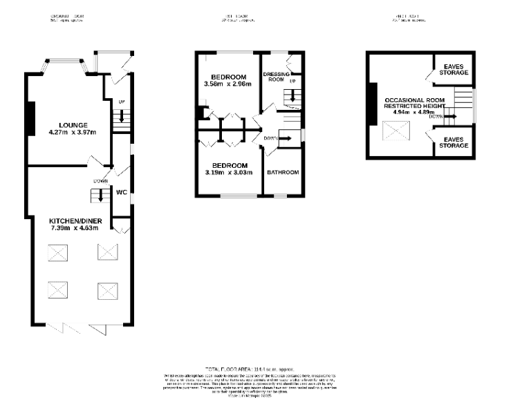
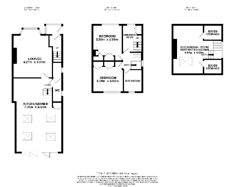
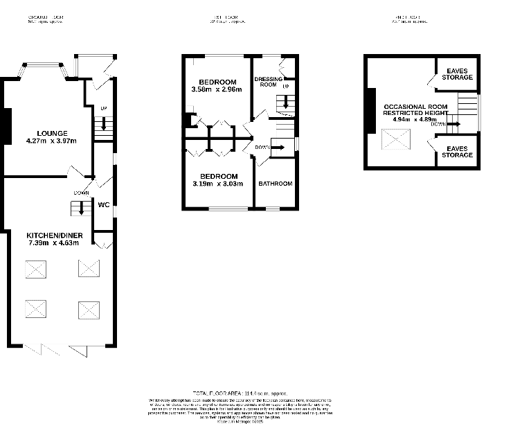
This extended three-storey semi offers spacious family living across almost 1,000 sq ft, with a striking open-plan kitchen-diner that opens via five bi-fold doors onto an enclosed, landscaped rear garden. The ground-floor bay lounge and generous driveway for three cars complement a longer-than-average detached garage currently used partly as a utility room. Practical upgrades include a recently installed condensing combi boiler, UPVC double glazing and underfloor heating to the extension.
The first floor provides two double bedrooms and a modern family bathroom, while a fitted dressing room leads to a loft conversion currently used as an occasional room. Note this roof-space is a non-regulated room and not classed as a formal third bedroom — useful flexible space but likely to require checks if you need official bedroom status. Buyers should also verify the double glazing installation dates and commission their own survey on services and structure.
Positioned close to several well-rated primary and secondary schools, nearby train stations and against a backdrop of local shops and facilities, this property suits growing families or professional couples seeking versatile living in a well-connected area. The plot is generous with practical parking, useful outdoor entertaining areas and a garage offering workshop or storage potential. Be aware the area records above-average crime statistics; sensible security checks and insurance considerations are recommended.
Overall, the house is presented to a good standard with thoughtful lighting, good kitchen appliances and solid family-focused layout. It represents a strong option for purchasers wanting immediate, comfortable accommodation with scope to adapt the loft and garage to their needs, subject to the usual checks and any necessary permissions.
3 bedroom semi-detached house for sale in Harper Grove, Idle,, BD10 — £229,995 • 3 bed • 1 bath • 816 ft²
3 bedroom semi-detached house for sale in Simpson Grove, Idle,, BD10 — £329,950 • 3 bed • 1 bath • 1109 ft²
5 bedroom detached house for sale in Croftlands, Idle,, BD10 — £460,000 • 5 bed • 3 bath • 1851 ft²
4 bedroom detached house for sale in Evesham Grove, Idle,, BD10 — £329,950 • 4 bed • 1 bath • 1185 ft²
3 bedroom semi-detached house for sale in Croftlands, Idle,, BD10 — £259,950 • 3 bed • 1 bath • 966 ft²
3 bedroom link detached house for sale in Evesham Grove, Idle,, BD10 — £279,950 • 3 bed • 2 bath • 1439 ft²






























































































































