Move-in ready home near village amenities, parking and garage.
Two double bedrooms — master fits super-king size bed
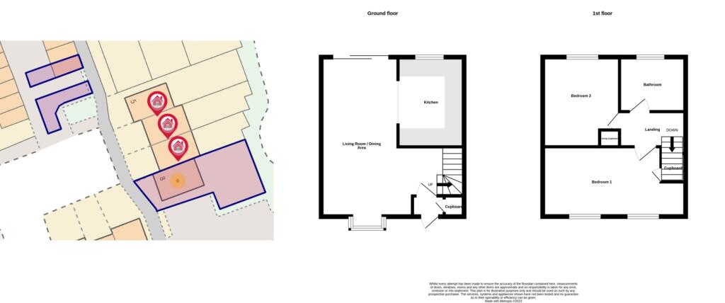
Nicely presented and newly renovated, this two-double-bedroom end-of-terrace sits at the quiet end of a cul-de-sac within walking distance of Smallfield village. The living room and adjoining dining area open easily to the garden, giving a comfortable flow for everyday life and entertaining. The kitchen is modern and ready to use; there's scope to extend at the rear subject to planning if you need more space.
Outside, the property benefits from an end-of-terrace position with a corner-plot garden, patio and an en-bloc garage plus two allocated parking spaces — useful in a small town setting. The house is freehold, has double glazing and gas central heating via a boiler and radiators, and is offered ready to move into, which suits buyers who want minimal immediate work.
Buyers should note there is a single family bathroom and the overall internal size is modest (around 700 sq ft). Local area data flags higher deprivation than average and crime at an average level; weigh these with the low flood risk and strong mobile/broadband performance. The property is a practical first purchase or downsizer option with potential to add value through a rear extension if required.
2 bedroom end of terrace house for sale in Gorse Drive, Smallfield, RH6 — £350,000 • 2 bed • 2 bath • 711 ft²
2 bedroom terraced house for sale in Thistle Way, Smallfield, RH6 — £350,000 • 2 bed • 1 bath • 706 ft²
2 bedroom end of terrace house for sale in Hayes Walk, Smallfield, Horley, RH6 — £360,000 • 2 bed • 1 bath • 549 ft²
2 bedroom terraced house for sale in Hayes Walk, Smallfield, Surrey, RH6 — £325,000 • 2 bed • 1 bath • 418 ft²
2 bedroom terraced house for sale in Hayes Walk, Smallfield, Surrey, RH6 — £320,000 • 2 bed • 1 bath • 411 ft²
3 bedroom detached house for sale in Grasslands, Smallfield, Surrey, RH6 — £450,000 • 3 bed • 1 bath • 1034 ft²


































































