**Standout Features:**
- Grade II listed property with traditional stone façade
- Excellent high street location in Berwick-upon-Tweed
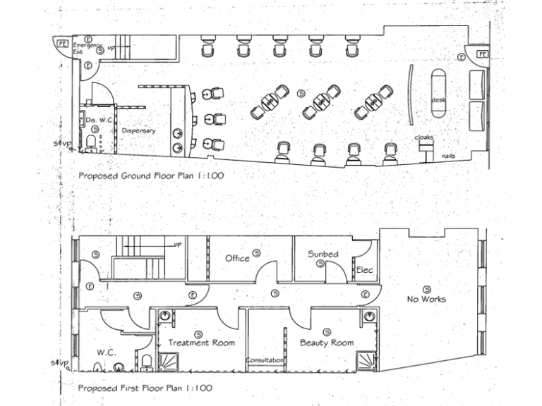
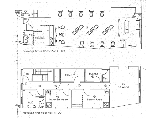
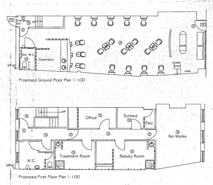
- Total space: 1,826 sq ft across two floors, suitable for various uses
- Potential for upper floor residential development (subject to planning)
- Close to major retailers like Specsavers, Boots, and WH Smith
- Chain-free sale at an attractive price of £95,000
**Potential Downsides:**
- Property may require renovations; listed status may complicate changes
- No onsite parking available
- Above-average local crime rate
This prime retail property on Marygate, Berwick-upon-Tweed, presents an incredible opportunity for investors or entrepreneurs looking to tap into a vibrant high street scene. With 1,826 sq ft of flexible space spread over two stories, the ground floor serves as a spacious salon with a kitchen and WC, while the first floor boasts additional treatment rooms, offices, and restrooms. The potential to convert the upper level for residential use could unlock significant value, catering to the demand for local housing.
Located in a bustling area near major retailers and amenities, this property enjoys high visibility and foot traffic, making it a lucrative spot for retail ventures or a multi-use space. Although the property requires some updates and lacks parking, its exceptional location and investment potential make it a compelling option. Explore the future possibilities while benefiting from the charm of this historic market town—opportunities like this don’t last long!
Shop for sale in Marygate, Berwick Upon Tweed, TD15 1BH, TD15 — £130,000 • 1 bed • 1 bath • 1628 ft²
High street retail property for sale in Church Street, Berwick Upon Tweed, Northumberland, TD15 — £275,000 • 3 bed • 1 bath • 1562 ft²
High street retail property for sale in 72-74 Marygate, Berwick-Upon-Tweed, Northumberland, TD15 — £425,000 • 1 bed • 1 bath • 3994 ft²
3 bedroom maisonette for sale in Church Street, Berwick upon Tweed, TD15 — £275,000 • 3 bed • 2 bath • 1561 ft²
3 bedroom maisonette for sale in 48 & 50a Bridge Street, Berwick upon Tweed, TD15 1AQ, TD15 — £265,000 • 3 bed • 1 bath • 2958 ft²
Commercial property for sale in 22-24 Hide Hill, Berwick-Upon-Tweed, Northumberland, TD15 — £345,000 • 1 bed • 1 bath • 6272 ft²






























