**Standout Features:**
- Historic Grade II Listed three-storey building.
- Prime location on vibrant Hide Hill, Berwick-Upon-Tweed.
- Flexible accommodation with multiple office and retail spaces.
- Four off-street car parking spaces.
- High foot traffic ideal for business growth.
**Concerns:**
- Renovating, developing, or extending may be challenging due to listing status.
- Structural issues present, particularly roof and render damage at the rear.
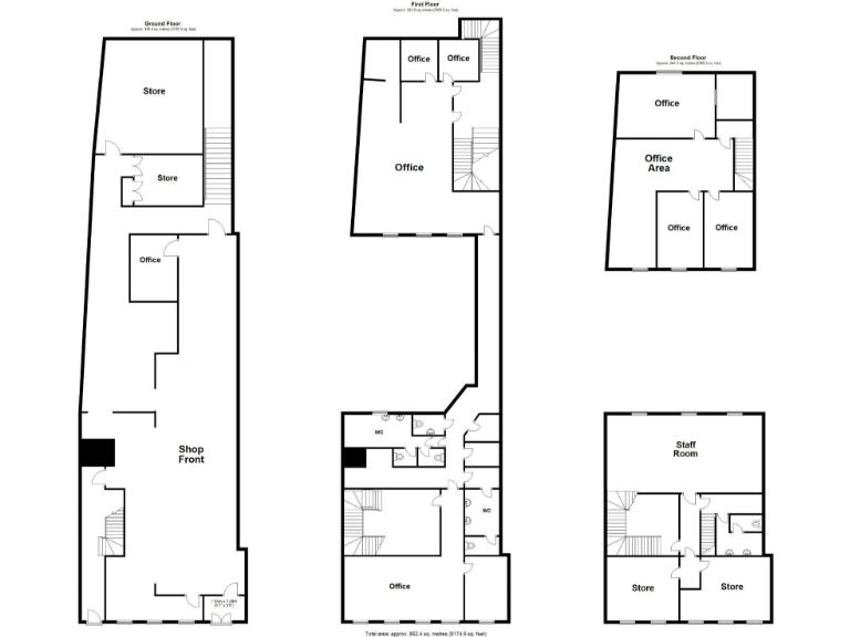
Discover a unique opportunity to invest in a prominent commercial building located at 22-24 Hide Hill, nestled in the heart of Berwick-upon-Tweed. This impressive Grade II Listed structure, dating back to the late 18th century, offers a spacious 6,272 sq ft of flexible accommodation spread over three levels, well-suited for retail or office use. The vibrant town center location ensures significant foot traffic, making it an ideal spot for businesses aiming to capitalize on the growing population and seasonal tourist influx.
This property features a well-designed front shop area, multiple office suites, and even a strong room, while its historic façade brings character and charm. However, potential buyers should consider the associated maintenance challenges—the rear of the building requires considerable repair, including roof and render work, and future renovations may be limited due to its listed status.
With excellent connectivity via road, rail, and air, this property not only serves a large catchment area but also boasts nearby amenities ranging from shops to leisure facilities. Don’t miss your chance to secure a prime asset in one of Northumberland’s dynamic towns—contact us today to arrange a viewing!
High street retail property for sale in Marygate, Berwick-Upon-Tweed, Northumberland, TD15 — £95,000 • 1 bed • 1 bath • 1826 ft²
3 bedroom maisonette for sale in 48 & 50a Bridge Street, Berwick upon Tweed, TD15 1AQ, TD15 — £265,000 • 3 bed • 1 bath • 2958 ft²
High street retail property for sale in 72-74 Marygate, Berwick-Upon-Tweed, Northumberland, TD15 — £425,000 • 1 bed • 1 bath • 3994 ft²
High street retail property for sale in Church Street, Berwick Upon Tweed, Northumberland, TD15 — £275,000 • 3 bed • 1 bath • 1562 ft²
3 bedroom maisonette for sale in Church Street, Berwick upon Tweed, TD15 — £275,000 • 3 bed • 2 bath • 1561 ft²
Shop for sale in Marygate, Berwick Upon Tweed, TD15 1BH, TD15 — £130,000 • 1 bed • 1 bath • 1628 ft²


































































