Energy-efficient new apartment near parks with strong connectivity.
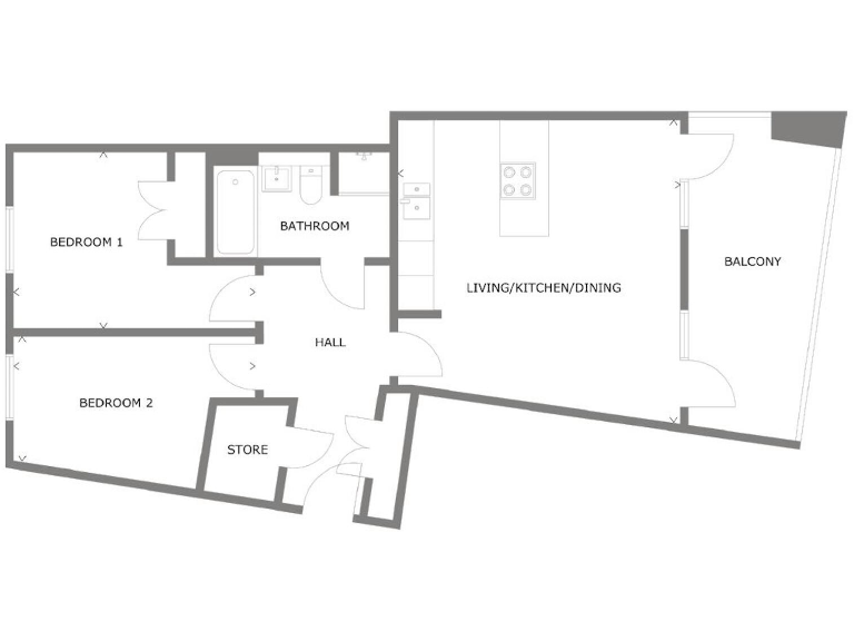
Two double bedrooms and two bathrooms in a 756 sq ft apartment
Freehold tenure (apartment) — uncommon for new flats
Contemporary fitted kitchen with integrated appliances
Solar panels and communal EV charging reduce running costs
Fast broadband and excellent mobile signal for home working
Landscaped green space; new parks and planned local amenities nearby
Area currently classified as very deprived — review local context
Cashback up to £22,500 valid only on reservations before Nov 2025
This two-bedroom freehold apartment sits in the new West Craigs Green development, offering contemporary finishes and energy-saving features suited to first-time buyers or investors. The interior includes integrated appliances, two bathrooms, laminate worktops, designer tiles and modern sanitaryware. Solar panels and communal EV charging reduce running costs and support an eco-conscious lifestyle.
The building benefits from landscaped green space, nearby new parks and planned local amenities (primary school, café, health centre) that will increase neighbourhood convenience as the area develops. Good mobile signal and fast broadband make the flat practical for remote working or streaming. The property is a standard-sized 756 sq ft apartment with a practical, traditional layout.
Notable positives are balanced by clear facts: the wider West Craigs area is currently classified as very deprived, and on-street or allocated parking is not specified in the listing. The cashback incentive (up to £22,500) is available only on selected plots for reservations made before the end of November 2025 and requires a completion date before the end of January 2026. Buyers should confirm parking arrangements and timing before committing.
Overall this is a modern, energy-efficient new-build apartment with immediate move-in appeal and future neighbourhood improvements planned. It suits buyers wanting low-maintenance living, energy savings and easy connectivity, but those prioritising established local amenities or guaranteed parking should check details prior to reservation.
2 bedroom apartment for sale in Meadowfield Road North, Edinburgh,
EH12 0DQ
, EH12 — £280,000 • 2 bed • 2 bath • 756 ft²
2 bedroom apartment for sale in Meadowfield Road North, Edinburgh,
EH12 0DQ
, EH12 — £275,000 • 2 bed • 2 bath • 756 ft²
2 bedroom apartment for sale in Meadowfield Road North, Edinburgh,
EH12 0DQ
, EH12 — £319,000 • 2 bed • 2 bath • 914 ft²
1 bedroom apartment for sale in Meadowfield Road North, Edinburgh,
EH12 0DQ
, EH12 — £222,000 • 1 bed • 1 bath • 568 ft²
1 bedroom apartment for sale in Meadowfield Road North, Edinburgh,
EH12 0DQ
, EH12 — £223,500 • 1 bed • 1 bath • 568 ft²
1 bedroom apartment for sale in Meadowfield Road North, Edinburgh,
EH12 0DQ
, EH12 — £224,500 • 1 bed • 1 bath • 568 ft²






























