**Standout Features:**
- Two-bedroom flat with amazing water views
- Requires renovation or modernization
- Excellent location near town and waterfront
- Share of freehold, no onward chain
- Suitable for investment or permanent residence
- On-street parking available
- Communal garden space
**Summary:**
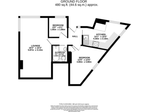
Discover endless potential in this charming two-bedroom flat, perfectly poised near the bustling town of Falmouth. Offering captivating water views, this property invites you to reimagine its space through thoughtful renovation. With a generous sitting room boasting 180-degree vistas, a small yet cozy bedroom ideal for a nursery or home office, and a kitchen with room for reconfiguration, the foundations are laid for your dream home or lucrative investment. 
Conveniently situated just a short walk from the town's vibrant shops, restaurants, and the stunning waterfront, this flat combines comfort and accessibility. The property comes with a share of freehold and is chain-free, making it an attractive prospect for first-time buyers or investors looking for a competitive entry in the market. While it may require modern updates, including improvements to the kitchen and bathroom, the cheap council tax and potential for increased value post-renovation position this flat as a rare find within a highly desirable area. Don’t miss this unique opportunity to secure a piece of Falmouth living—your vision awaits!
 2 bedroom apartment for sale in Falmouth, TR11 — £225,000 • 2 bed • 1 bath • 581 ft²
 2 bedroom apartment for sale in Falmouth, TR11 — £225,000 • 2 bed • 1 bath • 581 ft² 2 bedroom flat for sale in Stratton Terrace, Falmouth, Cornwall, TR11 — £170,000 • 2 bed • 1 bath • 856 ft²
 2 bedroom flat for sale in Stratton Terrace, Falmouth, Cornwall, TR11 — £170,000 • 2 bed • 1 bath • 856 ft² 2 bedroom flat for sale in Admirals Quay, The Packet Quays, TR11 — £270,000 • 2 bed • 2 bath • 829 ft²
 2 bedroom flat for sale in Admirals Quay, The Packet Quays, TR11 — £270,000 • 2 bed • 2 bath • 829 ft² 2 bedroom apartment for sale in Falmouth, TR11 — £235,000 • 2 bed • 1 bath • 904 ft²
 2 bedroom apartment for sale in Falmouth, TR11 — £235,000 • 2 bed • 1 bath • 904 ft² 4 bedroom terraced house for sale in Claremont Terrace, Falmouth, TR11 — £650,000 • 4 bed • 2 bath • 2323 ft²
 4 bedroom terraced house for sale in Claremont Terrace, Falmouth, TR11 — £650,000 • 4 bed • 2 bath • 2323 ft² 1 bedroom flat for sale in High Street, Falmouth, TR11 — £180,000 • 1 bed • 1 bath • 544 ft²
 1 bedroom flat for sale in High Street, Falmouth, TR11 — £180,000 • 1 bed • 1 bath • 544 ft²






























