**Standout Features:**
- Large, freehold property with 1 bedroom and 1 bathroom
- Extensive land: approximately 26.72 acres of agricultural land
- Unique planning permission for converting an outbuilding into a self-catering holiday cottage
- Coastal views and proximity to Morfa Nefyn Beach
- Off-street parking and large private garden
- Characterful, traditional Welsh cottage with historical charm
- Chain-free sale, allowing for immediate occupancy
**Potential Downsides:**
- Council tax is above average
- EPC rating of Band G, indicating possible energy inefficiencies
- Subject to an overage condition for future development
Discover the charm of Bryn Bras, a remarkable traditional Welsh cottage located in the picturesque village of Morfa Nefyn, enveloped by approximately 26.72 acres of pastoral land. Perfect for investors or nature enthusiasts, this property boasts an extensive private garden, stunning coastal views, and a stone outbuilding with the potential for transformation into a lucrative holiday rental, thanks to existing planning permission granted in 2008.
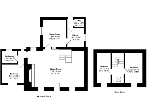
Nestled within a secluded rural setting, yet within reach of local amenities and mere moments away from the stunning Morfa Nefyn Beach, Bryn Bras is an enticing opportunity for families seeking a serene lifestyle, or for those wanting a rustic retreat. The property features a cozy living area with a multifuel burner, a handy ground-floor bedroom or study, and two additional bedrooms upstairs, catering to various living needs. While the cottage offers immense charm and potential, it also presents room for enhancement or expansion, allowing buyers to truly make it their own. Don't miss the chance to invest in this rare agricultural holding that combines a tranquil lifestyle with coastal liveliness—seize this unique opportunity today!
Land for sale in Llwyn Bugeilydd, Criccieth - Lot 2 | 18.12ac, LL52 — £140,000 • 1 bed • 1 bath
3 bedroom detached house for sale in Llwyn Bugeilydd, Criccieth - Lot 1, LL52 — £1,200,000 • 3 bed • 1 bath • 1270 ft²
2 bedroom detached house for sale in Bryn Canaid, Uwch Mynydd, LL53 — £575,000 • 2 bed • 1 bath • 1098 ft²
4 bedroom detached house for sale in Bwlchtocyn, Pwllheli, LL53 — £650,000 • 4 bed • 2 bath
10 bedroom farm house for sale in Cefn Mine, Rhydyclafdy - 86 ac, LL53 — £1,450,000 • 10 bed • 3 bath • 4768 ft²
Leisure facility for sale in Llwyn Bugeilydd, Criccieth - Lot 1, LL52 — £1,200,000 • 3 bed • 1 bath • 1270 ft²










































































