Bright two-bedroom home with year-round balcony and fast City links.
17th-floor apartment with long, unobstructed views
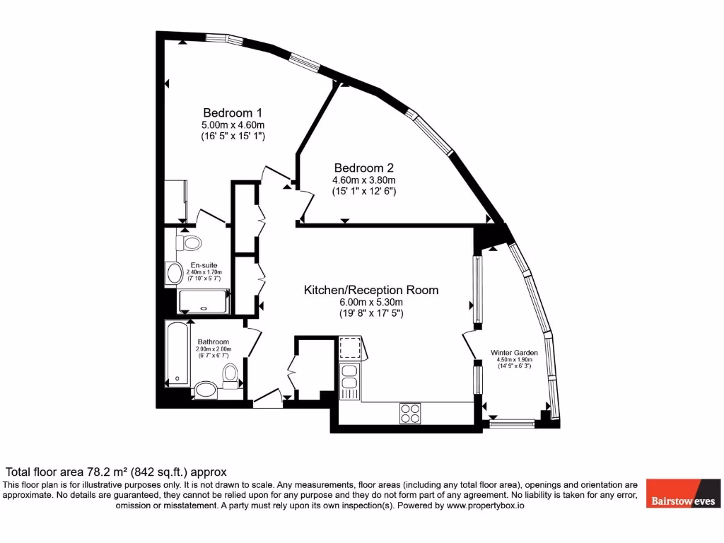
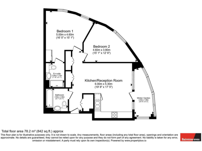
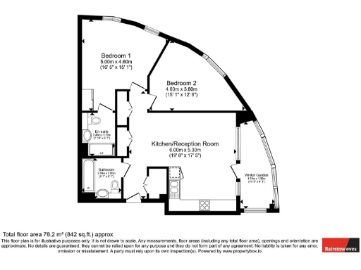
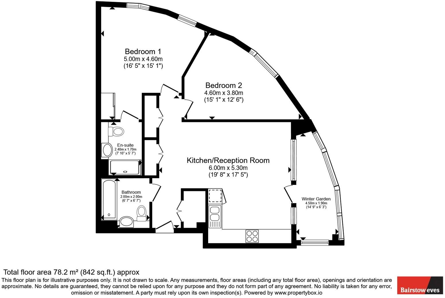
Set on the 17th floor of a contemporary 2020 development, this chain-free two-bedroom, two-bath apartment offers bright, open-plan living and long views across Barking. Floor-to-ceiling glazing and a winter garden extend the living space year-round, creating a flexible area for relaxation, home workouts or entertaining. The master bedroom includes an ensuite with a double-width shower and fitted wardrobes; a second full bathroom serves guests and family. Three hallway cupboards provide useful storage and one houses laundry plumbing and appliances.
Residents benefit from concierge service, two roof gardens with panoramic skyline views and the remaining NHBC warranty until 2030. Transport is a major convenience: Barking station is around a two-minute walk with Underground, Overground and C2C services giving access to the City in about 15 minutes. The building also has an EWS1 assessment available.
Practical points to note: the home is leasehold (241 years remaining) with a ground rent of £300 and moderate council tax. The immediate neighbourhood is an inner-city, highly connected area with many amenities, though local crime rates are very high and the wider area shows relative deprivation — important factors for buyers to consider when assessing long-term suitability.
This apartment suits small families or commuting professionals seeking contemporary, low-maintenance city living with excellent transport links and immediate access to local shops and services. It offers a ready-to-move-in layout with potential to personalise, while the building’s facilities and warranty provide added reassurance.
2 bedroom flat for sale in Cambridge Road, Barking, IG11 — £375,000 • 2 bed • 2 bath • 977 ft²
2 bedroom flat for sale in Cambridge Road, Barking, IG11 — £375,000 • 2 bed • 2 bath • 764 ft²
2 bedroom flat for sale in Cambridge Road, Barking, IG11 — £375,000 • 2 bed • 2 bath • 754 ft²
1 bedroom flat for sale in Cambridge Road, Barking, IG11 — £275,000 • 1 bed • 1 bath • 545 ft²
2 bedroom flat for sale in Cambridge Road, Barking, IG11 — £400,000 • 2 bed • 2 bath • 872 ft²
2 bedroom flat for sale in Cambridge Road, Barking, IG11 — £365,000 • 2 bed • 2 bath • 871 ft²






































































