Freehold large plot with outline consent for two homes, minimal planning liabilities.
Outline planning approved for two dwellings (PA24/09824)
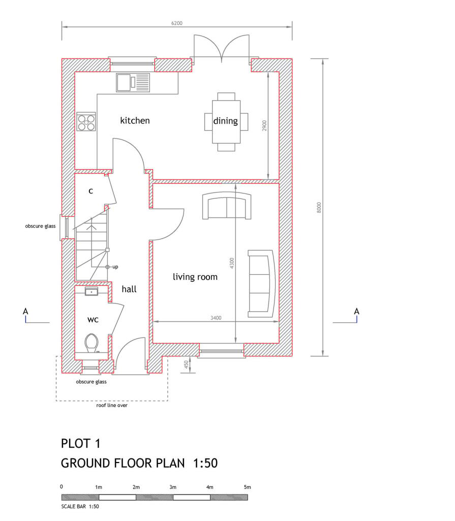
This is a large, freehold development plot on Holmbush Road with outline planning permission (PA24/09824) approved 24 Dec 2024 for two new dwellings and parking. The site sits slightly elevated with partial views over mature greenery and benefits from a peaceful suburban setting and low local crime. Permission is outline—reserved matters, detailed design and building regulations remain to be completed.
The approved consent has no outstanding S106 obligations and is CIL-liable at £0/sqm within Cornwall Charging Area 5. The site layout accommodates two detached family homes (potential for three-bedroom layouts) with private gardens and garages/parking, giving clear build-and-sell or rental options. Fast broadband and excellent mobile signal support modern living requirements.
Buyers should note practical next steps: utilities and service connections must be confirmed with providers, and the existing approval is outline rather than full detailed permission. Groundworks, detailed planning conditions and construction costs will affect programme and budget. The large, flat plots and straightforward site plan suit developer builders or owner-occupiers seeking a bespoke new-build.
Overall, the plot offers a rare, well-located opportunity for a small-scale residential development in St Austell: clear planning headway, generous space for contemporary family homes, and minimal planning liabilities, balanced against the usual technical and cost considerations of delivering new-build homes.
Plot for sale in Slades Road, St Austell, PL25 — £79,950 • 1 bed • 1 bath
Plot for sale in Carclaze Road, St Austell, PL25 — £149,950 • 1 bed • 1 bath • 2195 ft²
Plot for sale in Caudledown Lane, Stenalees, St. Austell, PL26 — £85,000 • 2 bed • 1 bath • 614 ft²
Plot for sale in 40 Trenance Road, St. Austell, PL25 — £225,000 • 1 bed • 1 bath
Land for sale in Development Land with Consent, Carbean, St Austell, PL25 — £175,000 • 1 bed • 1 bath
Plot for sale in Building Plot, Hewas Water, Cornwall, PL26 — £130,000 • 3 bed • 1 bath


























































