**Standout Features:**
- Individual building plot with planning permission (PA25/0303) for a detached dormer-style home.
- Total site area of 204 square meters, with potential extensive accommodation.
- Exceptional panoramic views across St Austell, with coastline glimpses including the iconic Eddystone Lighthouse.
- Excellent parking with an included garage.
- Located in an affluent area with fast broadband and mobile signal.
**Summary:**
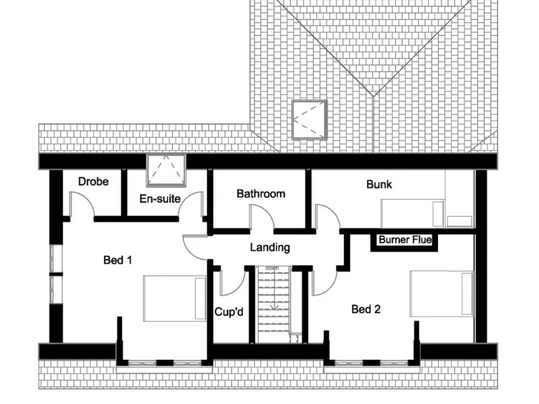
Discover a unique opportunity to create your dream home on this spacious building plot situated in the heart of St Austell, price at £149,950. With granted planning permission for a generous 204 square meter detached dwelling, this plot offers buyers a canvas to design their ideal residence while enjoying stunning coastal views and an enviable elevated position. The planned layout features an L-shaped lounge and dining area, a separate kitchen, a study or fourth bedroom, and an en-suite master bedroom alongside two additional bedrooms. 
This is a rare chance for a self-build project, especially considering the increasing scarcity of individual plots. Although the area currently lacks garden landscaping, the site is cleared and primed for development, offering ample room for customization to suit your lifestyle needs. The neighborhood boasts excellent schooling options and convenient amenities, while the scenic countryside and coastal vistas promise a tranquil and fulfilling living experience. Don't miss this opportunity to make your vision a reality—plots like this are becoming more elusive!
 Plot for sale in Slades Road, St Austell, PL25 — £79,950 • 1 bed • 1 bath
 Plot for sale in Slades Road, St Austell, PL25 — £79,950 • 1 bed • 1 bath Plot for sale in 40 Trenance Road, St. Austell, PL25 — £225,000 • 1 bed • 1 bath
 Plot for sale in 40 Trenance Road, St. Austell, PL25 — £225,000 • 1 bed • 1 bath Plot for sale in Caudledown Lane, Stenalees, St. Austell, PL26 — £85,000 • 2 bed • 1 bath • 614 ft²
 Plot for sale in Caudledown Lane, Stenalees, St. Austell, PL26 — £85,000 • 2 bed • 1 bath • 614 ft² 3 bedroom detached house for sale in Land West Of The Elms, Trethurgy, PL26 — £130,000 • 3 bed • 2 bath
 3 bedroom detached house for sale in Land West Of The Elms, Trethurgy, PL26 — £130,000 • 3 bed • 2 bath Land for sale in Bodmin Road, St. Austell, PL25 — £130,000 • 1 bed • 1 bath
 Land for sale in Bodmin Road, St. Austell, PL25 — £130,000 • 1 bed • 1 bath Plot for sale in Treverbyn Road, St Austell, PL25 — £400,000 • 1 bed • 1 bath
 Plot for sale in Treverbyn Road, St Austell, PL25 — £400,000 • 1 bed • 1 bath






















































