**Standout Features:**
- Freehold plot for sale with planning permission granted
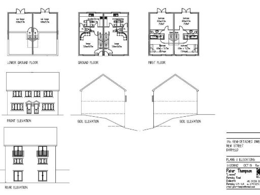
- Opportunity to build two, two-bedroom, three-story semi-detached homes
- Located in Darfield, Barnsley, approximately 4 miles from Barnsley town center
- Excellent mobile signal and average broadband speeds
- Access to various local amenities within walking and cycling distance
**Potential Concerns:**
- Local area classified as "challenged" with above-average crime rates
- Surrounding area may experience community deprivation
This prime development opportunity on Snape Hill Road, Darfield, offers an exciting prospect for investors or builders looking to capitalize on its approved planning permission for two, three-story semi-detached properties. The plot is ideally situated within a suburban setting that boasts a selection of local amenities, including shops, healthcare, and schools, all just a short walk away.
Despite some challenges in the community, this plot presents an attractive investment potential, with the flexibility to create well-designed living spaces tailored to modern lifestyles. The demand for homes in the area complements this opportunity, especially considering the growing need for residential development in diverse localities. With the chance to create contemporary living solutions in a location close to Barnsley town center, this property is not to be missed. Act quickly to secure this unique opportunity!
Land for sale in Pitt Street, Wombwell, Barnsley, S73 — £399,950 • 1 bed • 1 bath
Plot for sale in Rotherham Road, Barnsley, S71 — £575,000 • 1 bed • 1 bath
3 bedroom detached house for sale in Church Hill, Royston, Barnsley, S71 — £120,000 • 3 bed • 2 bath
Land for sale in Springfield Street, Barnsley, South Yorkshire, S70 — £55,000 • 3 bed • 1 bath • 1076 ft²
Land for sale in Station Road, Barnsley, South Yorkshire, S71 — £700,000 • 1 bed • 1 bath
Land for sale in Beechfield Close,Bolton-upon-Dearne,Rotherham,S63 8EY, S63 — £120,000 • 1 bed • 1 bath










