Compact character one-bed near Balham transport links and shops.
Bright reception room with high ceilings and period fireplace
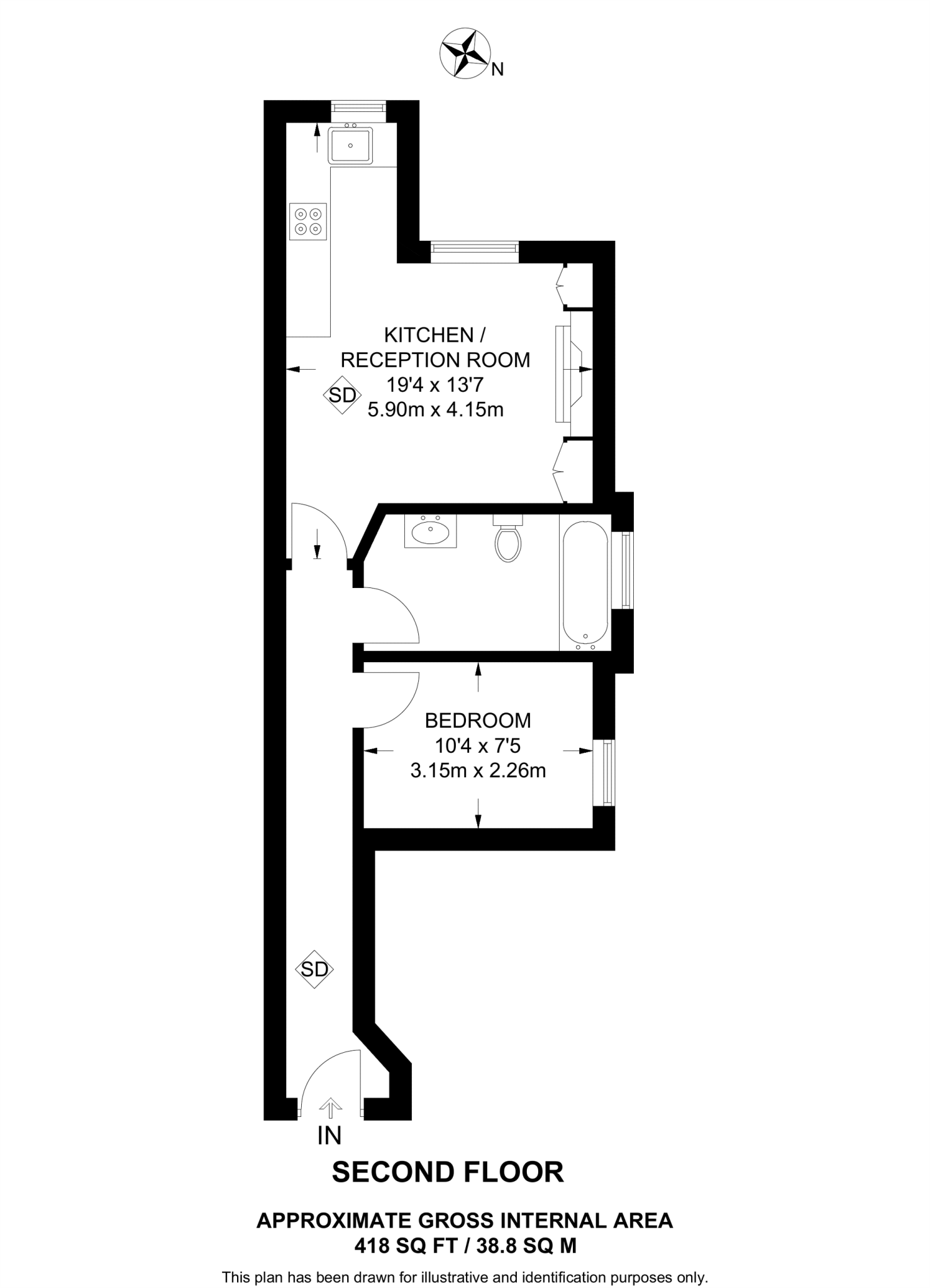
Open reception/kitchen layout; good natural light
Modern bathroom; clean, move-in condition
Pleasant communal garden views from first floor
Compact size (418 sq ft) — limited storage and living space
Leasehold tenure — check remaining term and service charges
Solid brick walls; likely no cavity insulation (energy improvements possible)
Local crime levels higher than average — consider security measures
A distinctive one-bedroom apartment set on the first floor of an attractive Victorian mansion block on Elmfield Road. The flat is cleanly decorated and offers a bright, good-sized reception room with high ceilings, period fireplace and pleasant views over the communal garden. The open reception/kitchen layout and modern bathroom give easy move-in condition for a single buyer or couple.
This is a compact home (418 sq ft) in a sought-after Balham location, set back from the High Road with fast transport links nearby: Balham Overground and Clapham South Underground within easy reach. Local shops, restaurants and leisure amenities are all within a short walk, making day-to-day life convenient.
Important practical points: the property is leasehold and relatively small, so it suits buyers seeking a central, characterful pied-à-terre or an investment purchase. The building is period construction with solid brick walls (likely no cavity insulation), and the local area records higher crime levels than average — sensible buyers should check lease details, service charges and insurance arrangements before committing.
For buyers wanting period features, character and a ready-to-live-in flat in a lively neighbourhood, this apartment is a straightforward, low-maintenance option. For those needing larger accommodation, significant refurbishment or long-term energy-efficiency improvements may be required.
1 bedroom flat for sale in Oakmead Road, London, SW12 — £550,000 • 1 bed • 1 bath • 711 ft²
3 bedroom apartment for sale in Elmfield Mansions, Elmfield Road, London, SW17 — £650,000 • 3 bed • 1 bath • 886 ft²
1 bedroom flat for sale in Bedford Hill, Balham, SW12 — £440,000 • 1 bed • 1 bath • 456 ft²
1 bedroom apartment for sale in Balham High Road, London, London, SW17 — £325,000 • 1 bed • 1 bath • 400 ft²
1 bedroom apartment for sale in Rowfant Road, SW17 — £385,000 • 1 bed • 1 bath • 383 ft²
2 bedroom flat for sale in Tramyard Apartments, Balham, LONDON, SW17 — £650,000 • 2 bed • 2 bath • 767 ft²














































































