Chain-free four-bed with office outbuilding and room to extend in sought-after Stanmore.
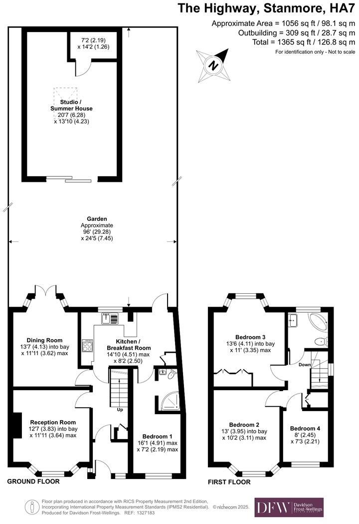
- Four bedrooms and two bathrooms, suitable family layout
- Two reception rooms and bay-fronted living room
- Detached outbuilding ideal as office or studio
- Off-street parking for multiple cars
- Scope to extend (subject to planning permission)
- Built 1930s–40s; likely require insulation/modernisation
- Double glazing fitted; install date unknown
- Council Tax Band E (above average)
This four-bedroom, two-bathroom semi-detached home in Stanmore offers straightforward family living on a decent plot. Two reception rooms and a bay-fronted living room provide comfortable daytime space, while the detached outbuilding is ready for use as a home office or studio. Off-street parking for multiple cars adds practical convenience for busy households.
There is clear potential to increase living space: the property has scope for extension subject to planning permission. Built in the 1930s–40s, the house retains period character but will benefit from updating — solid brick walls likely lack modern insulation and the double glazing’s install date is unknown. Heating is mains gas via boiler and radiators.
Practical positives include chain-free sale, fast broadband, low local crime and strong local schools (several rated Good or Outstanding). Buyers should note council tax is above average and some refurbishment or insulation work may be needed to improve energy efficiency and modern comfort.
For families seeking a well-located, roomy house with room to personalise and expand, this property balances immediate liveability with clear scope for value-adding improvements. Viewing will show how the outbuilding and sunny bay windows enhance everyday life while highlighting the areas where investment would quickly raise comfort and resale value.
4 bedroom semi-detached house for sale in Merrion Avenue, Stanmore, HA7 — £850,000 • 4 bed • 2 bath • 1683 ft²
4 bedroom semi-detached house for sale in Vernon Drive, Stanmore, HA7 — £765,000 • 4 bed • 2 bath • 1693 ft²
3 bedroom house for sale in Sitwell Grove, Stanmore, HA7 — £599,999 • 3 bed • 1 bath • 1088 ft²
5 bedroom semi-detached house for sale in The Highway, Stanmore, HA7 — £700,000 • 5 bed • 2 bath • 1788 ft²
4 bedroom semi-detached house for sale in Barn Crescent, Stanmore, HA7 — £1,145,000 • 4 bed • 2 bath • 1795 ft²
5 bedroom detached house for sale in Winscombe Way, Stanmore, HA7 — £1,000,000 • 5 bed • 2 bath • 1938 ft²














































