Move-in-ready three-bedroom home with garden and low running costs.
Open-plan kitchen/dining with French doors to garden
Allocated off-street parking spaces for convenience
10-year NHBC warranty included for new-build assurance
Low energy bills from modern construction standards
Principal bedroom with en-suite and storage
Compact overall size (approx. 617 sq ft) limits living space
Only one main bathroom; may be tight for larger families
Annual service charge £154.72; confirm tenure and council tax
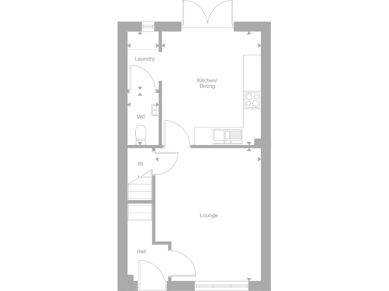
This newly built three-bedroom semi-detached home at Beckside Manor offers a compact, low-maintenance layout ideal for first-time buyers. The open-plan kitchen/dining room with French doors leads straight to the garden, and a separate laundry room keeps everyday clutter out of sight. The principal bedroom benefits from an en-suite and storage; bedroom three doubles as a handy home-office space.
Practical features include allocated off-street parking, a 10-year NHBC warranty and low energy bills from modern construction standards. At about 617 sq ft, the house is intentionally modest in scale — good for lower running costs but limited for larger families or those wanting extensive living space. There is only one main bathroom upstairs.
Service charges are modest at £154.72 per year, but prospective buyers should confirm tenure details and council tax banding. A £7,000 choices voucher is offered when pre-reserving Plot 194 for options and extras. Overall this is a sensible, move-in-ready option for first-time buyers looking for modern, efficient accommodation in a well-regarded Ingleby Barwick setting.
3 bedroom semi-detached house for sale in Welwyn Road,
Ingleby Barwick,
Stockton-on Tees,
TS17 0FA, TS17 — £225,000 • 3 bed • 1 bath • 565 ft²
3 bedroom semi-detached house for sale in Welwyn Road,
Ingleby Barwick,
Stockton-on Tees,
TS17 0FA, TS17 — £210,000 • 3 bed • 1 bath • 557 ft²
4 bedroom detached house for sale in Welwyn Road,
Ingleby Barwick,
Stockton-on Tees,
TS17 0FA, TS17 — £335,000 • 4 bed • 1 bath • 989 ft²
5 bedroom detached house for sale in Welwyn Road,
Ingleby Barwick,
Stockton-on Tees,
TS17 0FA, TS17 — £400,000 • 5 bed • 1 bath • 966 ft²
3 bedroom detached house for sale in Welwyn Road,
Ingleby Barwick,
Stockton-on Tees,
TS17 0FA, TS17 — £255,000 • 3 bed • 1 bath • 624 ft²
4 bedroom detached house for sale in Welwyn Road,
Ingleby Barwick,
Stockton-on Tees,
TS17 0FA, TS17 — £300,000 • 4 bed • 1 bath • 808 ft²


















































