Move-in-ready three-bedroom home with practical family layout and parking.
10-year NHBC warranty for new-build reassurance
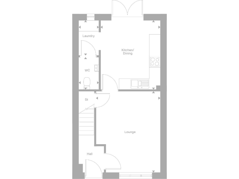
This modern three-bedroom semi in Beckside Manor offers practical family living in a quiet Ingleby Barwick development. The ground floor’s open-plan kitchen/dining area with French doors flows onto a low-maintenance rear garden, while a separate laundry room keeps daily chores out of sight. The lounge is a comfortable size for family evenings, and allocated off-street parking adds convenience.
Upstairs the principal bedroom benefits from an en-suite and storage, with two further bedrooms including a compact room ideal for a home office or children’s bedroom. The home comes with a 10-year NHBC warranty and is offered freehold, giving buyers reassurance on build quality and ownership. Broadband is fast and local schools are well regarded, matching the area’s prosperous, family-focused character.
Buyers should note the house is a small new-build (approximately 557 sq ft) and offers modest internal space compared with larger family homes. There is an annual service charge of £154.72. Mobile signal and local crime levels are average; the home suits first-time buyers or small families who prioritise low-maintenance, contemporary living over expansive rooms.
Overall, this Ingleby Barwick property provides a secure, modern base with practical extras (laundry room, en-suite, parking) and warranty cover, best suited to buyers seeking a compact, move-in-ready family home in a very affluent village setting.
3 bedroom semi-detached house for sale in Welwyn Road,
Ingleby Barwick,
Stockton-on Tees,
TS17 0FA, TS17 — £200,000 • 3 bed • 1 bath • 617 ft²
3 bedroom semi-detached house for sale in Welwyn Road,
Ingleby Barwick,
Stockton-on Tees,
TS17 0FA, TS17 — £225,000 • 3 bed • 1 bath • 565 ft²
4 bedroom detached house for sale in Welwyn Road,
Ingleby Barwick,
Stockton-on Tees,
TS17 0FA, TS17 — £320,000 • 4 bed • 1 bath • 815 ft²
4 bedroom detached house for sale in Welwyn Road,
Ingleby Barwick,
Stockton-on Tees,
TS17 0FA, TS17 — £335,000 • 4 bed • 1 bath • 989 ft²
4 bedroom detached house for sale in Welwyn Road,
Ingleby Barwick,
Stockton-on Tees,
TS17 0FA, TS17 — £300,000 • 4 bed • 1 bath • 808 ft²
5 bedroom detached house for sale in Welwyn Road,
Ingleby Barwick,
Stockton-on Tees,
TS17 0FA, TS17 — £400,000 • 5 bed • 1 bath • 966 ft²


















































