Ready-to-update two-bedroom home close to Northern Line links and local schools.
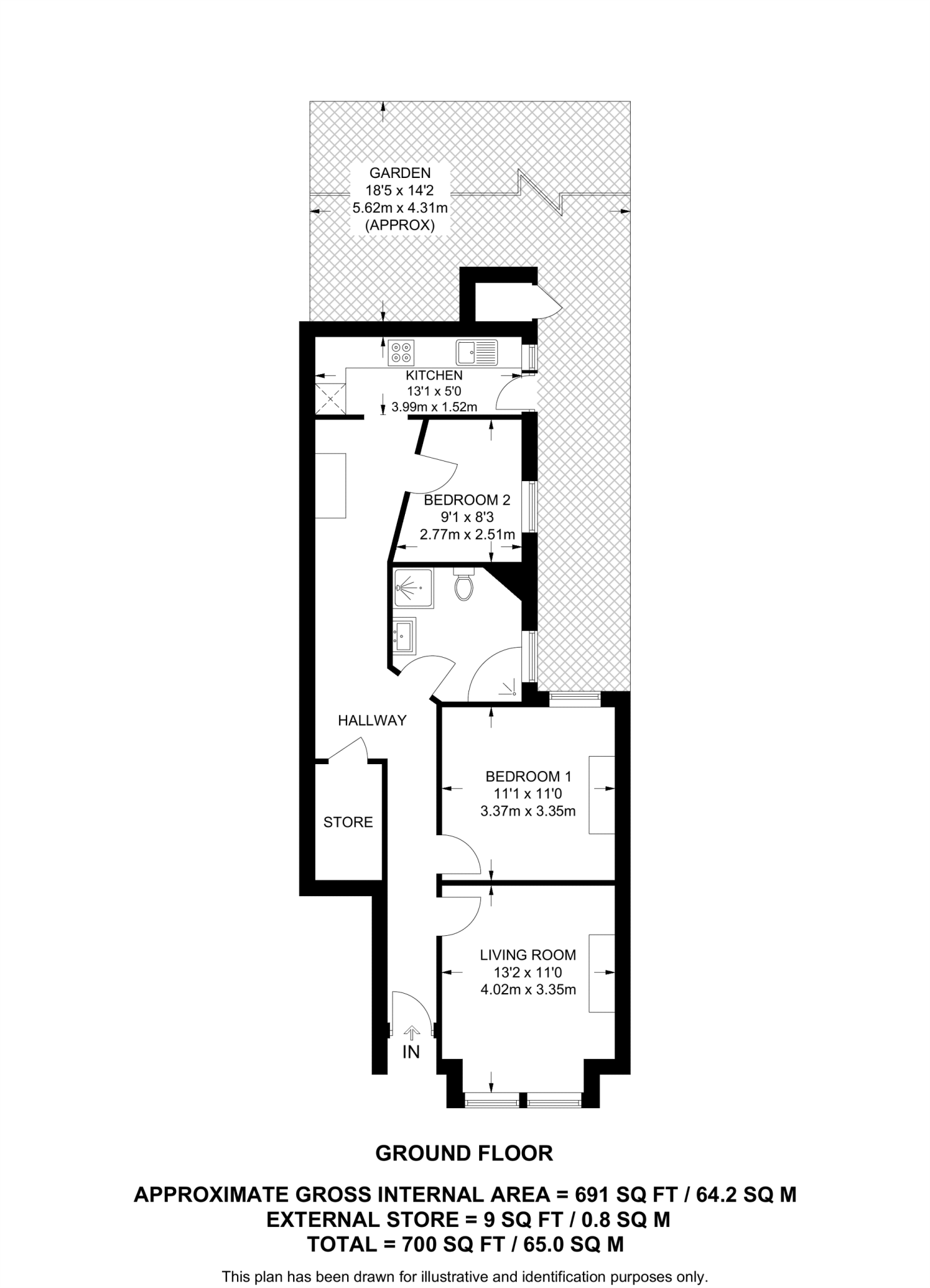
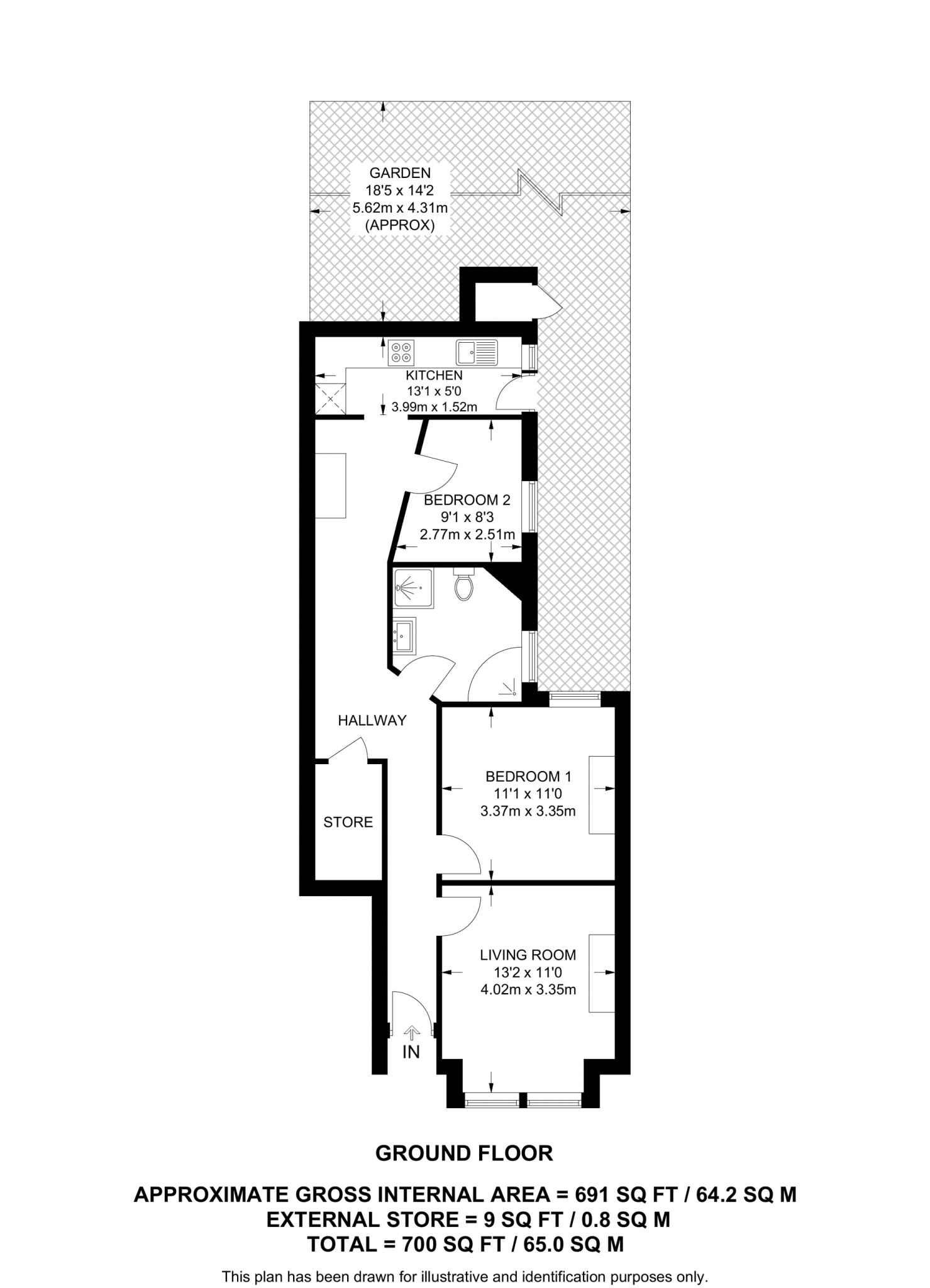
Two double bedrooms with generous living space
Separate kitchen and bright reception room
Quiet private rear garden, small plot
Share of freehold tenure
Solid brick walls; likely no insulation, upgrade recommended
Double glazing fitted post-2002; mains gas heating
Low flood risk; excellent mobile and fast broadband
Area records higher crime rates — security advisable
Bright and practical, this two-bedroom maisonette occupies the lower floors of a Victorian end-terrace near Colliers Wood Underground Station. The flat has a generous reception room, a separate kitchen and a private rear garden, offering a comfortable London base for families or first-time buyers. Northern Line access makes central London commutes straightforward, while local green spaces and strong schools add family appeal.
Constructed c.1900–1929, the property retains period character but will benefit from targeted updating. The solid brick walls are assumed uninsulated, and modest improvements to heating efficiency and finishes would increase comfort and value. The share-of-freehold tenure is an advantage, but the maisonette’s compact plot and average overall size should be considered when comparing nearby houses.
Practical details are straightforward: mains gas central heating with boiler and radiators, double glazing added since 2002, low flood risk and excellent mobile and broadband connectivity. Note the area records higher-than-average crime levels; prospective buyers should review local safety information and consider security improvements. Overall, this is an affordable, well-located home with clear scope to modernise and add value.
2 bedroom maisonette for sale in Liberty Avenue, Colliers Wood, London, SW19 — £460,000 • 2 bed • 1 bath • 715 ft²
2 bedroom maisonette for sale in Byegrove Road, Colliers Wood, SW19 — £575,000 • 2 bed • 1 bath • 670 ft²
2 bedroom maisonette for sale in University Road , SW19 — £500,000 • 2 bed • 1 bath • 588 ft²
3 bedroom maisonette for sale in University Road, Colliers Wood, London, SW19 — £525,000 • 3 bed • 1 bath • 721 ft²
2 bedroom apartment for sale in College Road, London, SW19 — £425,000 • 2 bed • 1 bath • 680 ft²
2 bedroom flat for sale in University Road, Central Colliers Wood, SW19 — £475,000 • 2 bed • 1 bath • 641 ft²


































































































