Quiet garden and excellent transport links for growing families.
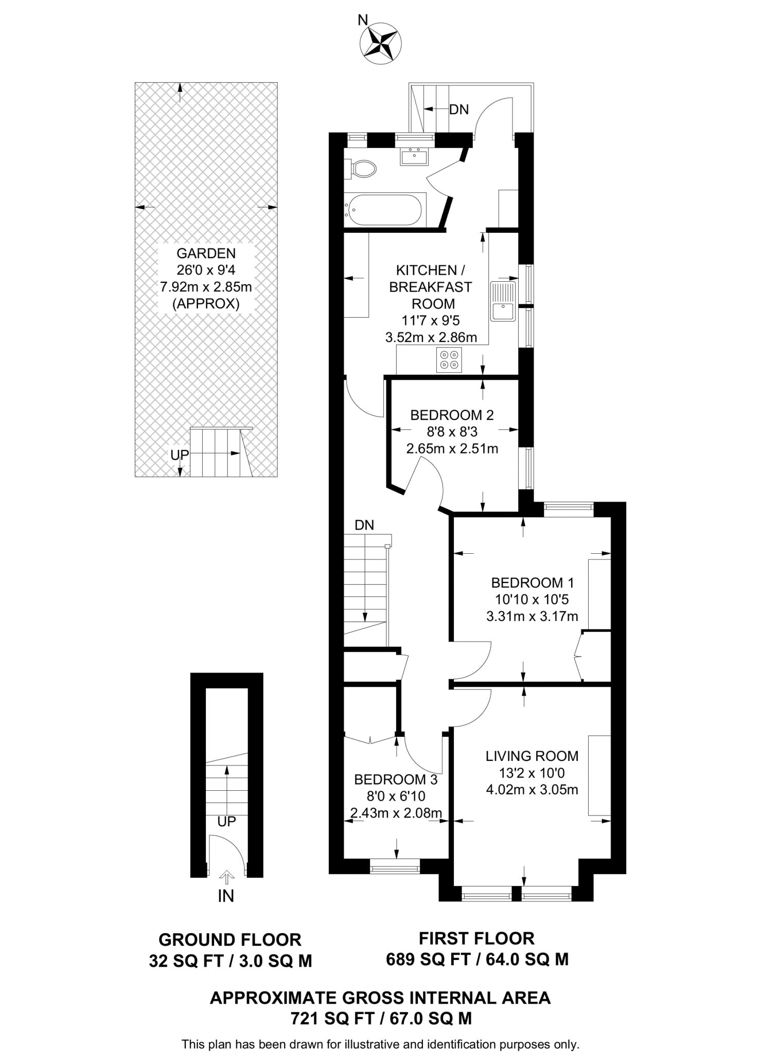
Chain free three-bedroom first-floor maisonette
A bright three-bedroom first-floor maisonette set in a Victorian mid-terrace, ideal for families seeking space close to transport and schools. The property offers a separate reception room with period features and a large eat-in kitchen opening onto a quiet private garden — practical for everyday living and weekend outdoor time.
Practical benefits include a short walk to Colliers Wood Underground (Northern line), fast broadband and excellent mobile signal, plus several highly rated local schools within easy reach. The flat is chain free and comes with a long lease of 146 years, reducing immediate tenure concerns for purchasers.
Note the overall size is small for a three-bedroom home and there is a single bathroom, so layout flexibility may be needed. The building is solid-brick Victorian construction with assumed no wall insulation and will likely benefit from targeted renovation and modernisation to improve energy performance and storage. This property will suit buyers looking to add value through cosmetic and practical upgrades while enjoying a central, well-connected location.
2 bedroom maisonette for sale in Byegrove Road, Colliers Wood, London, SW19 — £475,000 • 2 bed • 1 bath • 676 ft²
4 bedroom maisonette for sale in Western road, Mitcham, CR4 — £350,000 • 4 bed • 1 bath • 1028 ft²
1 bedroom flat for sale in Boundary Road, London, SW19 — £399,950 • 1 bed • 1 bath • 592 ft²
2 bedroom flat for sale in Boundary Road, London, SW19 — £430,000 • 2 bed • 1 bath • 681 ft²
2 bedroom maisonette for sale in University Road , SW19 — £500,000 • 2 bed • 1 bath • 588 ft²
1 bedroom detached house for sale in Briscoe Road, London, SW19 — £435,000 • 1 bed • 1 bath • 562 ft²






















































