Move-in ready home minutes from Colliers Wood station.
Two double bedrooms with contemporary finish
Open-plan living area with shaker kitchen and island
Private rear garden, small-to-average size
Share of freehold with ~996–998 years remaining
Fully refurbished — move-in ready condition
EPC rating D; solid-brick walls likely lack cavity insulation
Ground rents/service charges: To Be Confirmed
Local area records higher-than-average crime levels
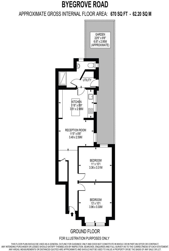
This light-filled two-double-bedroom Victorian maisonette has been fully renovated and offers ready-to-move-in accommodation ideal for a first-time buyer. Arranged over ground and lower-ground levels, the open-plan living space features a modern shaker kitchen with island, wood-effect floors and generous windows that flood the rooms with natural light. A private rear garden provides low-maintenance outdoor space for sitting or gardening.
Practical ownership is a strong selling point: share of freehold with a very long lease (circa 996–998 years) reduces common leasehold risks and makes mortgage applications straightforward. The property’s footprint is modest at about 670 sq ft, so it suits buyers seeking a well-presented, low-upkeep home close to Colliers Wood Northern Line station and local amenities.
Buyers should note a few material points: the EPC rating is D, and the building is of solid-brick Victorian construction (likely without modern cavity insulation). Ground rents and service charges are currently to be confirmed. The immediate area records higher crime levels than average, so viewing to assess local feel is recommended.
Overall this maisonette balances contemporary finish and long-term tenure with a compact layout and some energy-efficiency limitations. It represents practical value for a first-time purchaser who prioritises transport links, recent refurbishment and straightforward ownership.
2 bedroom maisonette for sale in Byegrove Road, Colliers Wood, London, SW19 — £475,000 • 2 bed • 1 bath • 676 ft²
2 bedroom maisonette for sale in Byegrove Road, Colliers Wood, SW19 — £400,000 • 2 bed • 1 bath • 628 ft²
2 bedroom apartment for sale in College Road, London, SW19 — £425,000 • 2 bed • 1 bath • 680 ft²
2 bedroom maisonette for sale in Boyd Road, Colliers Wood, SW19 — £490,000 • 2 bed • 1 bath • 658 ft²
3 bedroom maisonette for sale in College Road, Colliers Wood, SW19 — £500,000 • 3 bed • 1 bath • 734 ft²
2 bedroom maisonette for sale in Runnymede, Colliers Wood, SW19 — £400,000 • 2 bed • 1 bath • 623 ft²










































