Well-located with garden and scope to add a loft conversion.
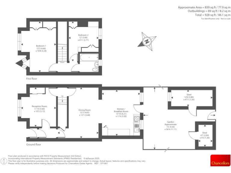
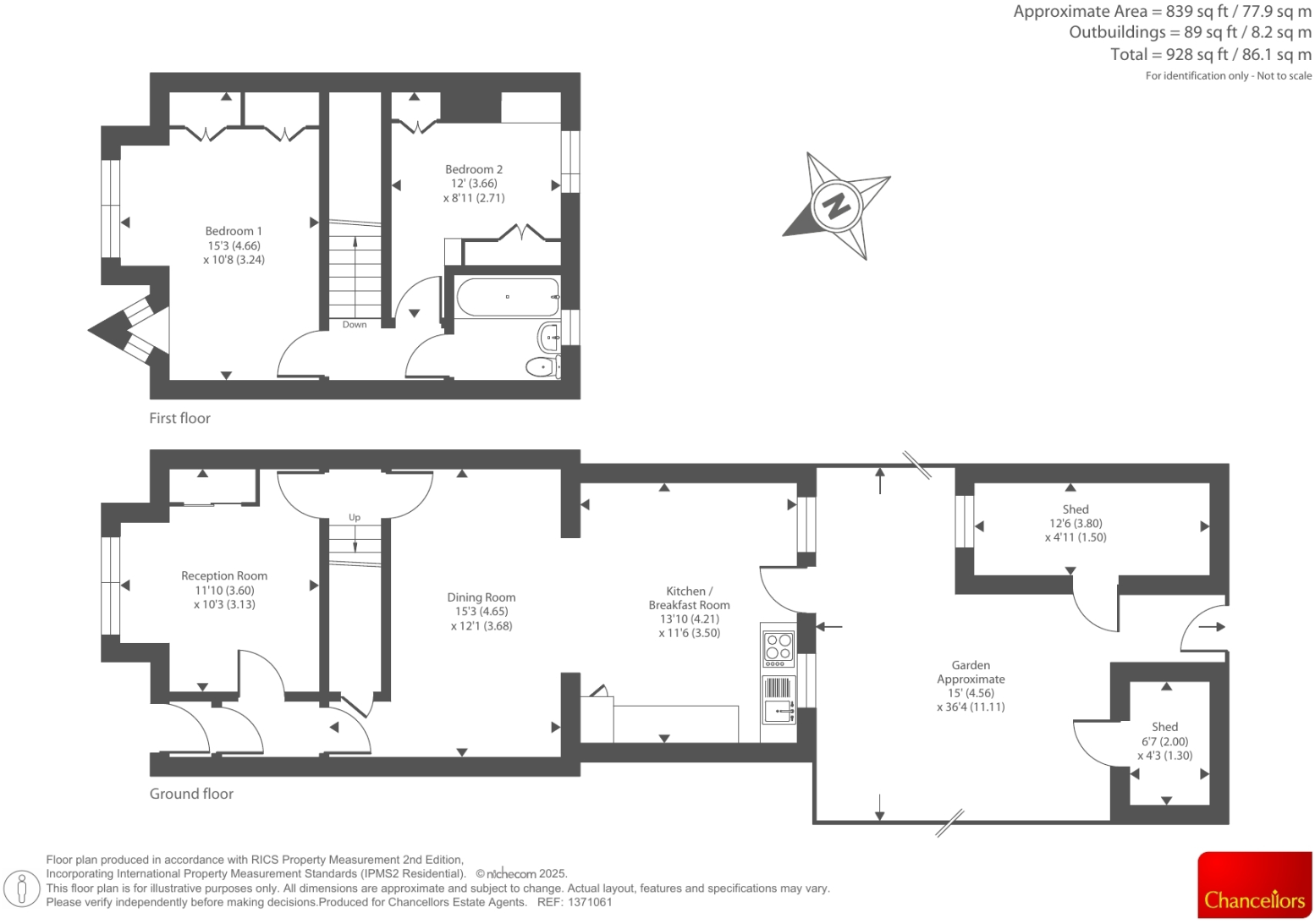
Large 928 sq ft internal size with two bedrooms
Set on a residential street in Hendon, this 2-bedroom end-of-terrace offers 928 sq ft of flexible living with a private garden and open-plan rear reception leading into an extended kitchen/breakfast room. The house retains period character from the early 20th century and benefits from double glazing and mains gas central heating.
The property will suit a first-time buyer or small family seeking a home with immediate living space and clear scope to increase value: there is potential to extend to the roof subject to planning consents. Local amenities, places of worship, schools and transport links are within a short walk, and broadband and mobile signal are strong.
Buyers should note the house would benefit from modernization in places — finishes are basic and some fabric improvements are likely (walls are solid brick and assumed uninsulated). The plot is small and the property, while large internally, sits on a modest garden. Council tax is moderate and the local area is mixed but generally affluent.
Overall this house offers a practical, well-located base with development upside for buyers willing to update and pursue loft/roof extension consents.
3 bedroom end of terrace house for sale in Sturgess Avenue, Hendon, London, NW4 — £730,000 • 3 bed • 1 bath • 1477 ft²
4 bedroom semi-detached house for sale in Southfields, London, NW4 — £920,000 • 4 bed • 1 bath • 1432 ft²
4 bedroom end of terrace house for sale in Alexandra Road, London, NW4 — £825,000 • 4 bed • 2 bath • 1175 ft²
3 bedroom house for sale in Sydney Grove, Hendon NW4 — £775,000 • 3 bed • 1 bath • 1314 ft²
5 bedroom house for sale in Tenterden Drive, Hendon NW4 — £935,000 • 5 bed • 3 bath • 2221 ft²
4 bedroom semi-detached house for sale in Johns Avenue, London, NW4 — £990,000 • 4 bed • 3 bath • 1729 ft²






































































