Bright two-bedroom apartment with balcony close to Hyde Park.
Third-floor redbrick mansion block with period features
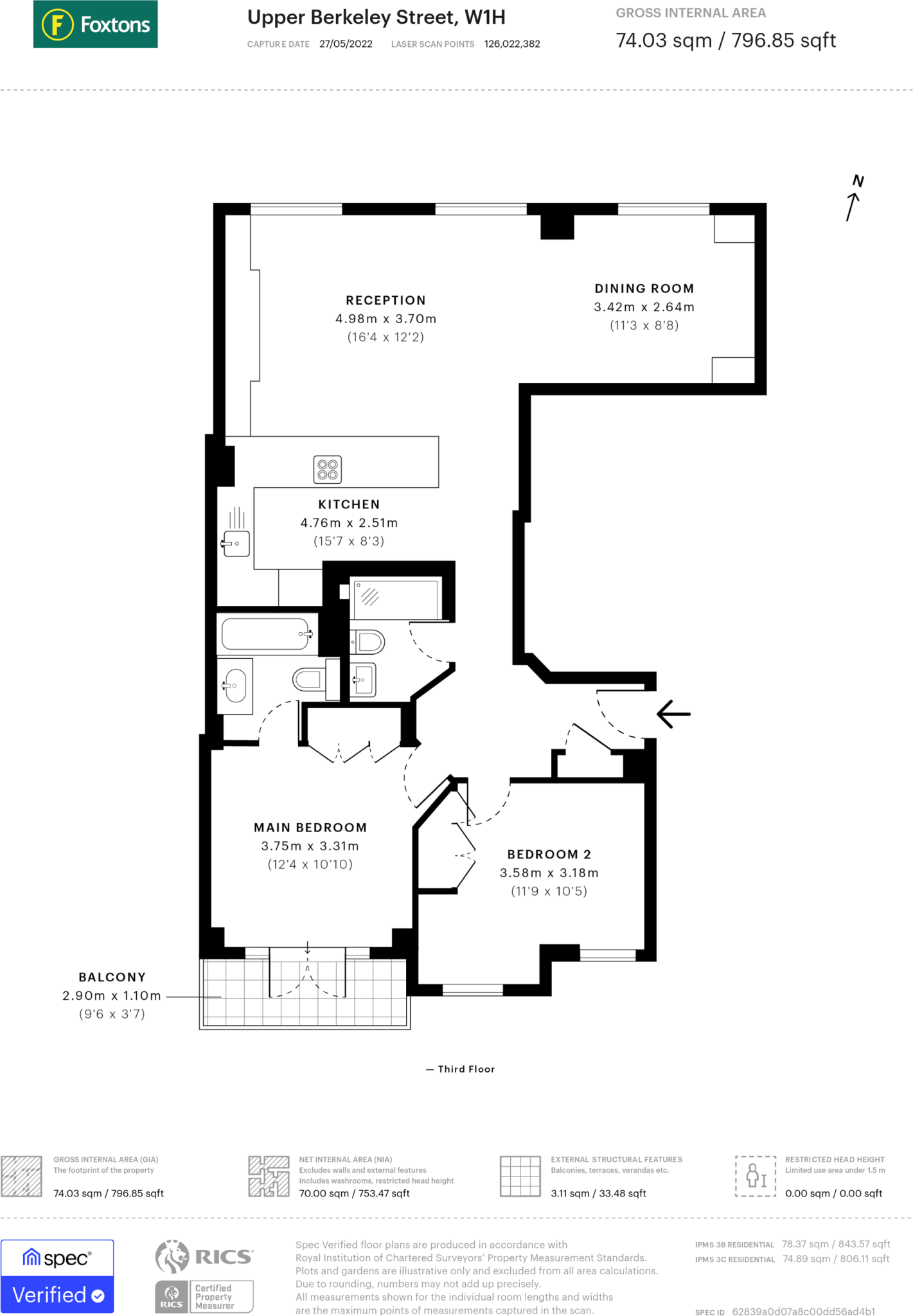
This elegant third-floor apartment sits in a handsome redbrick mansion block moments from Hyde Park and Marble Arch. The reception and adjoining dining room are bright and spacious, with large windows and hardwood floors creating a welcoming living space. A private balcony provides an outdoor pause amid the city.
The flat offers two double bedrooms with fitted wardrobes, a modern ensuite and separate shower room, plus a chic open-plan kitchen with integrated appliances—well suited to downsizers or professionals wanting low-stair living with comfortable entertaining space. The overall footprint of about 796 sq ft is efficient for central London living.
Practical positives include a long lease of approximately 130 years and excellent transport and digital connectivity. Be aware of annual service charges of around £6,200 (above average) and a small ground rent of £200. The building is solid brick (likely uninsulated as-built), which may limit thermal performance compared with modern standards.
The property sits in a very central, affluent area with a wide range of nearby shops, gyms, eateries and schools, but local crime statistics are high — buyers should consider security measures and factor service costs into ongoing outgoings. Overall, this apartment combines period charm and contemporary interiors in one of central London's most convenient locations.
2 bedroom flat for sale in Upper Berkeley Street,
Marylebone, W1H — £1,175,000 • 2 bed • 2 bath • 658 ft²
3 bedroom apartment for sale in Albion Gate Street, Marble Arch, London, W2 — £2,000,000 • 3 bed • 4 bath • 1461 ft²
2 bedroom apartment for sale in North Row, Mayfair, London, W1K, United Kingdom, W1K — £3,750,000 • 2 bed • 2 bath • 1464 ft²
2 bedroom flat for sale in Edgware Road, Hyde Park Estate, London, W2 — £575,000 • 2 bed • 1 bath • 705 ft²
2 bedroom flat for sale in Marylebone High Street, Marylebone, London, W1U — £2,500,000 • 2 bed • 2 bath • 1255 ft²
1 bedroom flat for sale in Chiltern Street, Marylebone, London, W1U — £800,000 • 1 bed • 1 bath • 392 ft²






































































































































































