Large, newly refurbished three-bedroom apartment near Hyde Park for professional families.
- Prestigious 1930s portered mansion block, Marble Arch location
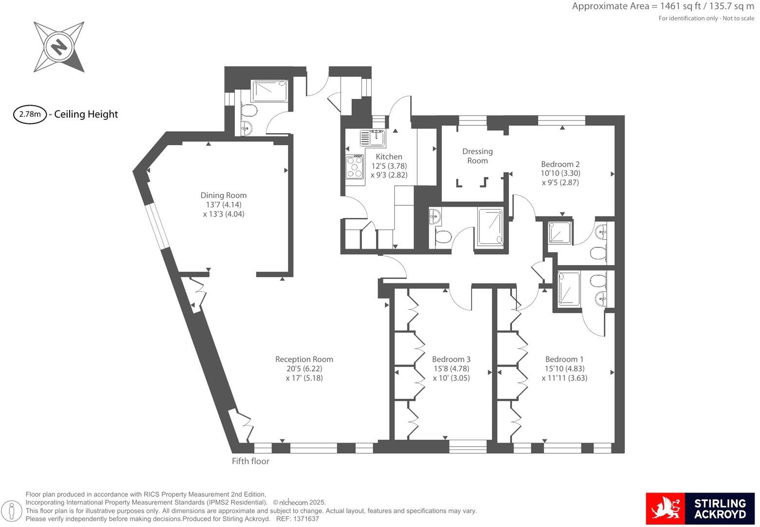
- Spacious 1,461 sq ft; two reception rooms and generous room proportions
- Three bedrooms, four en-suite bathrooms; newly renovated throughout
- Excellent local transport, close to Hyde Park and quality schools
- Service charge very high: £20,353 pa
- Leasehold with 96 years remaining
- Solid-brick construction; likely no wall insulation, EPC D
- Local crime rated above average; council tax very expensive
Set within a distinguished 1930s portered mansion block close to Marble Arch and Hyde Park, this newly renovated three-bedroom apartment offers spacious, well-lit living across a single level. The flat benefits from two reception rooms, four bathrooms (each bedroom en-suite), generous room proportions and tasteful finishes throughout — ideal for professional families or buyers seeking an elegant central-London residence.
The building’s period character and bay-windowed façades bring good natural light and a strong sense of place. Practical features include a porter, secondary glazing and connection to a community gas/heating scheme. At about 1,461 sq ft the apartment provides scale rarely found so centrally, making it suitable for family living or high-end rental potential.
Buyers should note material costs of occupation: the annual service charge is very high at £20,353 and council tax is described as very expensive. The property is leasehold with 96 years remaining. The block is solid-brick construction with no presumed cavity insulation and the EPC shown as D, so there may be future energy-upgrade considerations.
The setting is highly central with excellent transport and local amenities, and proximity to sought-after schools. However, the local crime level is above average, and the high service charge and limited lease length are important financial factors to weigh. Overall this is a spacious, characterful central London apartment that offers immediate move-in quality but carries noticeably high running costs.
3 bedroom apartment for sale in Albion Street, London, W2 — £2,500,000 • 3 bed • 3 bath • 1173 ft²
3 bedroom apartment for sale in Hyde Park Place, London, W2 — £2,275,000 • 3 bed • 2 bath • 1439 ft²
4 bedroom apartment for sale in Seymour Street, London, W2 — £3,250,000 • 4 bed • 2 bath • 1983 ft²
3 bedroom flat for sale in Albion Street, Hyde Park Estate, London, W2 — £1,100,000 • 3 bed • 3 bath • 1199 ft²
3 bedroom flat for sale in Park West, EDGWARE ROAD, London, W2 — £975,000 • 3 bed • 2 bath • 1038 ft²
3 bedroom apartment for sale in Hyde Park square, Hyde Park, London, W2 — £4,350,000 • 3 bed • 3 bath • 1944 ft²


































































