Spacious 1930s home with garden and garage, ideal for growing families.
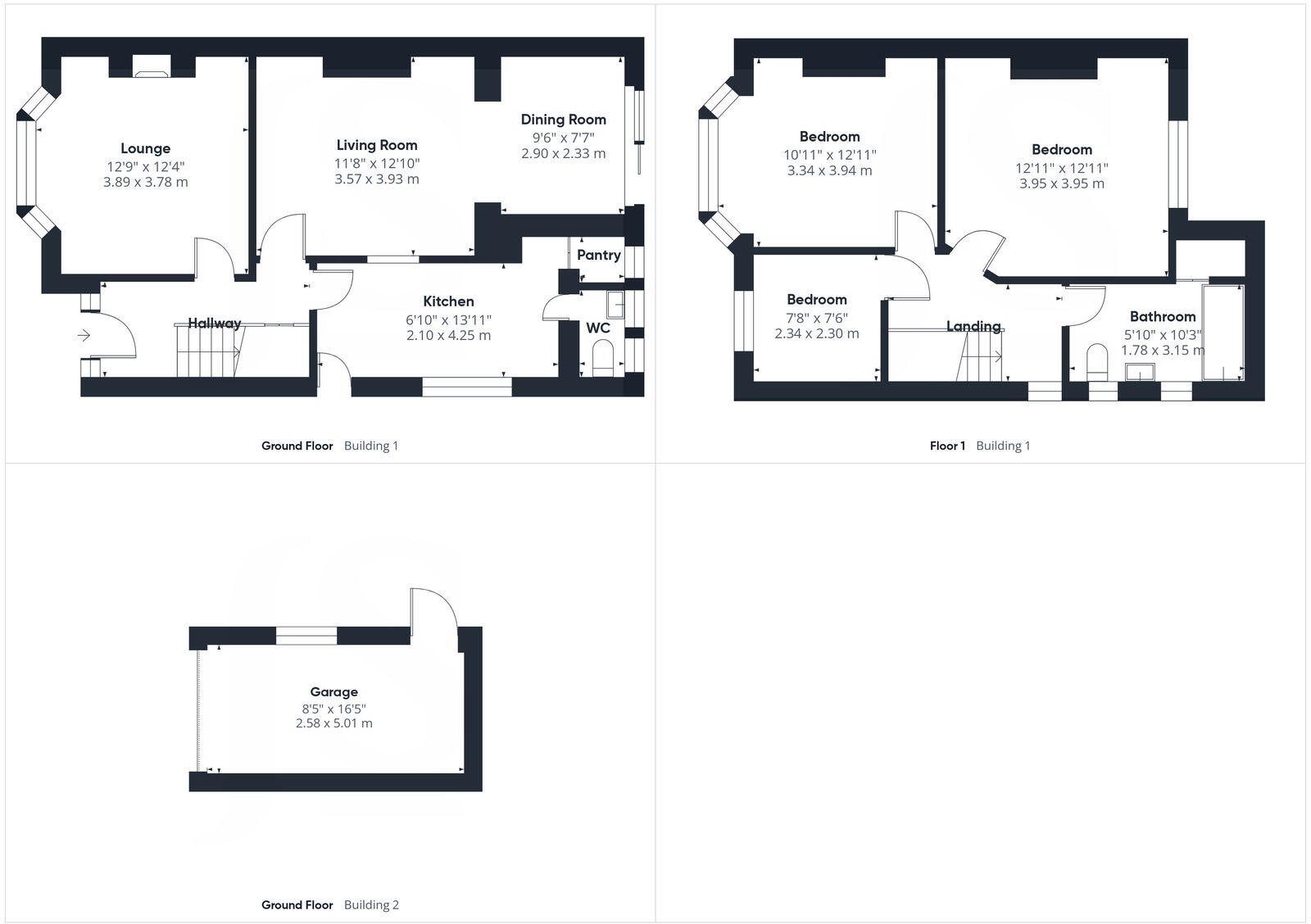
Extended three-bedroom semi-detached family house with three reception rooms
Generous rear garden with patio; gated side access and outside tap
Block‑paved driveway for multiple cars plus separate garage with power
Bay-front living room with built-in storage and plantation shutters
Single family bathroom only; one WC downstairs — may be tight for some families
Double glazing fitted before 2002; EPC currently band D (65), upgrade potential
Loft access present — potential for conversion subject to planning/consents
Freehold tenure; located in strong school catchment and low-crime area
This extended 1930s semi offers flexible family living across two floors with three well-proportioned bedrooms and three separate reception rooms. The bay-fronted sitting room, extended dining area and fitted kitchen give practical space for daily family life and entertaining. A generous rear garden and separate garage add outdoor space and valuable storage/parking options.
The location is a major draw: Thomas A Becket schools are within easy reach and Worthing town centre and the train station are nearby, making commutes and family routines straightforward. The driveway provides multiple off-street parking spaces and the garage has power and lighting.
Practical notes: there is a single family bathroom and a ground-floor WC only; peak family mornings may be busy. The house has double glazing installed before 2002 and an EPC currently at band D (65) with scope for improvement. The loft is accessible and offers conversion potential subject to consents. Overall this is a solid family home with scope to update and personalise.
5 bedroom semi-detached house for sale in Shermanbury Road, Worthing, BN14 7HR, BN14 — £750,000 • 5 bed • 3 bath • 2400 ft²
3 bedroom semi-detached house for sale in Broomfield Avenue, Worthing, BN14 — £525,000 • 3 bed • 1 bath • 1109 ft²
6 bedroom semi-detached house for sale in Orchard Avenue, Worthing, BN14 — £535,000 • 6 bed • 2 bath • 1475 ft²
4 bedroom semi-detached house for sale in Gaisford Road, Worthing, BN14 7HP, BN14 — £612,500 • 4 bed • 2 bath • 1215 ft²
4 bedroom detached house for sale in Rectory Road, Worthing, BN14 — £795,000 • 4 bed • 2 bath • 2335 ft²
3 bedroom semi-detached house for sale in St. Lawrence Avenue, Worthing, BN14 7JF, BN14 — £540,000 • 3 bed • 1 bath • 971 ft²










































































