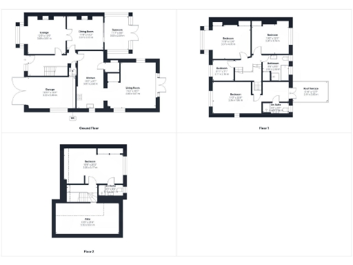
Five bedrooms across three floors, including self-contained second-floor suite
An extensively extended 1930s semi-detached home offering around 2,400 sq ft of flexible family accommodation across three floors. This five-bedroom house sits on a generous south-facing plot with a mature, private rear garden, large patio and deck—ideal for family life and outdoor entertaining. The layout includes four reception rooms, a practical kitchen with peninsula island, and a self-contained second-floor suite providing privacy for guests or older children.
Key practical benefits include a private garage, off-road parking for several vehicles, and a roof terrace off the principal suite for morning sun or quiet evenings. The location is a strong selling point: within the Gaisford/Thomas A Becket school catchment, under 700 m to Worthing mainline station, and within easy reach of the town centre and seafront.
The house has real potential for buyers wanting to personalise: there is scope to update internal finishes and reconfigure spaces to suit modern tastes, while maintaining many period features. Important practical notes: the EPC is listed as awaiting assessment, and some areas may benefit from cosmetic modernisation to fully realise value.
Overall this is a rare, substantial family home in a very desirable Worthing location, suited to growing families who value space, outside amenity and excellent commuter and school links.
3 bedroom semi-detached house for sale in Shermanbury Road, Worthing, BN14 — £650,000 • 3 bed • 1 bath • 1443 ft²
3 bedroom semi-detached house for sale in Shermanbury Road, Worthing BN14 7HR, BN14 — £525,000 • 3 bed • 1 bath • 1119 ft²
5 bedroom detached house for sale in Poulters Lane, Thomas A Becket, Worthing, BN14 — £700,000 • 5 bed • 3 bath • 1755 ft²
4 bedroom semi-detached house for sale in Gaisford Road, Worthing, BN14 7HP, BN14 — £612,500 • 4 bed • 2 bath • 1215 ft²
4 bedroom end of terrace house for sale in Seamill Park Crescent, Worthing, BN11 2PN, BN11 — £600,000 • 4 bed • 1 bath • 1360 ft²
3 bedroom semi-detached house for sale in Loxwood Avenue, Worthing, BN14 7RF, BN14 — £590,000 • 3 bed • 1 bath • 1302 ft²














































































































