Large versatile rooms, award‑designed garden and easy commuter links to London.
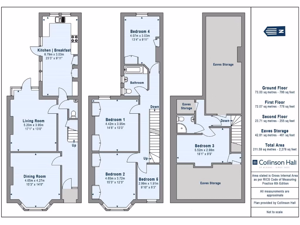
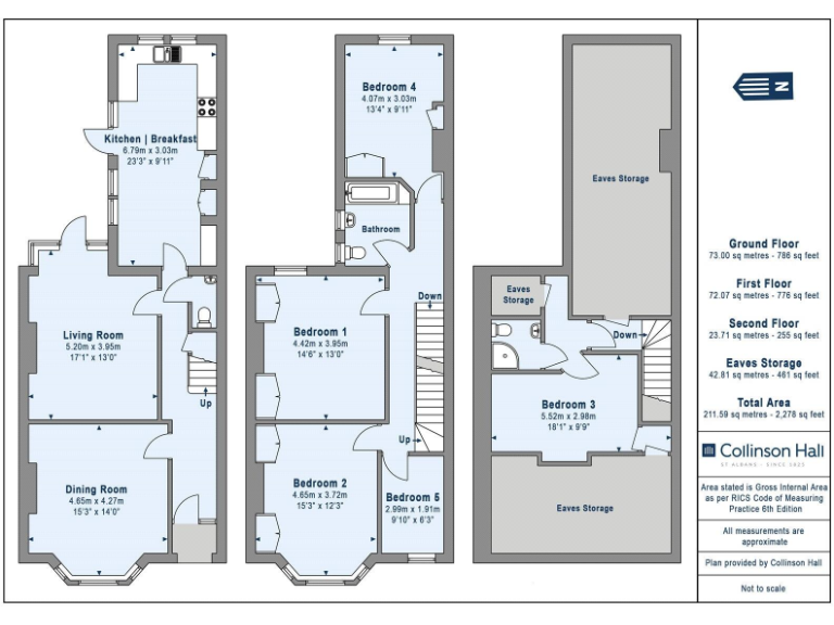
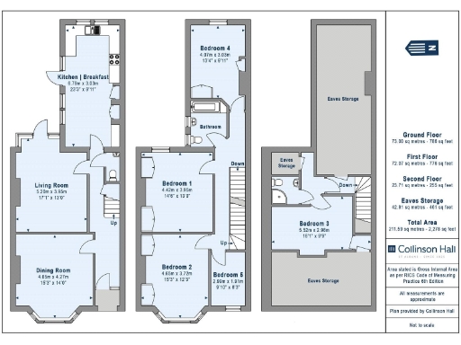
Freehold Victorian semi with five bedrooms and 2,200+ sq ft of living space
Converted attic bedroom plus modern shower room and large eaves storage
Landscaped rear garden by Chelsea Flower Show award winner
High ceilings, stained glass, twin bay windows and original period features
EPC D (57); solid brick walls likely uninsulated — energy upgrades advised
Council Tax band F (expensive) and area records higher-than-average crime
On‑street parking only; no dedicated off‑street parking shown
Excellent commuter access to St Albans City Station and strong local schools
This substantial five‑bedroom Victorian semi offers generous family living across three floors, with over 2,200 sq ft of flexible space and notable period detail. High ceilings, stained‑glass features, twin bay windows and an impressive staircase give the house immediate character and a classic family‑home feel. The converted attic provides an additional double bedroom and shower room, useful for older children or guests.
The layout suits family life: separate reception rooms, a kitchen/breakfast area and a landscaped garden designed by a Chelsea Flower Show award‑winning gardener that extends the living space in summer. St Albans City Station, Clarence Park and a strong range of primary and secondary schools are all within easy reach, supporting a straightforward London commute and everyday family needs.
Buyers should note some important practical points. The EPC rating is D (57) and the property's solid brick walls appear uninsulated, so further energy improvements may be worthwhile. Council Tax is in a high band and the area records higher local crime levels, which may be a consideration for some purchasers. Parking is largely on‑street rather than private off‑street.
Taken together, this is a rare, characterful family home in a sought neighbourhood that will reward tasteful updating. It will particularly suit growing families who value space, local schools and transport links, or investors seeking long‑term rental demand in St Albans.
5 bedroom semi-detached house for sale in Selby Avenue, St. Albans, Hertfordshire, AL3 — £1,250,000 • 5 bed • 1 bath • 1839 ft²
3 bedroom semi-detached house for sale in Alma Road, St Albans, AL1 3BL, AL1 — £1,250,000 • 3 bed • 2 bath • 1575 ft²
5 bedroom semi-detached house for sale in Carlisle Avenue, St. Albans, Hertfordshire, AL3 — £1,300,000 • 5 bed • 3 bath • 1666 ft²
5 bedroom semi-detached house for sale in Harpenden Road, St. Albans, Hertfordshire, AL3 — £1,000,000 • 5 bed • 4 bath • 2356 ft²
5 bedroom detached house for sale in Ridgmont Road, St. Albans, Hertfordshire, AL1 — £1,500,000 • 5 bed • 2 bath • 2456 ft²
5 bedroom semi-detached house for sale in Approach Road, St. Albans, Hertfordshire, AL1 — £1,300,000 • 5 bed • 3 bath • 2151 ft²


























































































