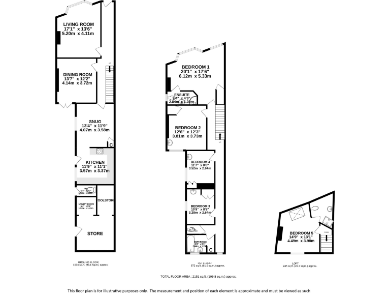
Large period house near station with garden and redevelopment potential.
- Five bedrooms and three bathrooms across three floors
- Three reception rooms including large bay-fronted living room
- South-facing rear garden with decent plot size
- Off-street parking for one car (access from Orient Close)
- Retains sash windows, original fireplaces, high ceilings
- Needs renovation and updating in places
- Potential to extend/alter subject to planning (STPP)
- Council tax band described as expensive
Set across three floors, this substantial Victorian semi-detached house offers versatile family accommodation close to St Albans city centre and mainline station. Original features such as sash windows, high ceilings and fireplaces are complemented by generous reception rooms, a fitted kitchen, utility space and a loft bedroom with ensuite. The south-facing rear garden provides a sunny outdoor area and there is off-street parking with access from Orient Close.
The layout works well for a growing family: three reception rooms give formal and informal living options, while five bedrooms and three bathrooms minimise morning rush-hour congestion. The property sits in a very affluent, well-connected neighbourhood with excellent schools nearby and fast broadband and mobile coverage — handy for commuters and home workers.
The house does require renovation in places, so buyers should budget for updating and redecoration. There is clear potential to extend or alter the house subject to planning permission (STPP). Council tax is described as expensive, and parking is limited to one off-street space. These are practical matters to weigh against the size, location and character on offer.
5 bedroom semi-detached house for sale in Carlisle Avenue, St. Albans, Hertfordshire, AL3 — £1,300,000 • 5 bed • 3 bath • 1666 ft²
5 bedroom semi-detached house for sale in Harpenden Road, St. Albans, Hertfordshire, AL3 — £1,000,000 • 5 bed • 4 bath • 2356 ft²
5 bedroom semi-detached house for sale in Mile House Lane, St. Albans, AL1 — £1,200,000 • 5 bed • 3 bath • 2333 ft²
4 bedroom semi-detached house for sale in Palfrey Close, St. Albans, Hertfordshire, AL3 — £1,250,000 • 4 bed • 1 bath • 1405 ft²
5 bedroom semi-detached house for sale in Ramsbury Road, St. Albans, Hertfordshire, AL1 — £1,200,000 • 5 bed • 1 bath • 1927 ft²
5 bedroom semi-detached house for sale in Selby Avenue, St. Albans, Hertfordshire, AL3 — £1,250,000 • 5 bed • 1 bath • 1839 ft²


















































































