TR7 1QL - 1 bedroom flat for sale in Higher Tower Road, Newquay, TR7

View on Property Piper

1 bedroom flat for sale in Higher Tower Road, Newquay, TR7

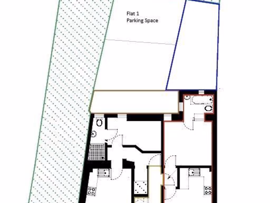
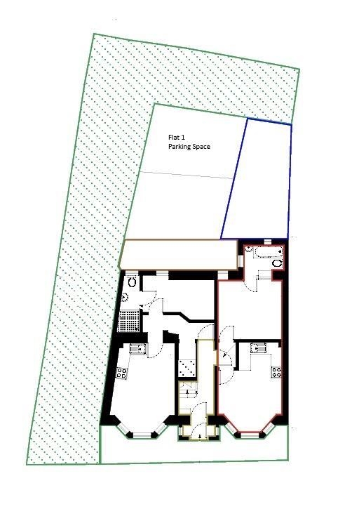
Summary - Flat 1, 12 Higher Tower Road TR7 1QL

1 bed 1 bath Flat

Affordable one-bed buy-to-let near Fistral Beach with private parking.
Ground-floor one-bedroom flat, highly walkable to Fistral Beach and town centre
Set on the ground floor of a period terrace, this compact one-bedroom flat sits almost equidistant between Newquay town centre and Fistral Beach — a strong location for holiday or long-term lets. The property includes a private off-street parking space and benefits from double glazing, fast broadband and low local crime, all useful for attracting tenants or a first-time buyer.

The flat is offered with a new 999-year lease, a peppercorn ground rent and an annual service charge of £500 (includes block buildings insurance). Estimated rental income is around £650 pcm, making this an accessible buy-to-let or entry-level purchase in a buoyant coastal market with good transport links and growing local amenities.

Internally the accommodation is very compact (approx. 292 sq ft) and arranged in a simple traditional layout. The size and layout suit single occupiers, couples or holiday guests rather than families. There is an assumption that electric heating is in place; if a different heating system is required, purchasers should budget for upgrade or installation.

Important practical points: council tax is Band A (low), pets and holiday lettings are permitted, and owners of the four flats will obtain the freehold once the fourth unit is sold. The combination of location, parking and rental potential gives clear investor appeal, but buyers should accept the limited internal space and possible heating works when budgeting.

Property Details

Brochure Descriptions

Image Descriptions

Floorplan Description

Rooms

Textual Property Features

Target Audience

AI Tags

Detected Visual Features

EPC Details

Nearby Schools

Nearest Bars And Restaurants

,,,,}

Nearest General Shops

,,}

Nearest Grocery shops

,,}

Nearest Supermarkets

,,}

Nearest Religious buildings

,,}

Nearest Medical buildings

,,,}

Nearest Leisure Facilities

,,,,}

Nearest Tourist attractions

,,}

Nearest Train stations

,,,,}

Nearest Bus stations and stops

,,,,}

Nearest Hotels

,,}

Tags

Local Market Stats

AirBnB Data

Similar Properties

Meta

High Res Images

Compatible Images

Low res Images

Thumbnails

Raw Images

High Res Floorplan Images

Compatible Floorplan Images

Low res Floorplan Images

FloorplanImages Thumbnail

Raw Floorplan Images