**Standout Features:**
- Prime cul-de-sac location in Cleave Park, Fremington
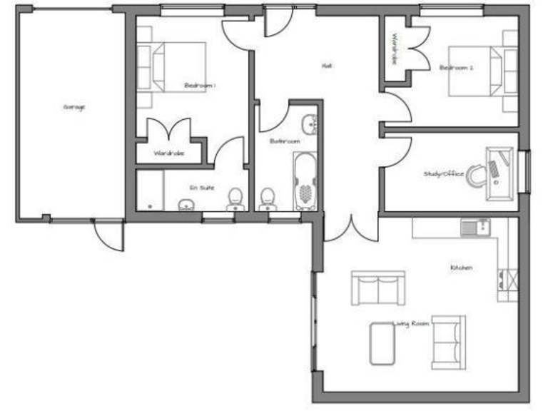
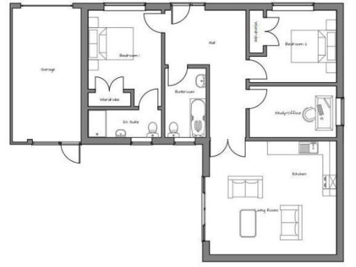
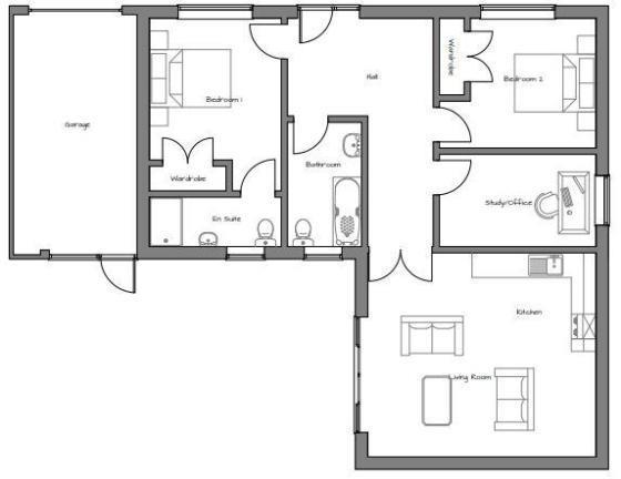
- Approved planning consent for 4 detached bungalows (55+ age limit)
- Each bungalow to have individual garages
- Ample living space: average of 112 sq m per bungalow
- Close proximity to village amenities and scenic Tarka Trail
- Very low crime area with excellent mobile and broadband connectivity
- Strong local education options with “Good” Ofsted ratings
- Potentially affluent market area
**Summary:**
Seize a unique opportunity to develop four detached bungalows in the tranquil Cleave Park, Fremington, perfect for those aged 55 and over. This level site, situated at the end of a peaceful cul-de-sac, allows for serene living, enhanced by stunning countryside views. Each bungalow, approximately 112 sq m with individual garages, promises comfortable, modern living just steps away from excellent local facilities such as a parish church, schools, restaurants, and medical services.
Enjoy the convenience of being within walking distance of Fremington Quay along the picturesque Tarka Trail, while the nearby town of Barnstaple offers a wealth of shopping, theatre, and educational opportunities. With planning consent already in place, this is an ideal venture for investors or those looking for a community-minded lifestyle in an affluent area. Don’t miss this rare development opportunity; secure your future here today!
Land for sale in Linden Close, Sticklepath, Barnstaple, EX31 — £300,000 • 1 bed • 1 bath • 1076 ft²
Plot for sale in Orleigh Close, Buckland Brewer, Bideford, Devon, EX39 — £300,000 • 1 bed • 1 bath
Land for sale in Tawstock, Barnstaple, EX31 — £450,000 • 1 bed • 1 bath • 27878 ft²
Land for sale in Lake, Tawstock, Barnstaple, EX31 — £330,000 • 1 bed • 1 bath • 19166 ft²
Land for sale in Bay View Road, EX39 — £650,000 • 1 bed • 1 bath
Land for sale in Torrington, EX38 — £150,000 • 1 bed • 1 bath










































