Chain-free ground-floor home with garden and extension potential near Queens Park.
Two double bedrooms at opposite ends for privacy
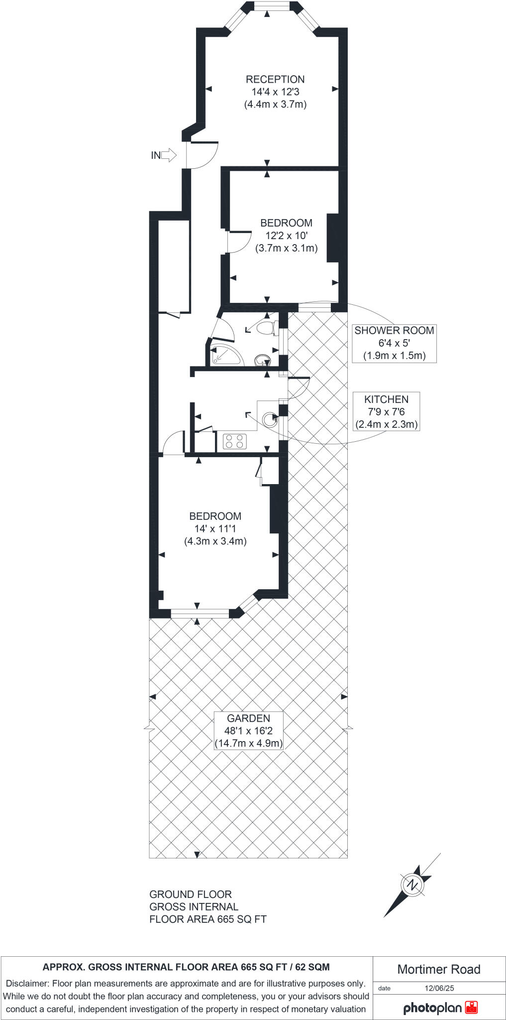
Set within a handsome Victorian conversion on Mortimer Road, this ground-floor two-bedroom apartment offers ready-to-move-in accommodation with a private garden — rare for a property at this price in NW10. The front reception benefits from a sash bay window, period fireplace and wood flooring, creating a bright, characterful living space. The layout places two double bedrooms at opposite ends of the flat, useful for sharers or parents needing separation and privacy.
The kitchen has been newly fitted with modern appliances and gives direct access to the garden, making indoor–outdoor entertaining straightforward. The shower room is a three-piece suite with a window for ventilation. There is potential to extend into the side return subject to planning permission and consents (STPP), which could increase living space or add value similar to neighbouring properties.
Practical details: the property is chain-free and has a long lease (176 years) with modest ground rent (£160). Heating is by mains gas boiler and radiators; double glazing is installed but dates from before 2002. Buyers should note the solid brick construction (no assumed wall insulation) and that the kitchen is compact. The area is inner-city cosmopolitan with good local schools, excellent transport links and quick access to Queens Park’s green space — attractive to first-time buyers and local professionals.
2 bedroom flat for sale in Mortimer Road, London, NW10 — £625,000 • 2 bed • 1 bath • 694 ft²
2 bedroom flat for sale in Mortimer Road, Kensal Rise, NW10 — £950,000 • 2 bed • 2 bath • 955 ft²
2 bedroom flat for sale in Wrottesley Road, Kensal Rise, NW10 — £475,000 • 2 bed • 1 bath • 806 ft²
2 bedroom apartment for sale in Ashburnham Road, London, NW10 — £650,000 • 2 bed • 1 bath • 638 ft²
2 bedroom apartment for sale in Buchanan Gardens, London, NW10 — £650,000 • 2 bed • 1 bath • 671 ft²
2 bedroom flat for sale in Ashburnham Road, London, NW10 — £625,000 • 2 bed • 1 bath • 604 ft²






























