Bright two-bedroom near College Road and Kensal Green station.
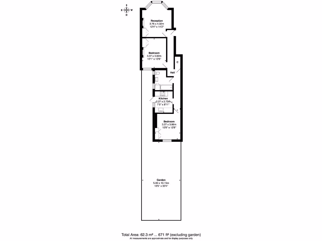
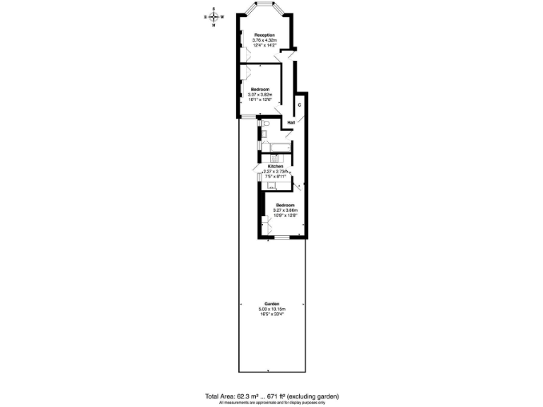
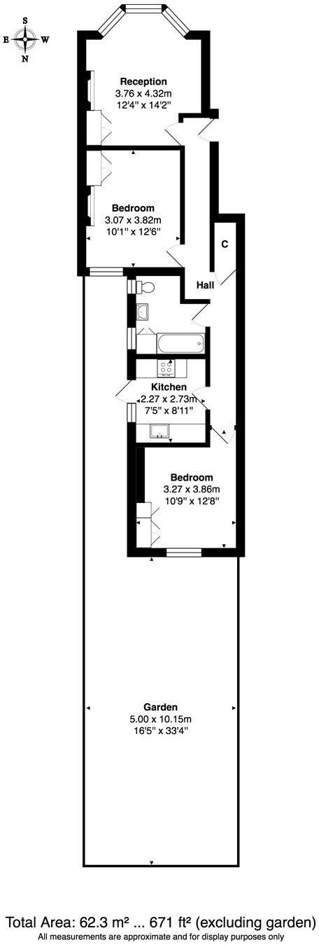
671 sq.ft ground-floor two-bedroom with private rear garden
A well-presented ground-floor two-bedroom conversion offering 671 sq.ft and a private rear garden in Kensal Rise. The reception room features a south-facing bay, high ceilings, original fireplace and plantation shutters that flood the space with light. The kitchen and bathroom are contemporary, making the flat move-in ready for buyers seeking period character with modern convenience.
Practical advantages include a share of freehold, mains gas central heating and excellent local connectivity — Kensal Green station and College Road amenities are within a short walk. There is also scope to extend to the rear and into the side return, subject to planning, which would create a larger open-plan living area and add value.
Notable considerations: the lease has around 91 years remaining and the building’s solid brick walls are likely uninsulated; double glazing was installed before 2002 and may not meet current efficiency standards. The immediate area records above-average crime and sits within a deprived ward, factors to weigh for some buyers. Council tax banding is moderate.
Overall this property suits first-time buyers or investors looking for a bright, characterful home with outdoor space and clear potential to increase living area and value with permitted works.
2 bedroom flat for sale in Burrows Road, Kensal Green, NW10 5SJ, NW10 — £675,000 • 2 bed • 1 bath • 637 ft²
2 bedroom apartment for sale in Mortimer Road, London, NW10 — £600,000 • 2 bed • 1 bath • 665 ft²
2 bedroom apartment for sale in Buchanan Gardens, Kensal Rise, NW10 — £550,000 • 2 bed • 1 bath • 713 ft²
2 bedroom apartment for sale in Ashburnham Road, London, NW10 — £650,000 • 2 bed • 1 bath • 638 ft²
2 bedroom flat for sale in College Road, London, NW10 — £685,000 • 2 bed • 1 bath • 671 ft²
2 bedroom flat for sale in Bathurst Gardens, London, NW10 — £590,000 • 2 bed • 1 bath • 767 ft²






































