TQ4 7PT - 1 bed elevated development plot paignton in Totnes Road, TQ…

View on Property Piper

Land for sale in Totnes Road, Paignton, TQ4

Summary - WHITECOT TOTNES ROAD PAIGNTON TQ4 7PT

1 bed 1 bath Land

Planning granted for two three-bedroom homes on over half an acre with garages and countryside views.
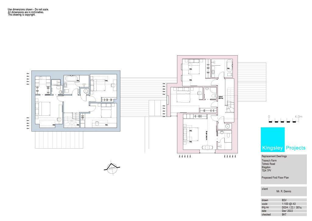
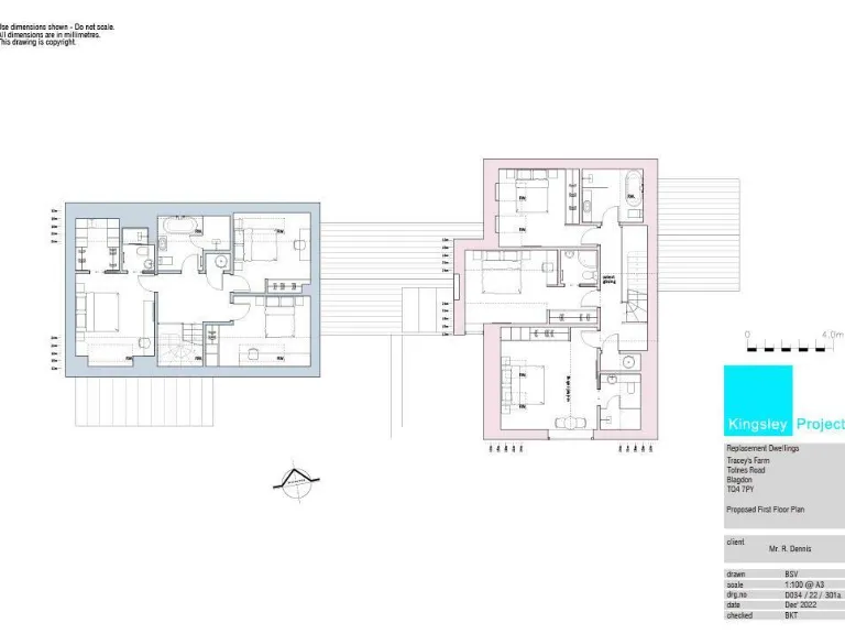
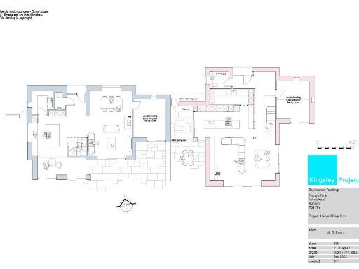
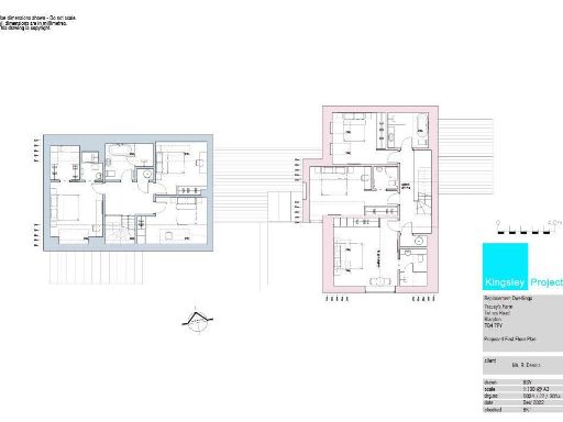
Planning permission granted for two link-detached three-bed homes (Nov 2023)
Site size about 0.54 acres with south-facing gardens and countryside views
Each plot includes private parking and a single garage
Mains water and electricity on site; buyer must connect
Shared access track retained by seller — buyer to secure access rights
Derelict outbuilding/barn present; requires restoration or removal
No flood risk; excellent mobile signal and fast broadband
Area shows some deprivation; consider local demand implications
Set between Totnes and Collaton St. Mary, this elevated 0.54-acre freehold site has full planning permission (Torbay Council P/2022/1363, granted Nov 2023) for two link-detached three-bedroom family homes. The approved designs use larch cladding, stone and zinc roofs, with ground-floor open-plan living, bi-fold doors and south-facing gardens that maximise light and countryside views.

Practical details are straightforward: mains water and electricity are on site but the buyer is responsible for final connections. Access is via a shared drive/track which will be retained by the seller, and each dwelling has private parking and a single garage. A derelict outbuilding/ barn sits on the plot and will require restoration or removal depending on your plan.

This site suits a housebuilder or an owner-occupier developer looking to deliver contemporary family homes in a semi-rural location. Local schools are well regarded, bus services link to Totnes and Paignton, and the A38 provides good road access to Exeter and Plymouth. There is no flood risk and mobile and broadband coverage are strong.

Buyers should note local socio-economic indicators show some area deprivation and the shared access arrangement may require an easement or management agreement. EPCs are exempt for land; council tax banding is to be confirmed. Overall, the plot offers clear planning-led value with immediate scope for delivery, subject to connection costs and access arrangements.

Property Details

Brochure Descriptions

Image Descriptions

Floorplan Description

Textual Property Features

Target Audience

AI Tags

Detected Visual Features

Nearby Schools

Nearest Bars And Restaurants

,,,,}

Nearest General Shops

,,}

Nearest Grocery shops

,,}

Nearest Supermarkets

,,}

Nearest Religious buildings

,,}

Nearest Medical buildings

,,,}

Nearest Leisure Facilities

,,,,}

Nearest Tourist attractions

,,}

Nearest Train stations

,,,,}

Nearest Bus stations and stops

,,,,}

Nearest Hotels

,,}

Tags

Local Market Stats

AirBnB Data

Similar Properties

Meta

High Res Images

Compatible Images

Low res Images

Thumbnails

Raw Images

High Res Floorplan Images

Compatible Floorplan Images

Low res Floorplan Images

FloorplanImages Thumbnail

Raw Floorplan Images