Full planning for two three‑bed homes on just over half an acre with garages and elevated views.
Full planning granted for two link‑detached three‑bed homes (Nov 2023)
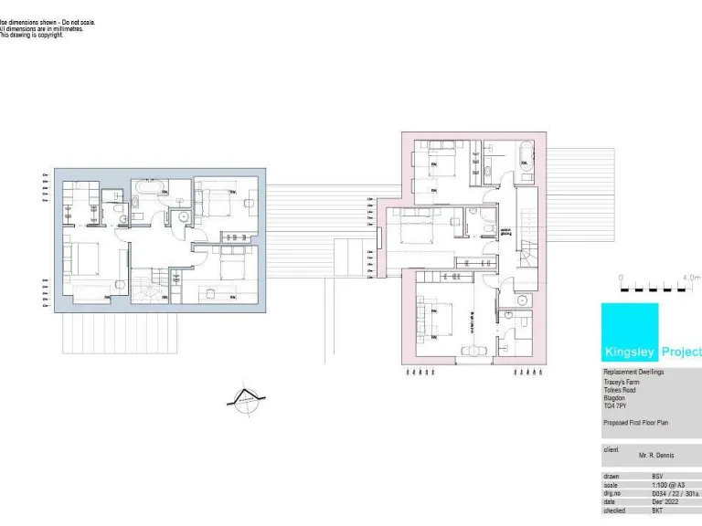
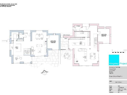
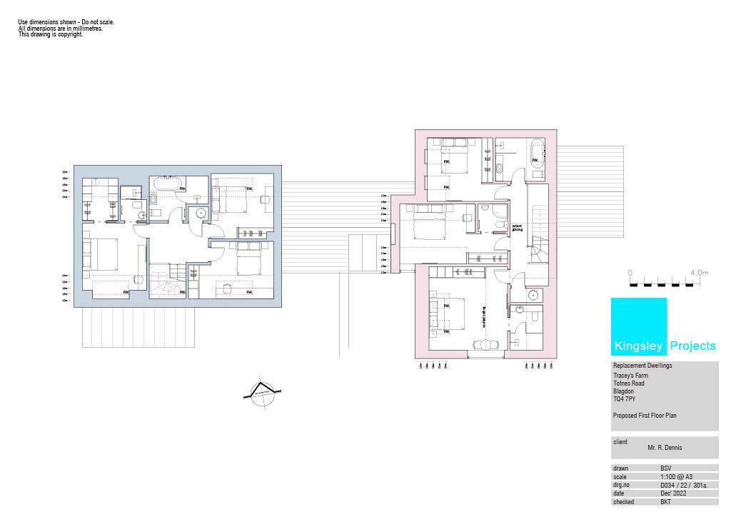
A rare development opportunity on Totnes Road: full planning (Torbay Council P/2022/1363, granted Nov 2023) to build two link‑detached three‑bed family homes. The site extends to just over 0.5 acres, sits in an elevated position and benefits from generous gardens, single garages and private parking for each plot. The proposed designs use contemporary materials (larch cladding, stone and zinc pitched roofs) and take advantage of strong southern light and far-reaching countryside — with distant coastal glimpses from the first floors.
Practical points are straightforward but important: mains water and electricity are on site, but the buyer is responsible for connecting these services. The shared access track to the site is being retained by the sellers, so access arrangements will need to be confirmed and factored into future management. EPC is listed as exempt and council tax band is to be confirmed.
This setting will suit families seeking new, low‑maintenance homes in a semi‑rural location between Totnes and Paignton, or an investor looking to deliver two modern dwellings with good school links and road/rail connections nearby. Note the wider area indicators: local services include a village primary, a garage and regular bus routes; the area is recorded as having some deprivation, which may affect local resale values and demand dynamics.
Land for sale in Totnes Road, Paignton, TQ4 — £325,000 • 1 bed • 1 bath • 23522 ft²
Plot for sale in Development opportunity, Hope Close, Totnes, TQ9 — £85,000 • 1 bed • 1 bath • 1614 ft²
Plot for sale in Copland View, Totnes, TQ9 — £100,000 • 1 bed • 1 bath
Plot for sale in Development Site For 4 Dwellings, Moreleigh, South Hams, TQ9 — £250,000 • 1 bed • 1 bath
Commercial development for sale in Former Torbay Holiday Motel, Totnes Road, Paignton, Devon, TQ4 7PT, TQ4 — POA • 1 bed • 1 bath
Plot for sale in DEVELOPMENT SITE FOR 9 DWELLINGS, Watcombe, Torquay, Devon, TQ1 — £695,000 • 1 bed • 1 bath


























































