Comfortable, low-maintenance living close to shops and station for downsizers.
One-bedroom retirement flat (over-60s) with communal facilities
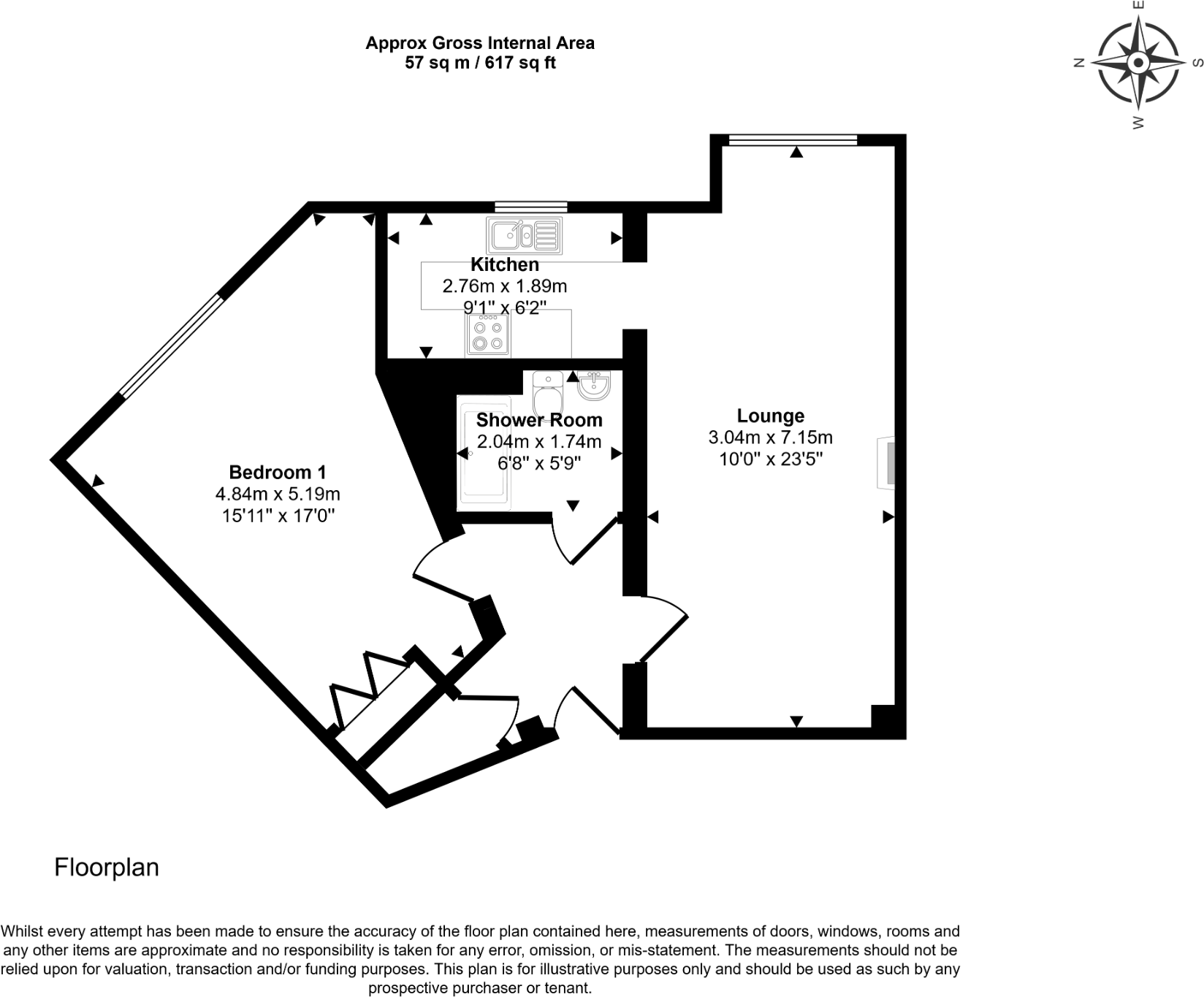
Approximately 614 sq ft — comfortable, low-maintenance layout
On-site manager, lift, communal lounge, gardens and laundry
Resident and visitor off-street parking included
Short walk to Guildford town centre and railway station
Leasehold tenure — check service charges and lease length
Searches and title documents available upfront to speed purchase
Local crime levels recorded as very high — factor into decision
This one-bedroom apartment at Denehyrst Court offers a compact, low-maintenance base for over-60s wanting to be close to Guildford town centre. The flat sits in a professionally managed retirement development with lift access, communal lounge and gardens, plus resident and visitor parking for ease of arrivals and visitors.
The accommodation is comfortably sized at around 614 sq ft with a bright living area, fitted kitchen and modern shower room. An on-site manager, communal laundry and an active residents’ lounge add everyday convenience and a supportive community atmosphere.
Location is a major strength: the town centre, shops and Guildford railway station are within walking distance, and major roads are easily reached for visiting family. Searches and key title documents are available upfront, which can speed a sale and reduce uncertainty.
Important practical points: the property is leasehold and strictly for over-60s. Local recorded crime levels are very high for the area, which prospective buyers should consider alongside excellent mobile signal and average broadband speeds. The flat is offered chain-free, making it straightforward to move into once formalities are completed.
 1 bedroom retirement property for sale in York Road, Guildford, Surrey, GU1 — £100,000 • 1 bed • 1 bath • 507 ft²
 1 bedroom retirement property for sale in York Road, Guildford, Surrey, GU1 — £100,000 • 1 bed • 1 bath • 507 ft² 1 bedroom property for sale in York Road, GUILDFORD, Surrey, GU1 — £100,000 • 1 bed • 1 bath • 633 ft²
 1 bedroom property for sale in York Road, GUILDFORD, Surrey, GU1 — £100,000 • 1 bed • 1 bath • 633 ft² 1 bedroom retirement property for sale in Denehyrst Court, Guildford, Surrey, GU1 — £145,000 • 1 bed • 1 bath • 533 ft²
 1 bedroom retirement property for sale in Denehyrst Court, Guildford, Surrey, GU1 — £145,000 • 1 bed • 1 bath • 533 ft² 1 bedroom apartment for sale in Denehyrst Court, York Road, Guildford, Surrey, GU1 — £100,000 • 1 bed • 1 bath • 659 ft²
 1 bedroom apartment for sale in Denehyrst Court, York Road, Guildford, Surrey, GU1 — £100,000 • 1 bed • 1 bath • 659 ft² 1 bedroom flat for sale in York Road, Guildford, GU1 — £115,000 • 1 bed • 1 bath • 465 ft²
 1 bedroom flat for sale in York Road, Guildford, GU1 — £115,000 • 1 bed • 1 bath • 465 ft² 1 bedroom retirement property for sale in Tarragon Drive, Guildford, GU2 — £90,000 • 1 bed • 1 bath • 394 ft²
 1 bedroom retirement property for sale in Tarragon Drive, Guildford, GU2 — £90,000 • 1 bed • 1 bath • 394 ft²






















































