Move-in ready flat with private patio and off-street parking near transport.
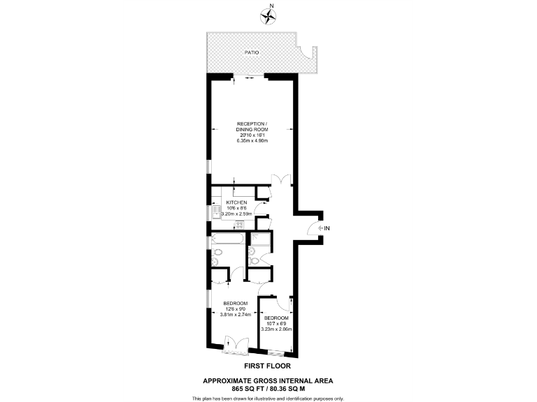
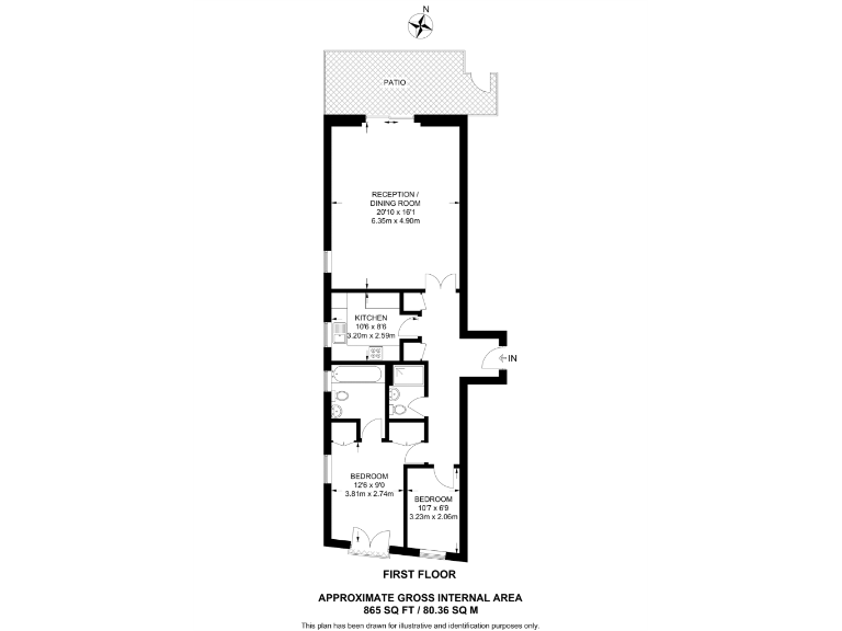
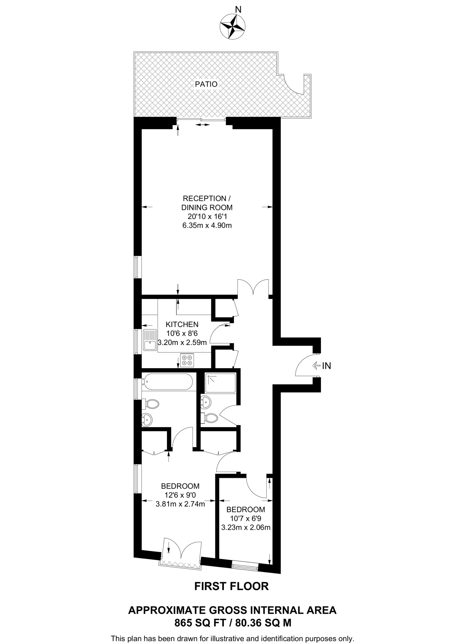
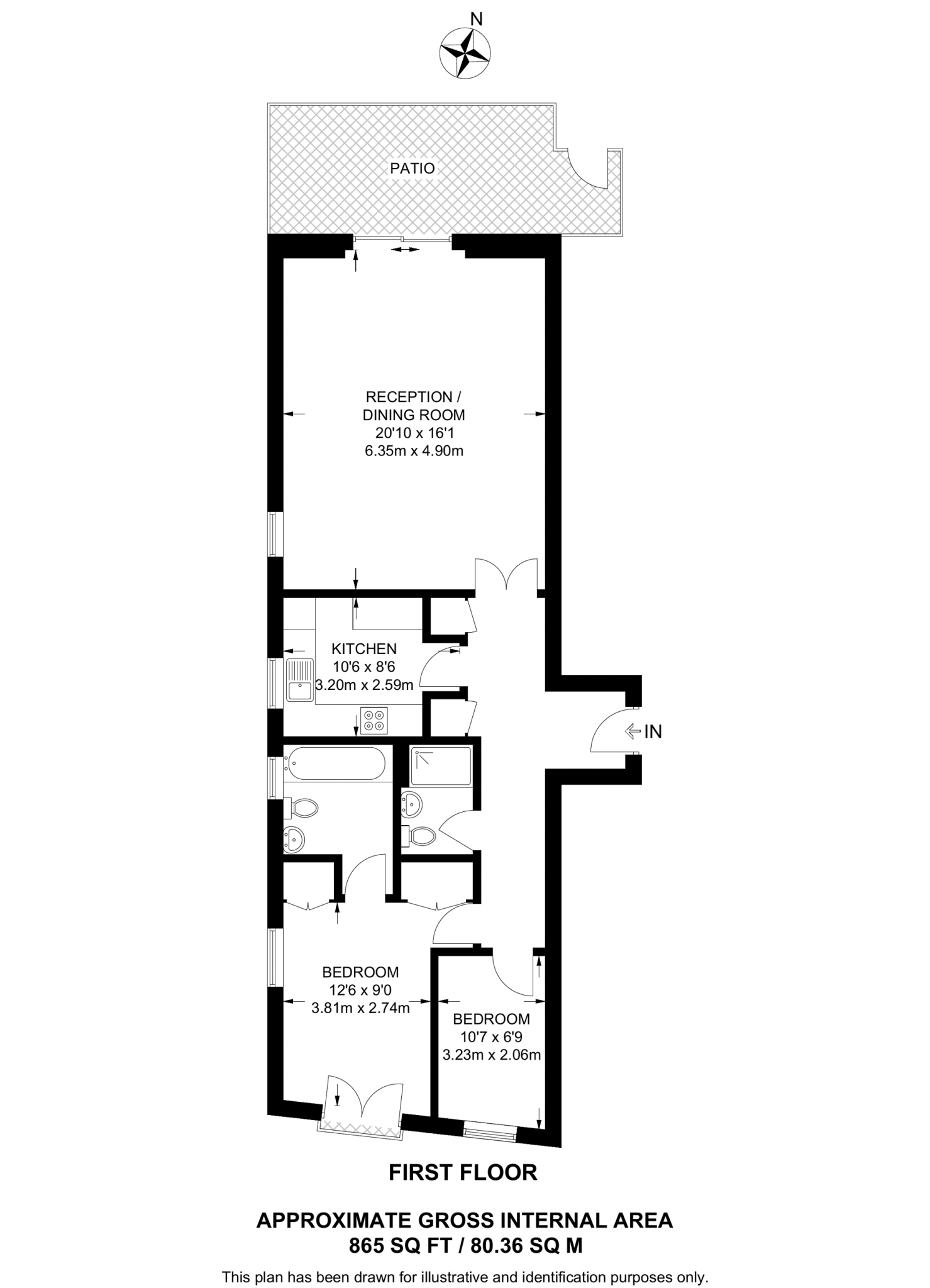
First-floor two-bedroom layout with generous reception room
Bright, well-presented two-bedroom apartment arranged on the first floor with a generous reception room and private patio. The modern kitchen and two contemporary bathrooms suit buyers wanting a move-in-ready home or a rental with immediate appeal. Off-street parking is a rare convenience in Limehouse and the property sits near local green spaces, shops, canals and good transport links.
Practical details are straightforward: the flat measures about 865 sq ft, is leasehold with 97 years remaining, and has double glazing and mains gas central heating. Service charges and ground rent are notable running costs at £3,856 and £302 per year respectively — something to factor into affordability calculations. Flood risk is very low and local crime levels are low.
The building exterior in the provided images shows a 1960s brutalist brick style, while records list construction in 2003–2006; buyers should check construction/maintenance history if this matters. Ceiling heights are standard and the apartment is average-sized rather than spacious. Overall, this is a practical, contemporary apartment for first-time buyers or investors seeking a well-presented home in a central Limehouse location.
2 bedroom flat for sale in Victory Place Narrow Street E14 — £500,000 • 2 bed • 2 bath • 765 ft²
2 bedroom flat for sale in Keymer Place, Tower Hamlets, London, E14 — £449,000 • 2 bed • 1 bath • 600 ft²
2 bedroom flat for sale in Yeo Street, Bow, London, E3 — £625,000 • 2 bed • 2 bath • 807 ft²
2 bedroom flat for sale in Berglen Court, Limehouse, London, E14 — £625,000 • 2 bed • 2 bath • 869 ft²
2 bedroom flat for sale in Commercial Road, E14, Tower Hamlets, London, E14 — £450,000 • 2 bed • 1 bath • 787 ft²
2 bedroom apartment for sale in Island Row, E14 — £475,000 • 2 bed • 2 bath • 719 ft²






































































































