Garage, garden and extension potential near highly regarded schools and train links.
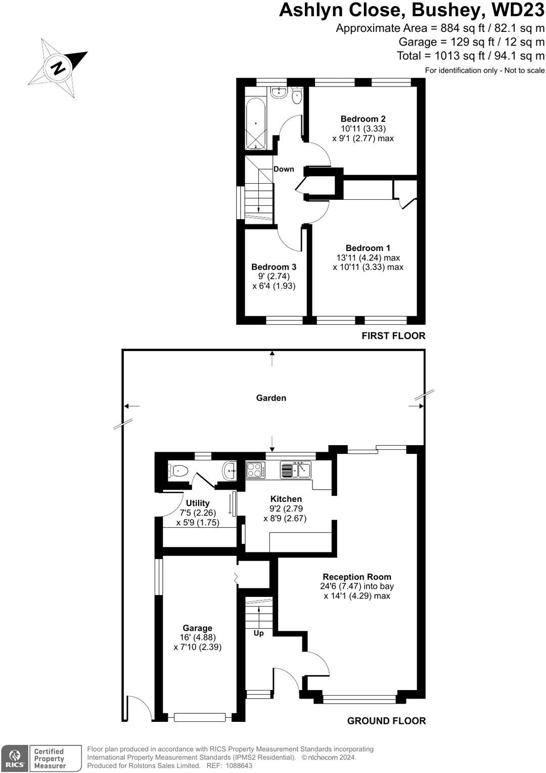
- Detached three-bedroom house on a quiet cul-de-sac
- Garage plus off-street parking for multiple vehicles
- Approximately 1,013 sq ft internal living space
- Single bathroom and downstairs cloakroom only
- Kitchen and fixtures are dated; needs modernization
- Extension potential subject to local planning consent
- EPC rating D; Council Tax Band E
- Built c.1967–75; cavity walls assumed uninsulated
A detached three-bedroom house on a quiet cul-de-sac, well suited to growing families seeking good local schools and commuter links. The layout includes a separate kitchen, utility room, spacious reception and a single family bathroom across approximately 1,013 sq ft. Garage and off-street parking add everyday convenience.
The property presents clear scope to modernise and personalise: internal fittings and the kitchen are dated and will benefit from updating. There is potential to extend subject to local planning consents, offering opportunity to increase living space or reconfigure the layout for modern family life.
Practical details to note: the home dates from the late 1960s–1970s, has double glazing, a mains gas boiler with radiators, an EPC rating of D and sits in Council Tax Band E. The plot is a decent suburban size with a manageable garden and quick access to Bushey station, major roads and a wide choice of primary and secondary schools.
4 bedroom detached house for sale in Partridge Close, Bushey, WD23 — £1,150,000 • 4 bed • 2 bath • 1509 ft²
3 bedroom semi-detached house for sale in Lane Gardens, Bushey Heath, WD23 — £495,000 • 3 bed • 1 bath • 797 ft²
3 bedroom detached bungalow for sale in Shady Bush Close, Bushey, WD23 — £899,950 • 3 bed • 2 bath • 1324 ft²
5 bedroom detached house for sale in Aldenham Road, Bushey, WD23 — £1,250,000 • 5 bed • 2 bath • 2174 ft²
3 bedroom semi-detached house for sale in Ash Hill Close, Bushey, WD23 — £700,000 • 3 bed • 2 bath • 1152 ft²
4 bedroom semi-detached house for sale in Avenue Rise, Bushey, WD23 — £1,300,000 • 4 bed • 2 bath • 2174 ft²


















































