High-spec five-bedroom home on a large private plot in a gated rural enclave.
Nearly 2,914 sq ft across three floors
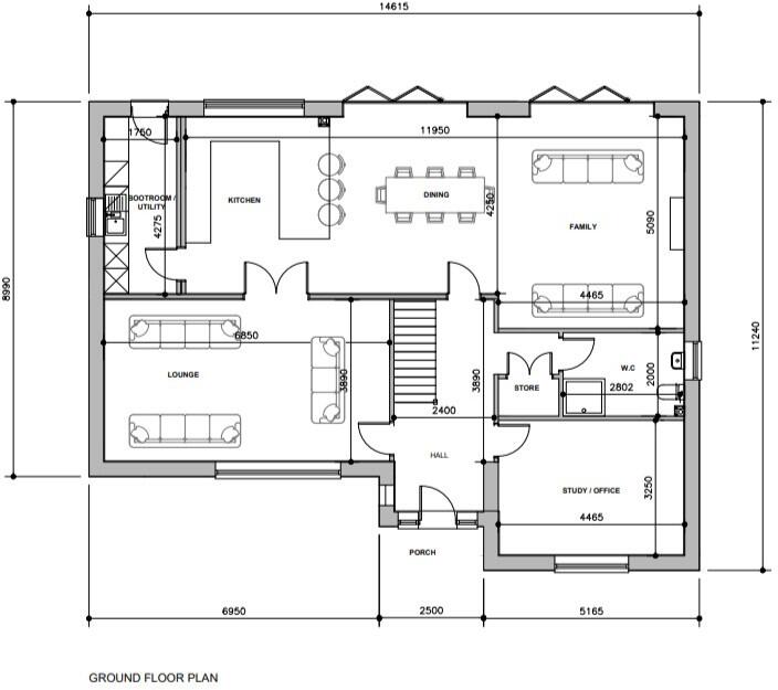
700+ sq ft open-plan kitchen, dining and living area
Underfloor heating (ground floor) via air source heat pump
High-spec Bosch & Neff appliances; luxury Villeroy & Boch bathrooms
Private gated development with long shared drive
Double or triple garage options; huge private plot
Medium flood risk; some trees subject to TPOs
Shared-drive maintenance arrangements and EPC/tax band TBC
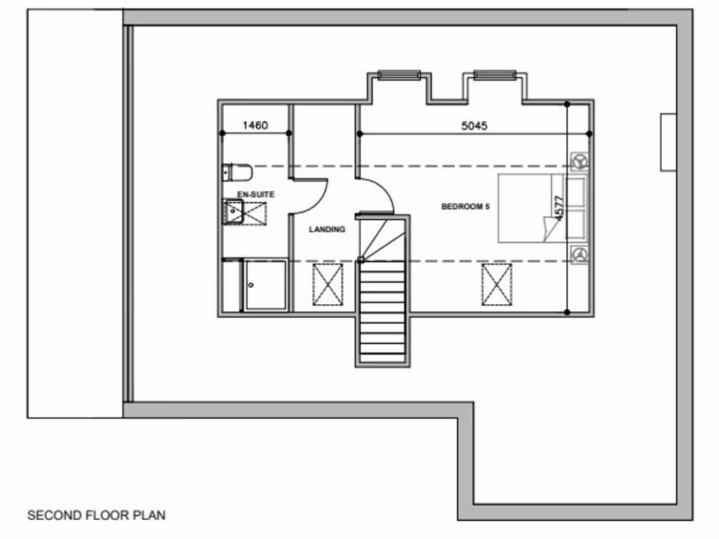
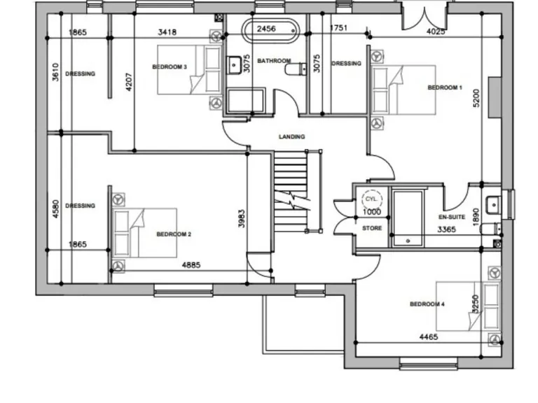
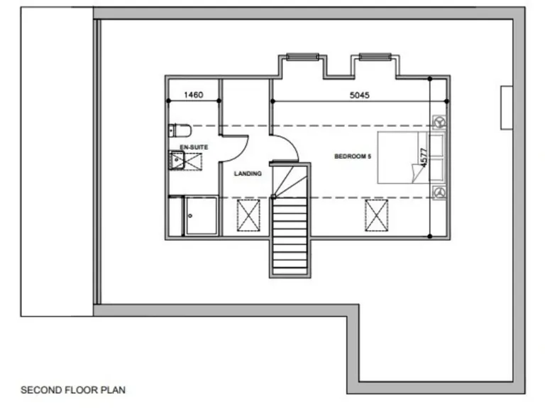
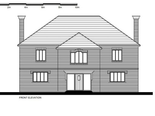
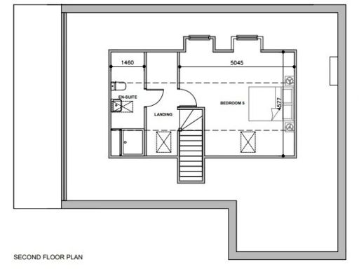
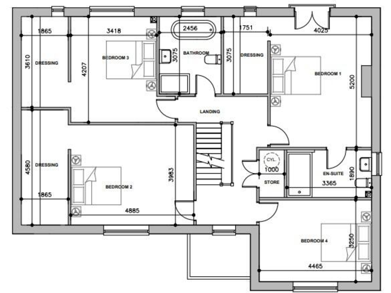
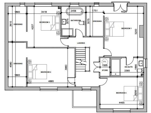
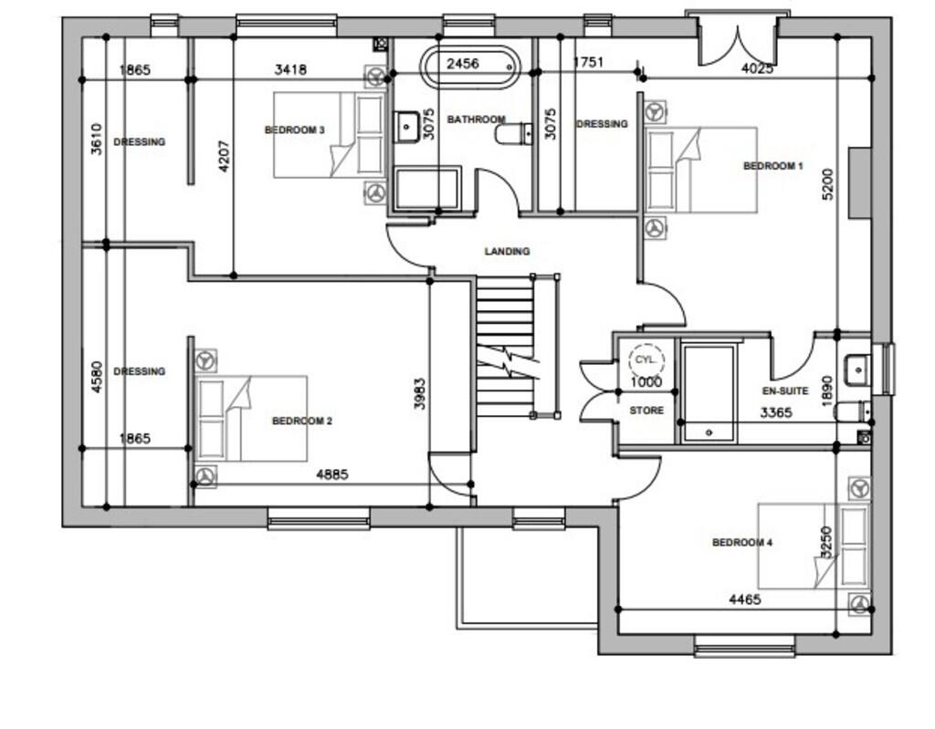
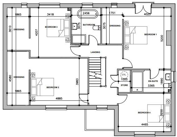
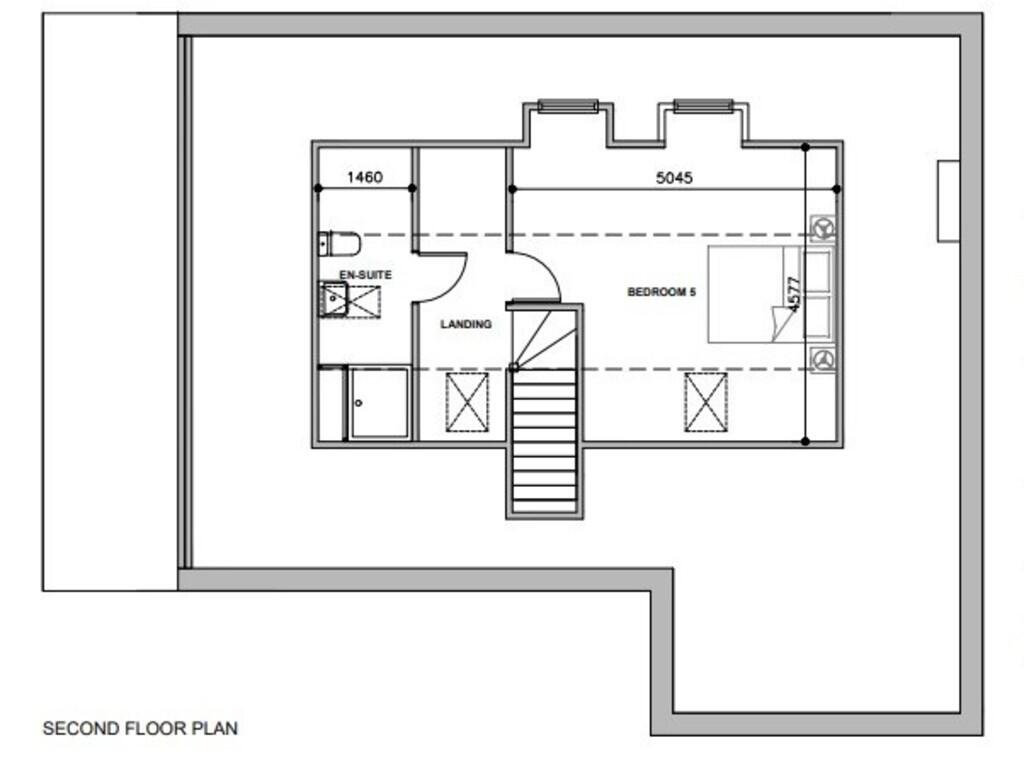
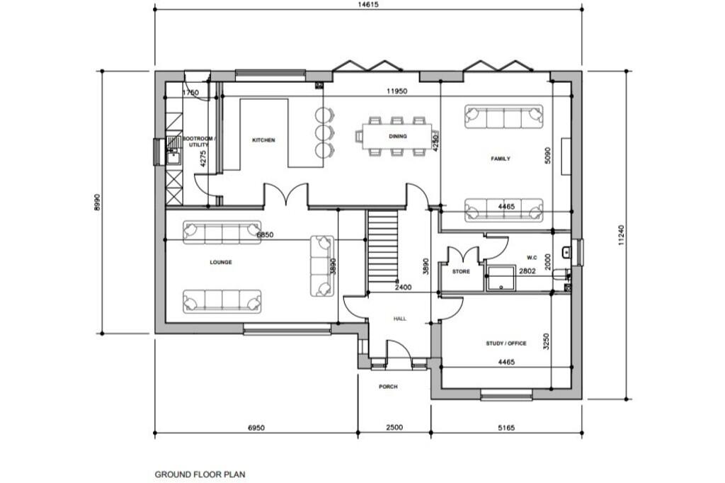
Set within a private gated enclave, The Woodlands presents a substantial five-bedroom family home finished to a high specification. The house offers nearly 2,914 sq ft across three floors, with a dramatic double-height reception hall, a 700+ sq ft open-plan living, dining and kitchen area, and generous, professionally landscaped gardens backing onto mature tree lines.
The specification focuses on energy-efficient and luxury fittings: ground-floor underfloor heating served by an air source heat pump, LVT flooring to key reception areas, fully integrated Bosch and Neff appliances, Villeroy & Boch sanitaryware and Porcelanosa tiling. Practical extras include double or triple garaging, private drive parking, inset LED feature lighting and a 10-year insurance-backed new-build guarantee.
This home is aimed at growing families who want a peaceful rural setting with good local amenities and fast broadband, yet sensible commuting links. The layout provides flexible space for home working, teenage or guest suites on the second floor, and formal and informal living zones ideal for entertaining.
Notable practical points and constraints are set out plainly: the development sits along a shared private drive (maintenance arrangements currently to be confirmed) and some onsite trees are covered by Tree Preservation Orders. Flood risk is classed as medium for the area. EPC and council tax band are not yet confirmed; purchasers should satisfy themselves on these, plus suitability of the air source heat pump, via professional advice.
5 bedroom detached house for sale in Stone Row Place, Moira, DE12 — £630,000 • 5 bed • 3 bath • 1800 ft²
5 bedroom detached house for sale in Main Street,
Woodthorpe,
Loughborough,
LE12 — £750,000 • 5 bed • 1 bath • 2579 ft²
4 bedroom detached house for sale in Yeldersley, Ashbourne , DE6 — £1,450,000 • 4 bed • 3 bath • 2600 ft²
4 bedroom detached house for sale in Main Street,
Woodthorpe,
Loughborough,
LE12 — £580,000 • 4 bed • 1 bath • 2311 ft²
6 bedroom detached house for sale in Agar Nook Lane, Coalville, LE67 — £560,000 • 6 bed • 3 bath • 1816 ft²
4 bedroom detached house for sale in Orchard Way, Donisthorpe, DE12 — £550,000 • 4 bed • 3 bath • 1097 ft²






















































































































































