Modern family living with large garden and double garage.
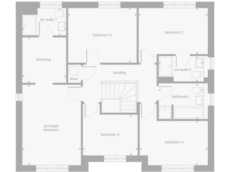
Five double bedrooms, principal with dressing area and en-suite
Set on a very large plot in the semi-rural hamlet of Woodthorpe, this five-bedroom detached new build combines modern living with traditional proportions. The ground floor centres on a bright 20ft kitchen with a central island, rooflights and bi-fold doors that connect directly to the garden — ideal for family life and entertaining. A formal dining room, 19ft lounge with bay window and a separate study add flexible living space.
The first-floor principal suite includes a dressing area and en-suite, and a second bedroom also benefits from an en-suite. The accommodation totals approximately 2,579 sqft and is complemented by a double garage and laundry room. Practical benefits include fast broadband, excellent mobile signal and low local crime in a predominantly suburban setting with good commuter access to Loughborough and Leicester.
This is a new build property with a modest annual service charge of £190 and freehold tenure shown for plots on the development. Buyers should note the local area classification shows some relative deprivation, and council tax banding is yet to be confirmed. The home will suit families needing space, a home office and strong transport links, or buyers seeking a low-maintenance modern house with scope to personalise finishes.
4 bedroom detached house for sale in Main Street,
Woodthorpe,
Loughborough,
LE12 — £585,000 • 4 bed • 1 bath • 2128 ft²
4 bedroom detached house for sale in Main Street,
Woodthorpe,
Loughborough,
LE12 — £580,000 • 4 bed • 1 bath • 2311 ft²
4 bedroom detached house for sale in Main Street,
Woodthorpe,
Loughborough,
LE12 — £457,000 • 4 bed • 1 bath • 1936 ft²
3 bedroom detached house for sale in Main Street,
Woodthorpe,
Loughborough,
LE12 — £365,000 • 3 bed • 1 bath • 1264 ft²
3 bedroom detached house for sale in Main Street,
Woodthorpe,
Loughborough,
LE12 — £430,000 • 3 bed • 1 bath • 551 ft²
3 bedroom detached house for sale in Main Street,
Woodthorpe,
Loughborough,
LE12 — £400,000 • 3 bed • 1 bath • 551 ft²


























































































