Large 0.23-acre plot with planning consent and panoramic Devon countryside views..
- Full planning permission for a two-bedroom dwelling (ref: 24/01295/FULL)
- Plot size approximately 0.23 acres with panoramic rural views
- Mains water and electricity connected; private drainage required
- Existing redundant commercial building to be demolished before build
- Planning currently under revision to alter dwelling position (25/01178/FULL)
- Very slow broadband; alternative connectivity likely needed
- Quiet, remote hamlet location; Bow 1.6 miles, Crediton 7.5 miles
- Excellent mobile signal; low local crime
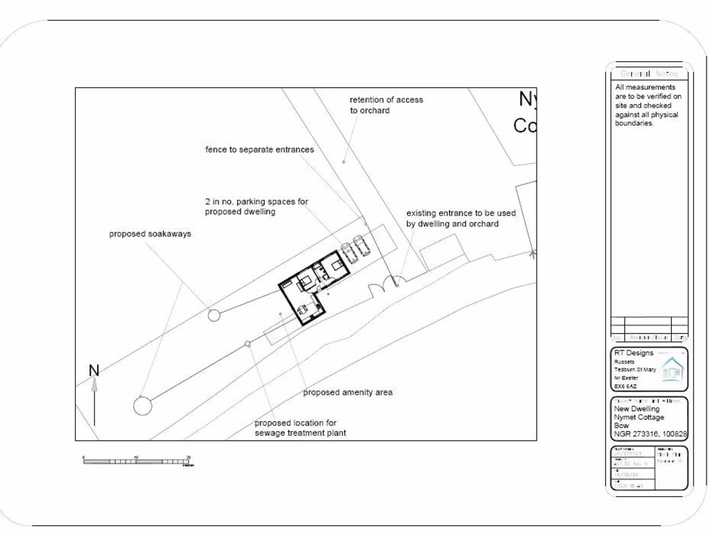
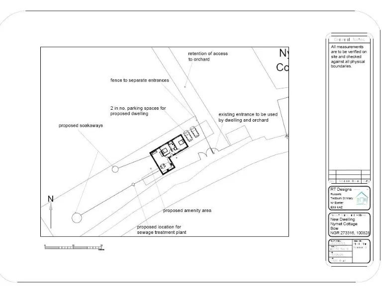
Set in an idyllic hamlet setting, this large 0.23-acre plot benefits from full planning permission (ref: 24/01295/FULL) to replace a redundant commercial building with a single-storey, two-bedroom dwelling. The proposed design offers generous open-plan living and large windows to capture panoramic rural views across productive Devon farmland. Mains water and electricity are connected; a private drainage solution is expected with any build.
This is a strong opportunity for an investor or self-builder seeking value-add in a quiet location. The site is accessed from an adopted country lane and is enclosed by mature hedgerows and trees that enhance privacy and integrate the house into the landscape. The permission is currently the subject of a modest revision (ref: 25/01178/FULL) to alter the dwelling position — buyers should review the revised plans and council decision documents.
Material points to note: broadband speeds at the site are very slow, so planning for alternative connectivity (e.g., fixed wireless or satellite) may be required. The plot is in a remote hamlet with limited local services, though Bow (1.6 miles) and Crediton (7.5 miles) provide amenities, schools and transport links; Exeter is approximately 15 miles away. Prospective purchasers should allow for demolition of the existing commercial structure and installation of a private drainage system as part of construction costs.
In all, the site offers substantial uplift potential for the purchaser who can capitalise on planning consent, the elevated rural aspect and strong privacy. It will suit an experienced developer, a self-builder seeking a bespoke countryside home, or an investor targeting refurbishment and resale once built.
Land for sale in Zeal Monachorum, Crediton, Devon, EX17 — £450,000 • 1 bed • 1 bath • 17000 ft²
Land for sale in Neopardy, Crediton, EX17 — £295,000 • 1 bed • 1 bath • 4986 ft²
10 bedroom terraced house for sale in Neopardy, Crediton, EX17 — £295,000 • 10 bed • 1 bath
3 bedroom detached house for sale in Dunsford, Exeter, EX6 — £350,000 • 3 bed • 1 bath • 2883 ft²
5 bedroom barn conversion for sale in Bow, Crediton, EX17 — £625,000 • 5 bed • 3 bath • 2400 ft²
Plot for sale in SELF BUILD PLOT, Chulmleigh Road, Morchard Bishop, EX17 — £215,000 • 1 bed • 1 bath • 1938 ft²














































