**Standout Features:**
- Historic former church building from 1886 with Gothic Revival architectural charm.
- Full planning consent for conversion into six residential flats, enhancing development potential.
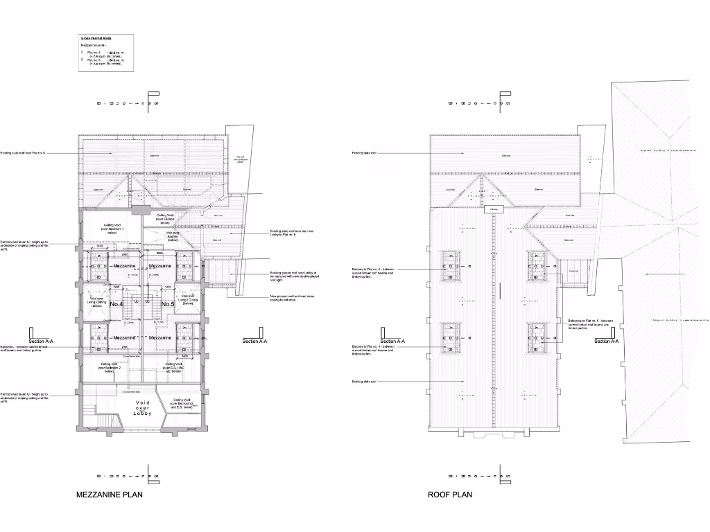
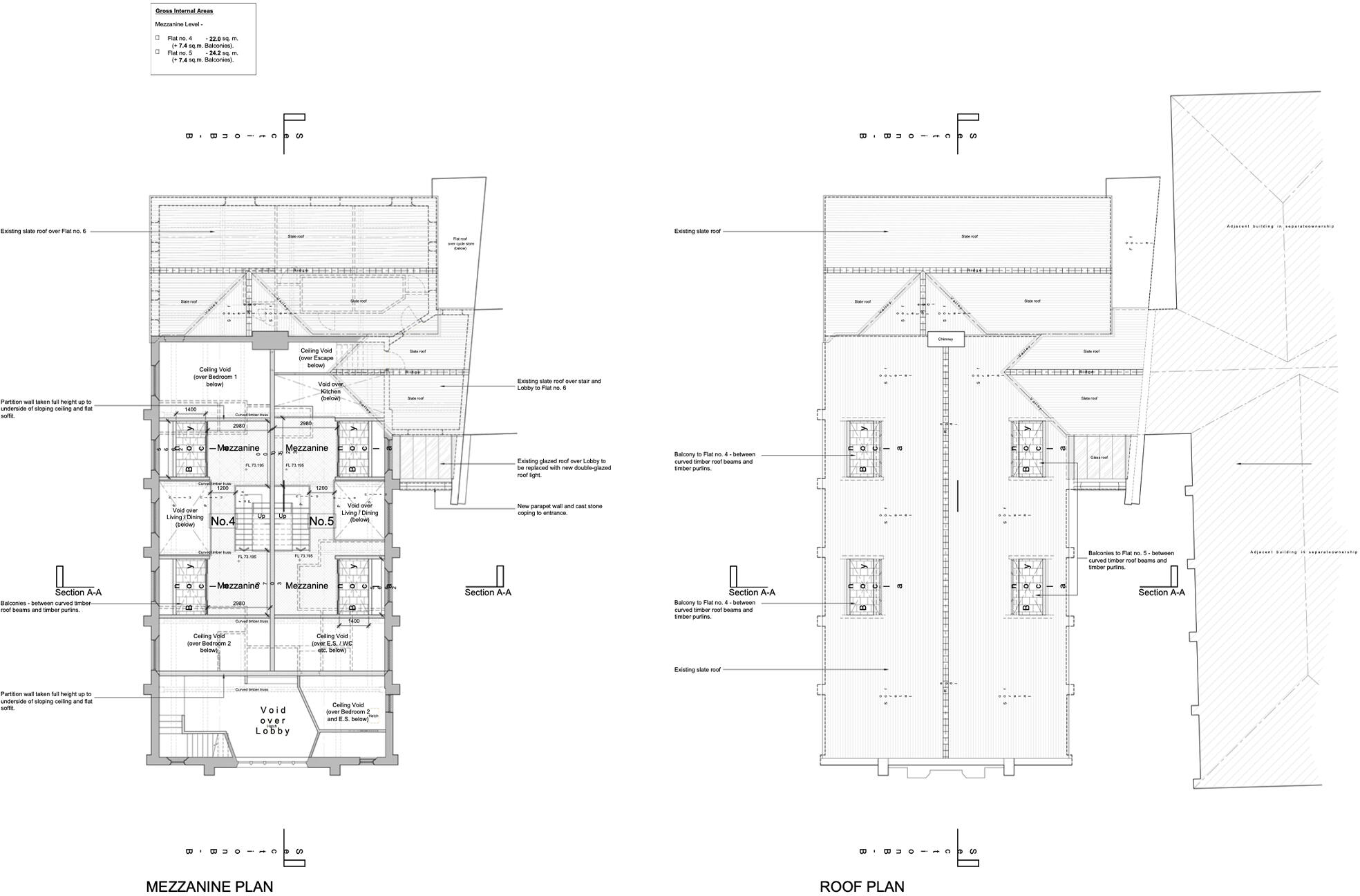
- Spacious interior with both original and mezzanine levels, ideal for creative redevelopment.
- Prime central location in Tamworth, close to amenities and transport links.
- Auction sale method with a 56-day completion window.
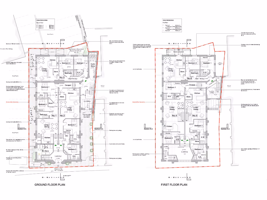
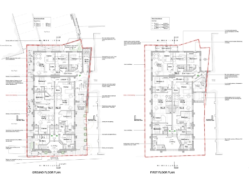
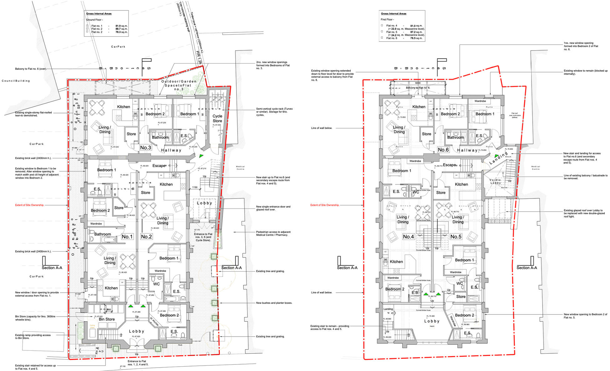
This extraordinary former church, steeped in history and character, offers an exceptional redevelopment opportunity in the heart of Tamworth. Spread across an expansive 1933 square feet, the property boasts a multitude of flexible spaces including a grand Main Worship Room and original school rooms, perfect for conversion into six residential flats thanks to the granted planning consent.
While the absence of dedicated parking may be a consideration, the proximity to public transport and local amenities ensures that future residents will enjoy the convenience of city living. With a welcoming Lobby, convenient kitchen spaces, and added potential for balconies overlooking the town, this property invites buyers to envision a unique living experience infused with charm and history.
Don't miss out on this rare chance to transform a historic landmark into modern residences. Viewings are strictly by appointment only, so act swiftly to secure your opportunity in this sought-after area.
Residential development for sale in Aldergate, Tamworth, B79 — £200,000 • 1 bed • 1 bath • 2730 ft²
High street retail property for sale in 72 Church Street, Tamworth, Staffordshire, B79 7DQ, B79 — £120,000 • 3 bed • 1 bath • 1271 ft²
54 bedroom detached house for sale in Spinning School Lane, Tamworth, Staffordshire, B79 — £1,800,000 • 54 bed • 1 bath • 3055 ft²
2 bedroom terraced house for sale in Ludgate, Tamworth, B79 — £170,000 • 2 bed • 1 bath • 797 ft²
High street retail property for sale in 10 & 11 Silver Street, Tamworth, Staffordshire, B79 7NH, B79 — £320,000 • 1 bed • 1 bath
1 bedroom apartment for sale in Lichfield Street, Tamworth, B79 — £65,000 • 1 bed • 1 bath • 410 ft²










































































































