**Standout Features:**
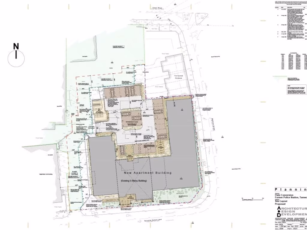
- Prime town center location in Tamworth (B79 postal code)
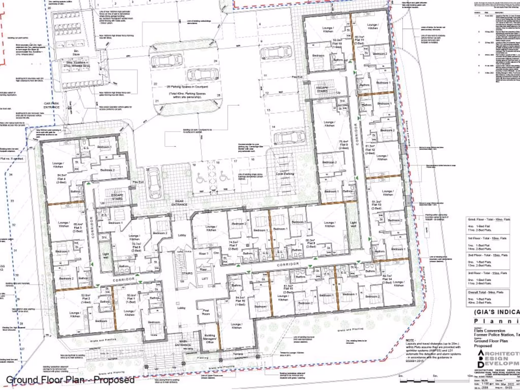
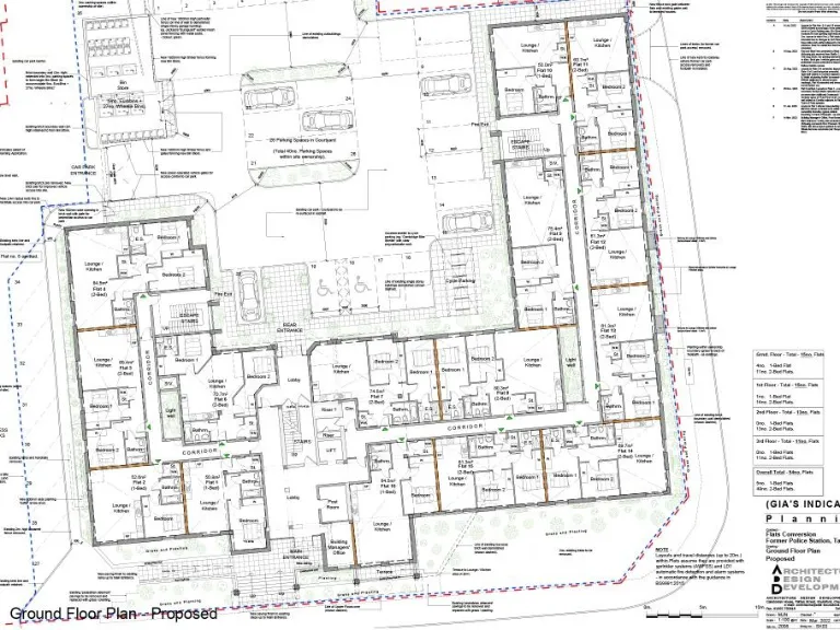
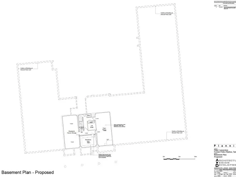
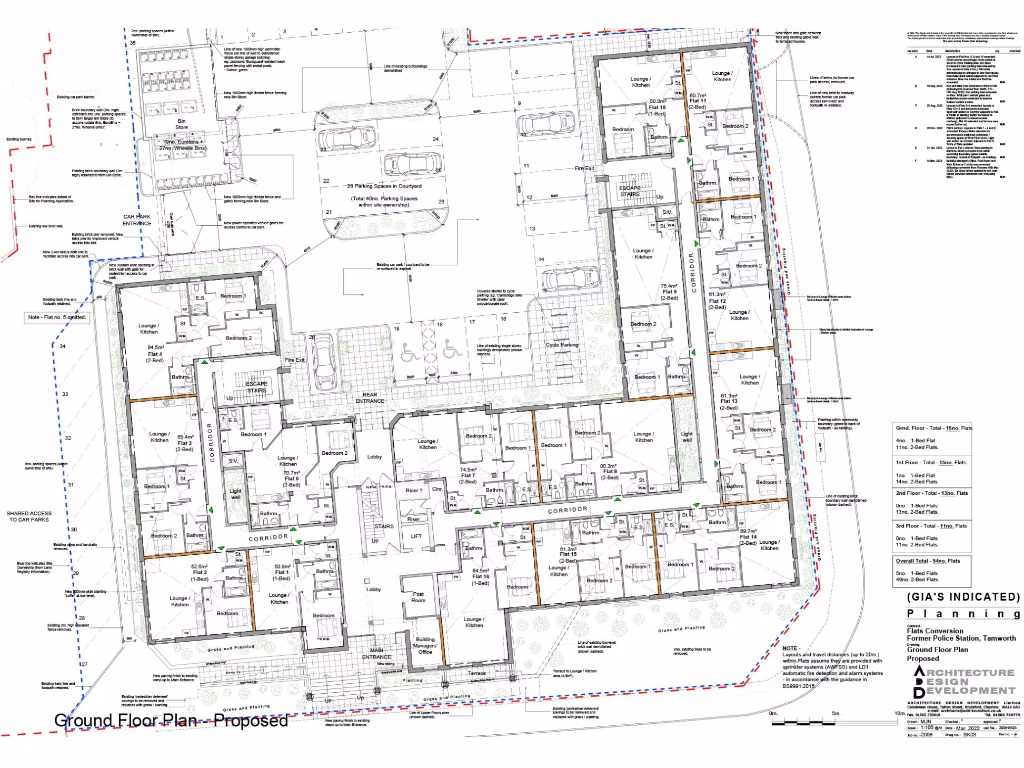
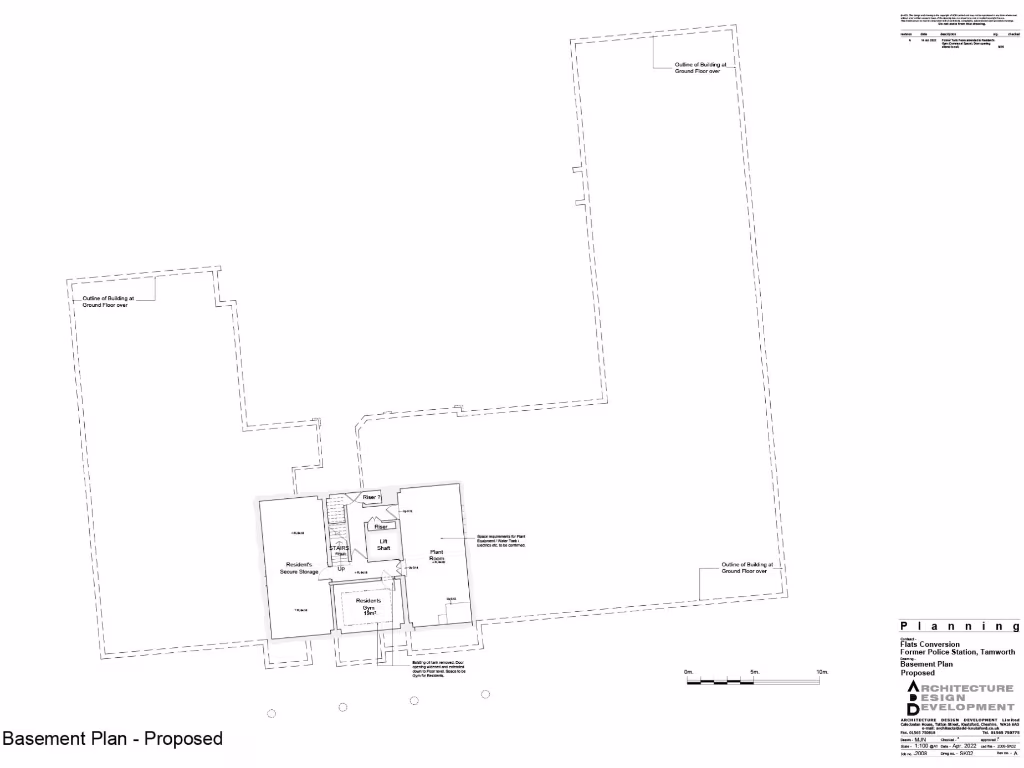
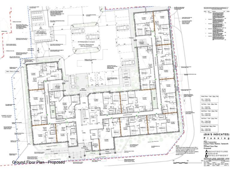
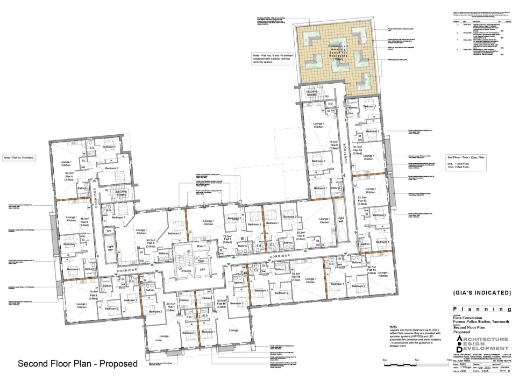
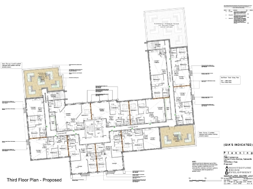
- Planning permission granted for conversion into 54 residential units
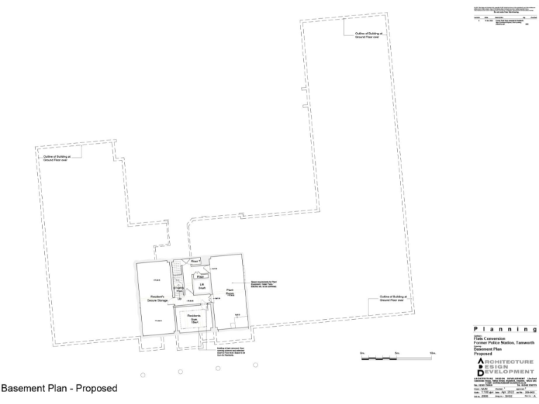
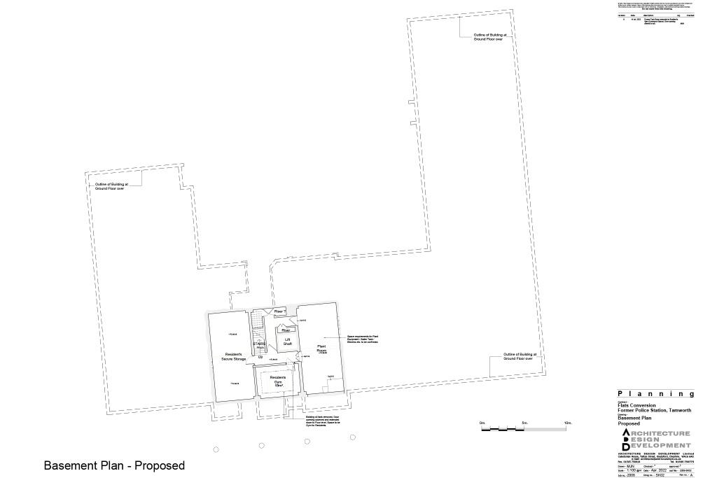
- Includes a residents-only gym and communal areas
- Modern design that maximizes natural light
- Freehold property available via auction
- Excellent transport links and local amenities
**Concerns:**
- Crime rate is very high in the area
- Shortfall of communal space compared to planning guidelines
- Potential renovation and compliance considerations
Seize a remarkable development opportunity in the heart of Tamworth with this former police station, now primed to transform into 54 high-quality apartments featuring modern living spaces and amenities. This freehold property spans over 3055 square feet and is designed to meet Nationally Described Space Standards, including a residents' gym and private balconies for outdoor access. Located centrally, it benefits from excellent transport links and nearby amenities, catering to urban living.
Although the property does face a high crime rate and a slight shortfall in communal space, these factors can be addressed through thoughtful planning. Be part of Tamworth's evolution, and explore the potential for significant returns on this lucrative investment. Act fast—this exceptional opportunity in a prime location won't last long!
Detached house for sale in Aldergate, Tamworth, B79 — £200,000 • 1 bed • 1 bath • 1933 ft²
Residential development for sale in Aldergate, Tamworth, B79 — £200,000 • 1 bed • 1 bath • 2730 ft²
High street retail property for sale in 72 Church Street, Tamworth, Staffordshire, B79 7DQ, B79 — £120,000 • 3 bed • 1 bath • 1271 ft²
Commercial development for sale in Smethwick Police Station, Smethwick, B66 — POA • 1 bed • 1 bath
1 bedroom apartment for sale in Lichfield Street, Tamworth, B79 — £65,000 • 1 bed • 1 bath • 410 ft²
2 bedroom apartment for sale in 'Sedgley Old Police Station' Vicar Street, Sedgley, DY3 — £229,950 • 2 bed • 1 bath • 1054 ft²














































































