**Standout Features:**
- Former church premises built in 1886, rich in historic charm
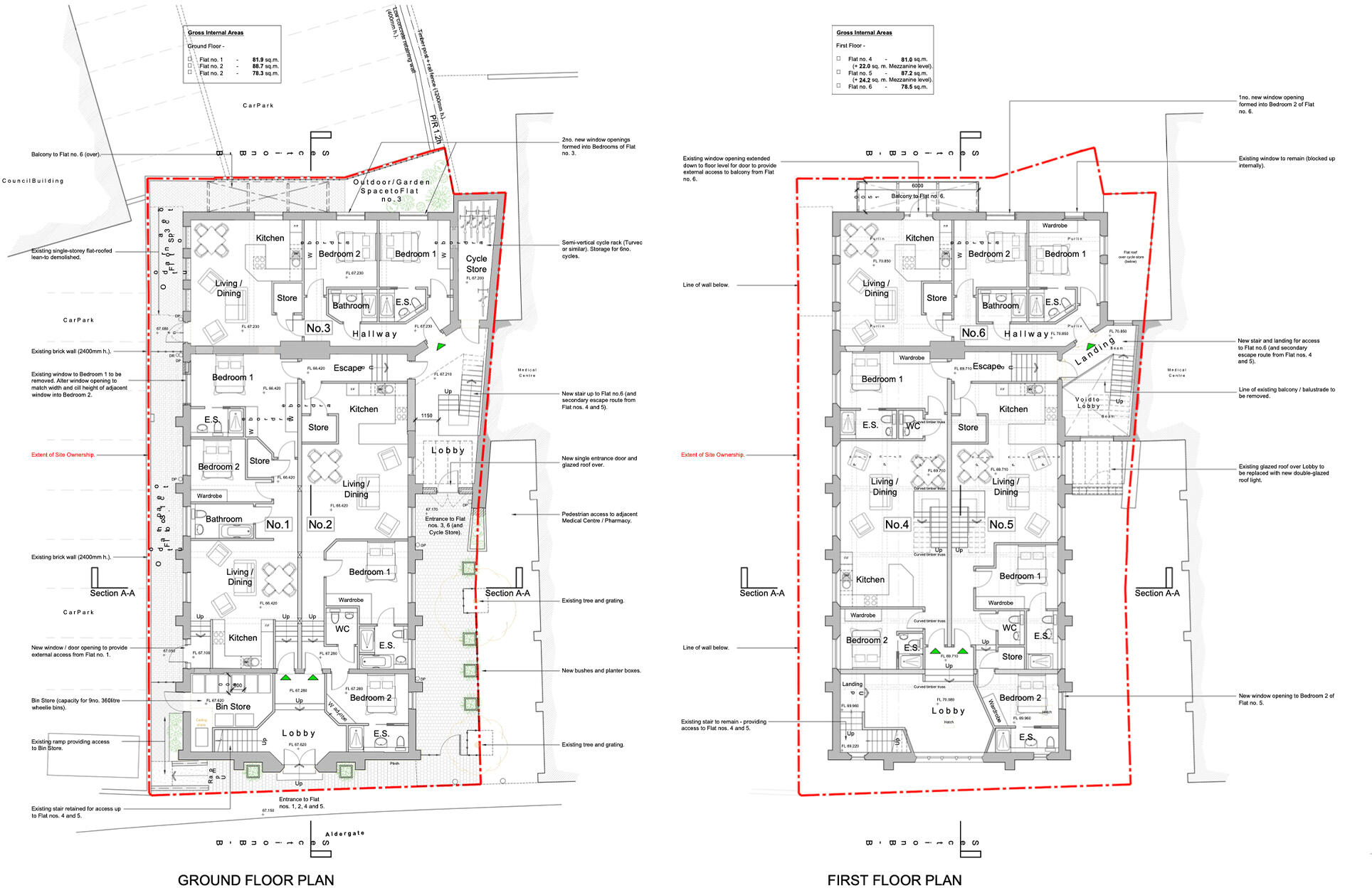
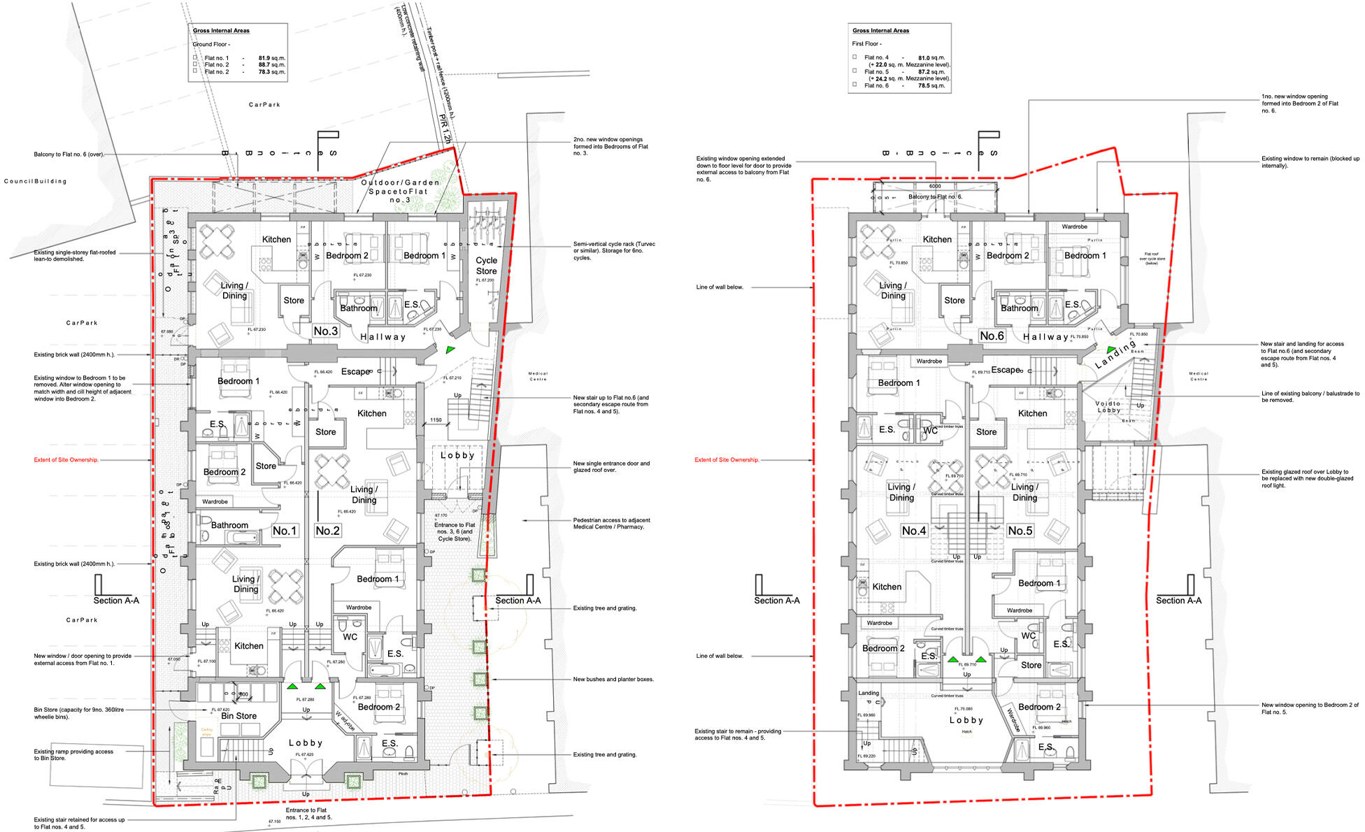
- Full planning consent for conversion into six residential flats
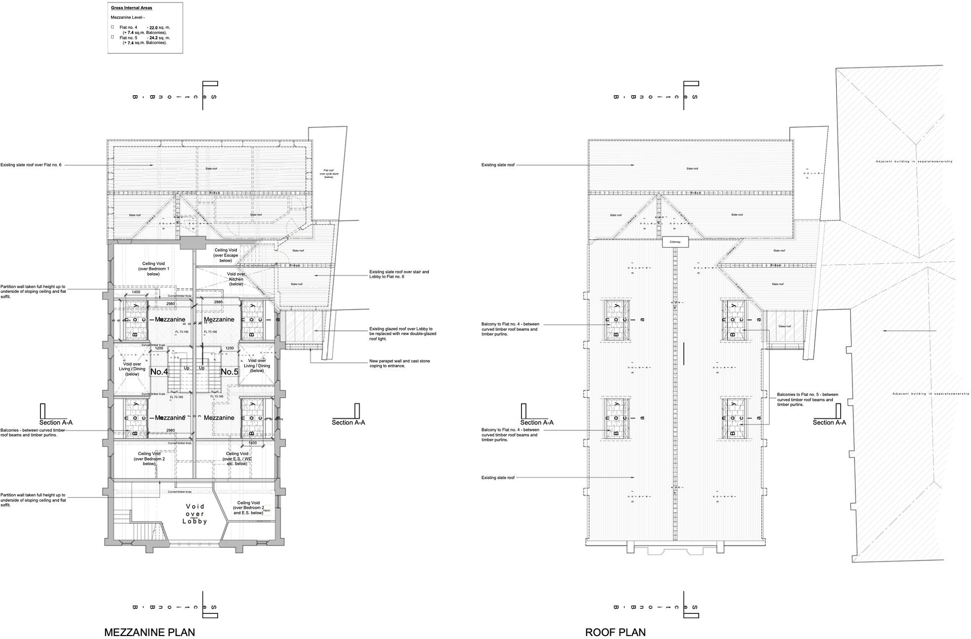
- Unique flexible interior space with original and mezzanine levels
- Prime Tamworth location, close to amenities and transport links
- Large total area of 2,730 sq ft offering substantial development potential
- Auction sale with 56-day completion window
**Concise Summary:**
Unlock the potential of this remarkable former church, constructed in 1886 and brimming with character. Spanning an impressive 2,730 sq ft, this property boasts full planning consent to transform it into six residential flats, with plans for internal alterations and stylish mezzanine balconies. The inviting ground floor layout features a welcoming lobby, a vestry, and spacious meeting and school rooms, ideal for creative redevelopment or community use.
Located in the heart of Tamworth, this unique offering allows for prime access to local amenities, shops, and transport links—perfect for future residents despite the lack of on-site parking. This property is not just a purchase; it’s an opportunity for developers and investors to breathe new life into a historic structure. With a 56-day auction completion window, seize the chance to create something truly special in this thriving area. Book your viewing today and envision your future in this exceptional space!
Detached house for sale in Aldergate, Tamworth, B79 — £200,000 • 1 bed • 1 bath • 1933 ft²
High street retail property for sale in 72 Church Street, Tamworth, Staffordshire, B79 7DQ, B79 — £120,000 • 3 bed • 1 bath • 1271 ft²
54 bedroom detached house for sale in Spinning School Lane, Tamworth, Staffordshire, B79 — £1,800,000 • 54 bed • 1 bath • 3055 ft²
2 bedroom terraced house for sale in Ludgate, Tamworth, B79 — £170,000 • 2 bed • 1 bath • 797 ft²
High street retail property for sale in 10 & 11 Silver Street, Tamworth, Staffordshire, B79 7NH, B79 — £320,000 • 1 bed • 1 bath
High street retail property for sale in Bridge Street, Polesworth, B78 — £850,000 • 1 bed • 1 bath • 5079 ft²










































































































