Ready-to-move 2-bed close to station with parking and modern kitchen.
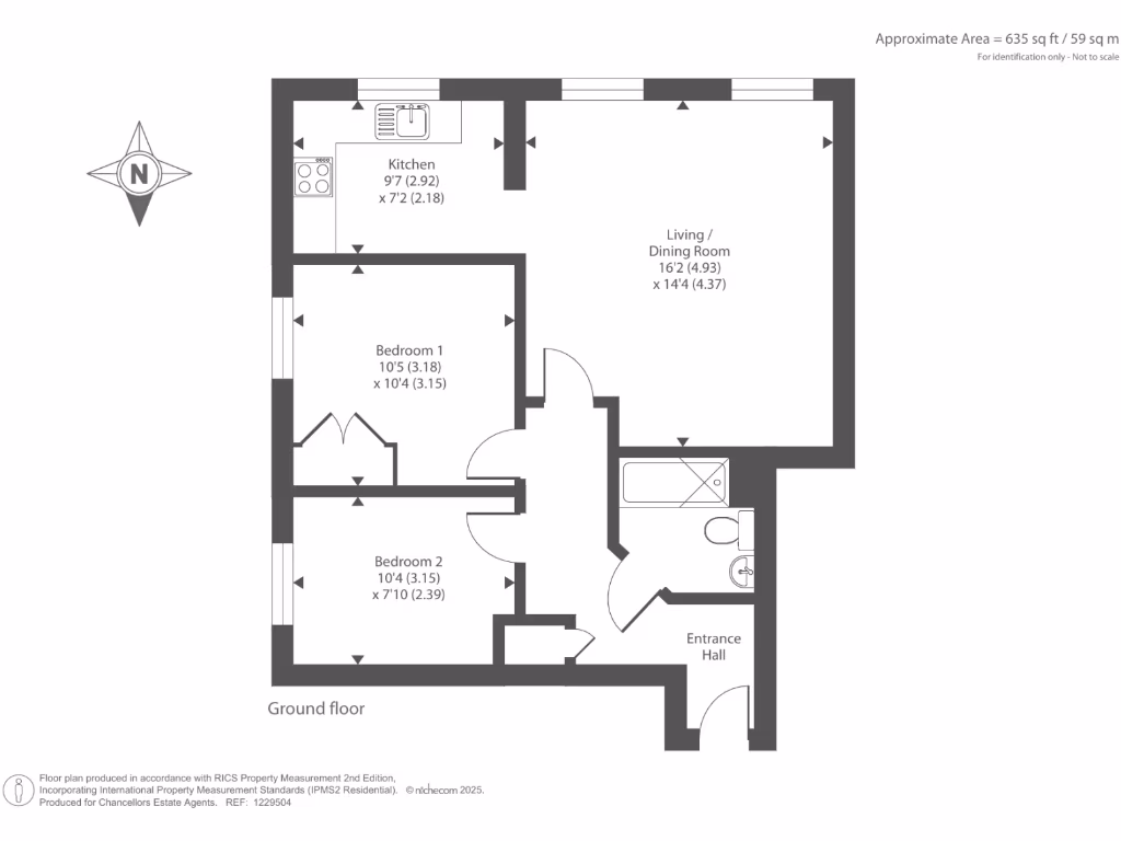
Ground-floor two-bedroom apartment, 635 sq ft, modern block (built 2003–2006)
This ground-floor two-bedroom apartment in Newbury offers practical, low-maintenance living close to transport links. Set within a modern block constructed in the early 2000s, the flat includes a modern fitted kitchen with integrated appliances, a living room, and allocated off-street parking — all within 0.4 miles of Newbury train station.
The layout suits first-time buyers or investors seeking a ready-to-rent property with straightforward upkeep. The 635 sq ft, double-glazed accommodation is functional and neutrally presented, so cosmetic updating would personalise the space without major structural work. There is a storage cupboard in the hallway for additional practicality.
Notable practical considerations are the leasehold status (125-year term from 2003 with around 103 years remaining) and electrically powered heating via room heaters rather than gas central heating. These facts affect running costs and mortgage/legislation considerations for some buyers. The development sits in an area recorded with higher local crime levels, which should be considered alongside the property’s proximity to amenities and transport.
No onward chain makes the purchase timeline simpler. Buyers wanting long-term ownership should factor in the remaining lease length and ongoing service or ground rent obligations. For investors, the combination of location, allocated parking and good broadband/mobile connectivity supports strong rental appeal.
2 bedroom flat for sale in Newbury, Berkshire, RG14 — £225,000 • 2 bed • 2 bath • 710 ft²
2 bedroom flat for sale in Laundry Court, Northway, Newbury, RG14 7FL, RG14 — £185,000 • 2 bed • 1 bath • 659 ft²
2 bedroom flat for sale in Newbury, Berkshire, RG14 — £190,000 • 2 bed • 1 bath • 594 ft²
2 bedroom flat for sale in Newbury, Berkshire, RG14 — £225,000 • 2 bed • 2 bath • 764 ft²
2 bedroom flat for sale in Newbury, Berkshire, RG14 — £220,000 • 2 bed • 2 bath • 624 ft²
2 bedroom apartment for sale in Brunel Court, Old College Road, Newbury, RG14 — £250,000 • 2 bed • 2 bath • 649 ft²










































































