HA3 0QX - 4 bedroom detached house for sale in Shaftesbury Avenue, Ke…

View on Property Piper

4 bedroom detached house for sale in Shaftesbury Avenue, Kenton, Harrow, HA3

Summary - 24 Shaftesbury Avenue, Kenton HA3 0QX

4 bed 1 bath Detached

Large family home in Mount Stewart catchment with huge rear garden.
Four generous double bedrooms, plenty of family space
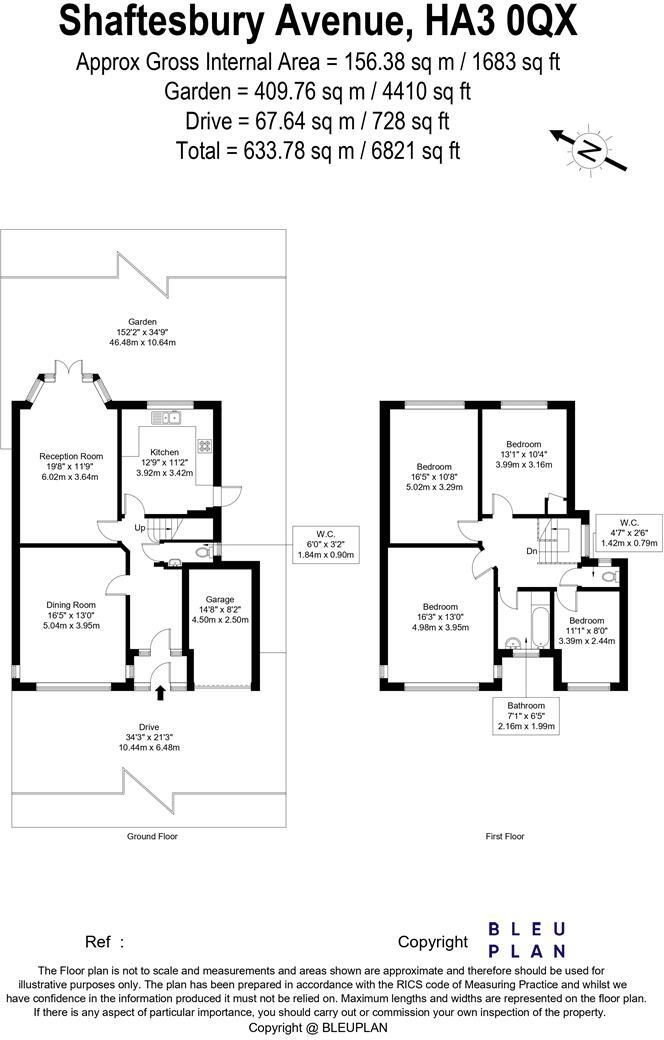
Spacious 1930s detached family home set on a large plot in the Mount Stewart catchment, designed for growing families who value space and school access. Four double bedrooms and two generous reception rooms provide flexible living areas for family life, while leaded-light windows and other original features retain period charm.

The ground floor includes a large modern fitted kitchen with integrated appliances and room for a breakfast table, plus a guest cloakroom and a welcoming entrance hall. Outside, an attractive landscaped rear garden in excess of 100' offers privacy and plenty of room for children to play, gardening or a rear extension subject to the usual consents.

Practical benefits include an integral garage, private drive with parking for three to four cars, excellent broadband and strong mobile signal. The property has an Energy Performance Certificate rating of D and solid brick construction (assumed uninsulated), so upgrading insulation or energy systems could improve comfort and running costs.

Important considerations: there is a single family bathroom serving four double bedrooms, and the property sits in Council Tax Band G so ongoing local taxation is relatively high. While well maintained externally, there is clear scope for internal modernisation and possible extension for buyers seeking added value.

Property Details

Brochure Descriptions

Image Descriptions

Floorplan Description

Rooms

Textual Property Features

Target Audience

AI Tags

Detected Visual Features

EPC Details

Nearby Schools

Nearest Bars And Restaurants

,,,,}

Nearest General Shops

,,}

Nearest Grocery shops

,,}

Nearest Supermarkets

,,}

Nearest Religious buildings

,,}

Nearest Medical buildings

,,,}

Nearest Airports

,}

Nearest Leisure Facilities

,,,,}

Nearest Tourist attractions

,,}

Nearest Train stations

,,,,}

Nearest Bus stations and stops

,,,,}

Nearest Hotels

,,}

Tags

Local Market Stats

AirBnB Data

Similar Properties

Meta

High Res Images

Compatible Images

Low res Images

Thumbnails

Raw Images

High Res Floorplan Images

Compatible Floorplan Images

Low res Floorplan Images

FloorplanImages Thumbnail

Raw Floorplan Images