Contemporary family living in an energy-efficient rural setting.
Three double-fronted bedrooms with ensuite to the main bedroom
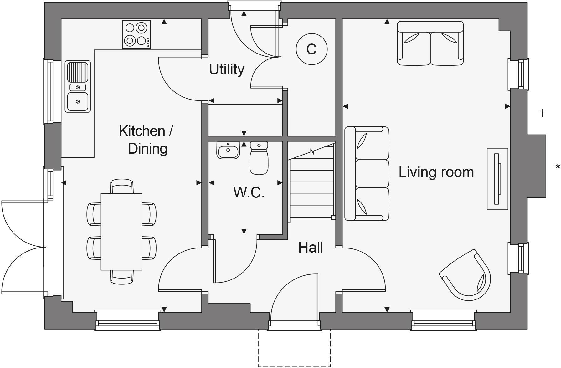
Open-plan kitchen-dining with French doors to the rear garden
Single garage plus two driveway parking spaces
Energy-efficient new build with 10-year Premier warranty
Estimated move-in March–May 2026 (plan ahead)
Large corner plot with good curb appeal and private garden
Council tax band TBC; confirm final figures before exchange
Some images/specifications illustrative; finishes may vary
The Gosford at The Orchard is a newly built, energy-efficient three-bedroom detached home arranged over two floors, designed for comfortable family living. A dual-aspect living room and open-plan kitchen-dining area with French doors create a bright social heart that flows to a generous rear garden on a prominent corner plot. Bedroom 1 includes an ensuite shower; further bedrooms and a family bathroom offer practical sleeping space for children or guests.
Practical benefits include a single garage, two driveway parking spaces, a separate utility room, cloakroom, and useful storage provision. The home comes with a 10-year Premier warranty and a 2-year builder warranty from a 5* HBF house builder, helping reduce early ownership risk. An estimated move-in window of March–May 2026 suits buyers who can plan ahead.
This is a rural, affluent setting close to local schools (including Felsted options) and basic bus links; broadband speeds are listed as fast and crime levels low. Buyers should note some details remain to be confirmed (council tax band TBC) and that images or finishes shown may be illustrative; dimensions and specifications can vary. The plot’s large corner position and energy-efficient new construction are clear positives for families seeking low-maintenance, modern accommodation.
3 bedroom detached house for sale in Station Road,
Little Dunmow,
Essex,
CM6 3HW, CM6 — £490,000 • 3 bed • 1 bath
3 bedroom detached house for sale in Stortford Road,
Dunmow,
CM6 1SG, CM6 — £490,000 • 3 bed • 1 bath
3 bedroom detached house for sale in Parsonage Road,
Takeley,
CM22 6PU, CM22 — £475,000 • 3 bed • 1 bath
4 bedroom detached house for sale in Station Road,
Little Dunmow,
Essex,
CM6 3HW, CM6 — £670,000 • 4 bed • 1 bath
3 bedroom detached house for sale in Station Road,
Little Dunmow,
Essex,
CM6 3HW, CM6 — £485,000 • 3 bed • 1 bath
4 bedroom detached house for sale in Station Road,
Little Dunmow,
Essex,
CM6 3HW, CM6 — £595,000 • 4 bed • 1 bath










































