Comfortable family home on a large private plot near good schools.
New build three-bedroom detached home with ensuite to principal bedroom
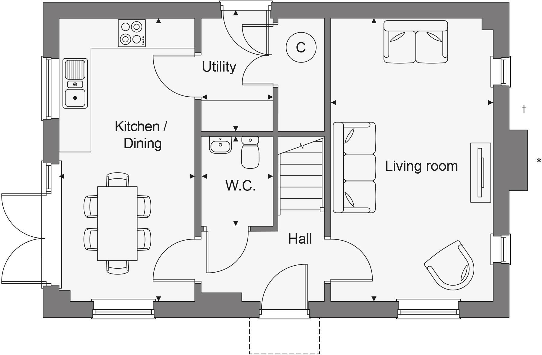
Open-plan kitchen-dining with French doors to private rear garden
Separate utility room, cloakroom and large ground-floor store cupboard
Two allocated off-street parking spaces; very large private plot
10-year NHBC warranty plus 2-year builder warranty included
Estimated move-in June–August 2026; timing may change
Council Tax band to be confirmed; specifications and images may vary
Excellent mobile signal and fast broadband; no recorded flood risk
The Gosford is a newly built three-bedroom detached home designed for comfortable family living. Ground floor features include a dual-aspect living room, open-plan kitchen-dining area with French doors to a private rear garden, separate utility and cloakroom — practical for everyday life and entertaining. Two allocated parking spaces sit to the front of the home for easy off-street parking.
Upstairs, the principal bedroom benefits from an ensuite shower room, plus two further bedrooms and a family bathroom. Built in 2026, the property comes with a 10-year NHBC warranty and a 2-year warranty from a 5-star HBF builder, offering substantial reassurance for the first years of ownership. Broadband and mobile signal are excellent and the home has no recorded flood risk.
Located in the Dunmow area with several highly rated local schools within easy reach, the house suits families seeking countryside-fringe living with convenient town amenities nearby. The plot is very large, providing good garden space for children and outdoor entertaining.
Buyers should note a few practical points: estimated move-in is June–August 2026, Council Tax band is not yet confirmed, and some images and specification details shown may be illustrative and subject to change. The home is offered freehold.
3 bedroom detached house for sale in Station Road,
Little Dunmow,
Essex,
CM6 3HW, CM6 — £490,000 • 3 bed • 1 bath
3 bedroom detached house for sale in Station Road,
Little Dunmow,
Essex,
CM6 3HW, CM6 — £490,000 • 3 bed • 1 bath
3 bedroom detached house for sale in Station Road,
Little Dunmow,
Essex,
CM6 3HW, CM6 — £475,000 • 3 bed • 1 bath
3 bedroom detached house for sale in Panfield Road,
Bocking,
Braintree,
CM7 5BJ, CM7 — £455,000 • 3 bed • 1 bath
4 bedroom detached house for sale in Station Road,
Little Dunmow,
Essex,
CM6 3HW, CM6 — £595,000 • 4 bed • 1 bath
4 bedroom detached house for sale in Station Road,
Little Dunmow,
Essex,
CM6 3HW, CM6 — £550,000 • 4 bed • 1 bath


















































