Contemporary family home with large garden and parking.
Freehold three-bedroom detached home with huge private plot
Open-plan kitchen-dining with French doors to rear garden
Principal bedroom with ensuite shower room
Two allocated off-street parking spaces
10-year NHBC warranty plus 2-year builder warranty
Estimated move-in: June–August 2026
Slow local broadband speeds; check connectivity for working from home
Local area records higher crime levels; consider security measures
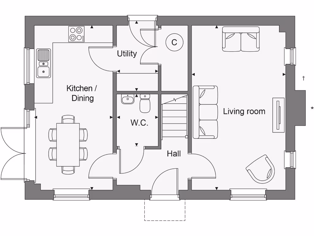
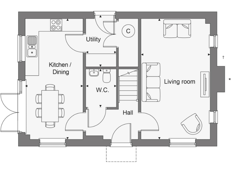
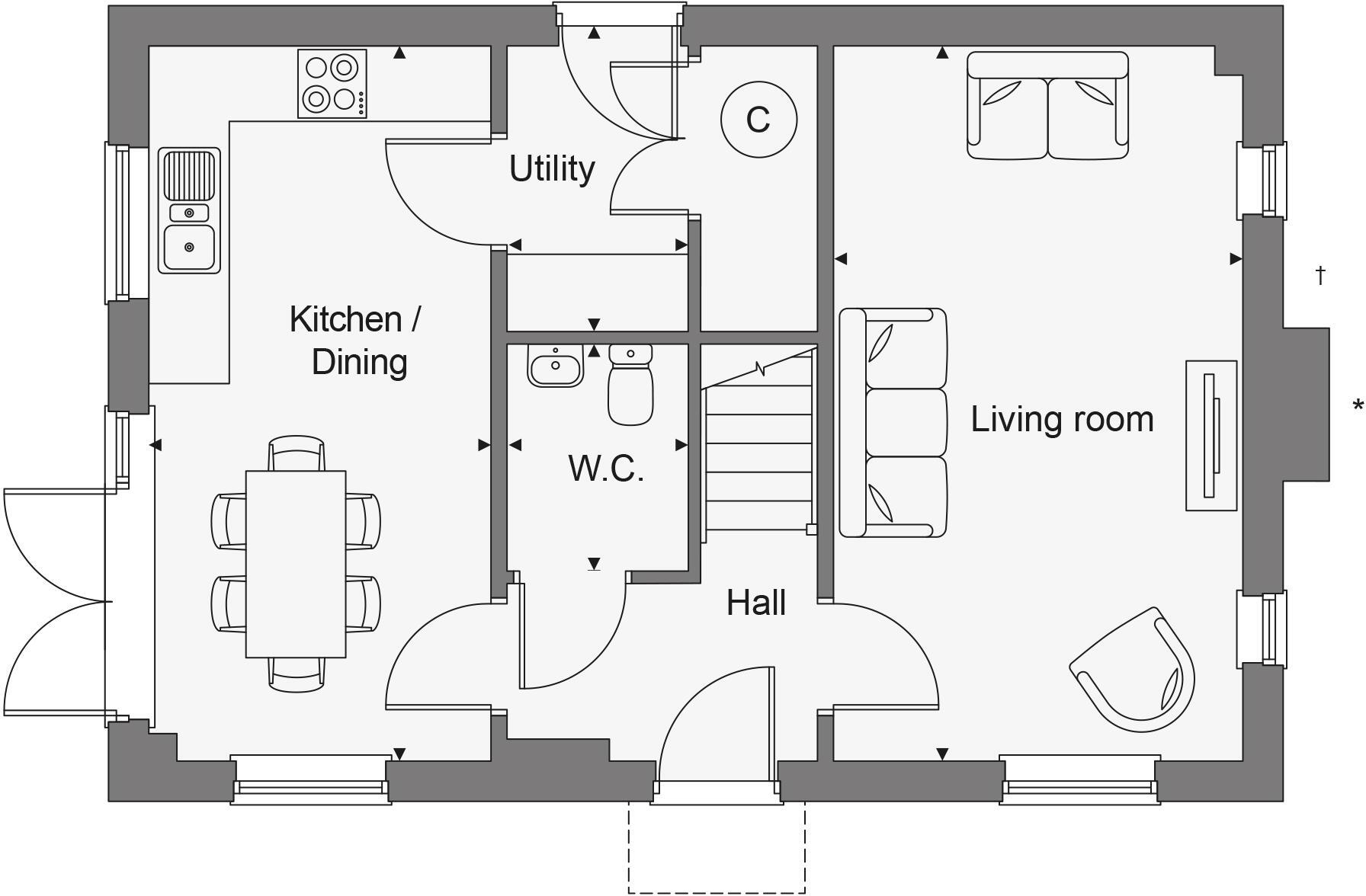
The Gosford is a three-bedroom double-fronted detached home designed for comfortable family living. The ground floor offers a dual-aspect living room, open-plan kitchen-dining room with French doors onto a private rear garden, plus a utility room, cloakroom and a large store cupboard. Two allocated off-street parking spaces sit to the front of the house.
Upstairs, the principal bedroom includes an ensuite shower room; two further bedrooms and a family bathroom complete the sleeping accommodation. The property sits on a very large plot in a village setting close to several well-rated primary and secondary schools, making it well suited to growing families.
Buyers benefit from a 10-year NHBC warranty and a 2-year builder warranty from a 5* HBF house builder, with an estimated move-in between June and August 2026. The home is freehold and designed with contemporary finishes, integrated appliances and double-glazed windows.
Notable practical points: local broadband speeds are reported slow and the area records higher crime levels, which should be considered alongside the property’s strong curb appeal and large garden. Council Tax band is to be confirmed and some images may be illustrative of other developments.
3 bedroom detached house for sale in Stortford Road,
Dunmow,
CM6 1SG, CM6 — £490,000 • 3 bed • 1 bath
3 bedroom detached house for sale in Station Road,
Little Dunmow,
Essex,
CM6 3HW, CM6 — £490,000 • 3 bed • 1 bath
3 bedroom detached house for sale in Station Road,
Little Dunmow,
Essex,
CM6 3HW, CM6 — £475,000 • 3 bed • 1 bath
3 bedroom detached house for sale in Panfield Road,
Bocking,
Braintree,
CM7 5BJ, CM7 — £455,000 • 3 bed • 1 bath
2 bedroom semi-detached house for sale in Parsonage Road,
Takeley,
CM22 6PU, CM22 — £375,000 • 2 bed • 1 bath
3 bedroom semi-detached house for sale in Parsonage Road,
Takeley,
CM22 6PU, CM22 — £470,000 • 3 bed • 1 bath


















































