Rural 6.5-acre plot with Class Q consent and a live-in lodge for immediate occupation.
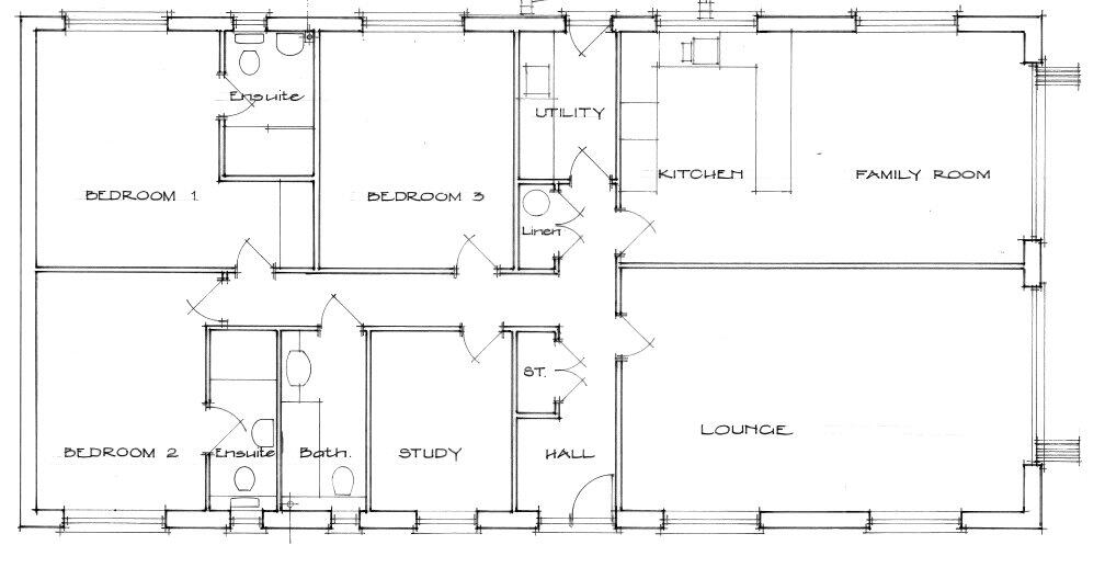
Planning granted under Class Q for 1 dwelling (3 bed, 2 ensuite)
About 6.5 acres: two paddocks, woodland and orchard
2-bed lodge on site with water, electric and private drainage
Borehole water and private drainage installed; mains electric to lodge
Steel-framed barn with wood/clad and corrugated iron — needs renovation
Broadband very slow; mobile signal average in area
Boundaries, exact plot area and tenure not guaranteed — buyer to verify
Situated on private no-through lane; peaceful but fairly remote
This is a rare countryside opportunity: a steel-framed barn with Class Q permission to create a single-storey 3-bedroom (two ensuite) dwelling, set within about 6.5 acres of paddock, orchard and woodland. The site includes a ready-to-live-in 2-bedroom lodge with water, electric and private drainage connected, allowing occupation while works proceed. Private borehole water and mains electricity to the lodge are already installed.
The barn sits in a sheltered, private position on a no-through lane with good privacy and views over its own land — ideal for a family seeking a rural lifestyle, a smallholding or equestrian use. The plot is level-to-gently undulating, split into two paddocks plus approximately one acre of mixed orchard and woodland. Local towns Holsworthy, Hatherleigh and Okehampton provide amenities and road links to the A30 and beyond.
Buyers should note material points: broadband is very slow and mobile signal is only average, the barn exterior is run-down and will require renovation and building works to complete the conversion, and boundaries and exact areas are for buyer verification. Tenure details and council tax band are not provided; purchasers must satisfy themselves on these and on services, planning conditions and building regulations.
Overall this parcel suits purchasers seeking privacy, space and rural living with planning already in place for a substantial single-storey home. The existing lodge provides comfortable interim accommodation and the land offers scope for small-scale grazing, equestrian use or a productive orchard, subject to checks and consents.
Plot for sale in Pyworthy, Holsworthy, Devon, EX22 — £425,000 • 1 bed • 1 bath
Plot for sale in Cookbury, Holsworthy, Devon, EX22 — £150,000 • 1 bed • 1 bath
Farm for sale in Patchacott, Beaworthy, Devon, EX21 — £1,250,000 • 4 bed • 2 bath • 2283 ft²
Land for sale in Shebbear, EX21 — £300,000 • 1 bed • 1 bath • 1350 ft²
Land for sale in Brandis Corner, Holsworthy, EX22 — £450,000 • 1 bed • 1 bath
Land for sale in Petrockstowe, Okehampton, EX20 — £250,000 • 1 bed • 1 bath


























































