Ideal family home with upgraded kitchen, garden and garage in affluent Overstone.
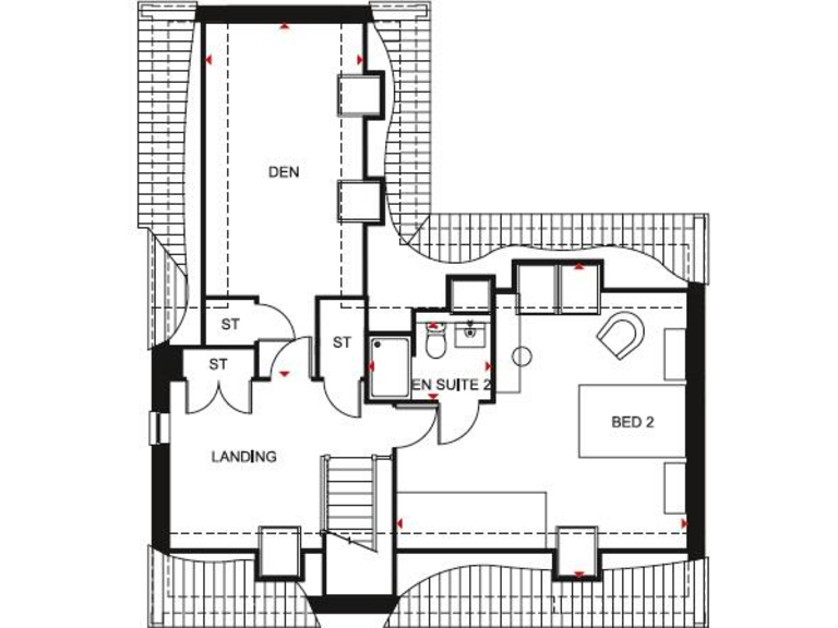
Five bedrooms across three floors with two en suites
A newly built five-bedroom house arranged across three floors, this property suits a growing family seeking space and modern fittings. The ground floor offers an open-plan kitchen/family area with French doors to the garden, a separate dining room, and a spacious lounge — all designed for everyday living and entertaining. An adjoining utility room and a downstairs WC add practical convenience.
Sleeping accommodation includes a large main bedroom with a full en suite, three further double bedrooms and a family bathroom on the first floor, plus a top-floor double with en suite, a cosy den and a roomy landing. The floorplan gives flexible space for home working, children's rooms and guest accommodation. Room dimensions are generous throughout, with the lounge and kitchen/family areas notably large.
Outside, the house benefits from a decent plot with a garden, driveway space for four cars and a double garage. The property overlooks a swale, and local digital connectivity is strong (excellent mobile, fast broadband). A deposit contribution and an upgraded fully integrated kitchen are included, reducing immediate outlay for a buyer.
Practical points to note: crime levels in the area are above average, tenure is not stated, and the listing records one family bathroom in addition to en suites. As a new build, the home will have the finishes and layout typical of modern developments; buyers should check specification details and any estate management arrangements for the development.
5 bedroom detached house for sale in Stratford Drive
Overstone
NN6 0RP, NN6 — £699,995 • 5 bed • 1 bath • 1780 ft²
5 bedroom detached house for sale in Stratford Drive
Overstone
NN6 0RP, NN6 — £729,995 • 5 bed • 1 bath • 2515 ft²
5 bedroom detached house for sale in Stratford Drive
Overstone
NN6 0RP, NN6 — £639,995 • 5 bed • 1 bath • 1972 ft²
5 bedroom detached house for sale in Stratford Drive
Overstone
NN6 0RP, NN6 — £624,995 • 5 bed • 1 bath • 1487 ft²
4 bedroom detached house for sale in Stratford Drive
Overstone
NN6 0RP, NN6 — £599,995 • 4 bed • 1 bath • 1503 ft²
5 bedroom detached house for sale in Stratford Drive
Overstone
NN6 0RP, NN6 — £559,995 • 5 bed • 1 bath • 1275 ft²






















































