Generous family home with garage, garden and countryside outlook..
5 bedrooms and 2,515 sqft of family-oriented living space
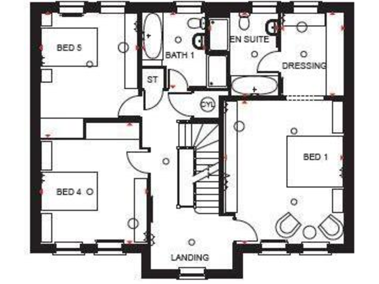
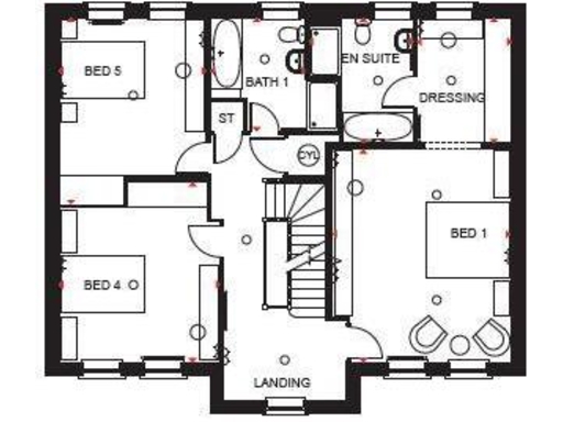
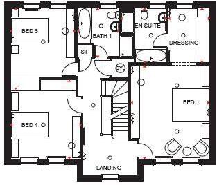
Main bedroom with dressing room and ensuite, generous proportions
Open-plan kitchen/family area with French doors to garden
Double garage plus private driveway for four cars
Three spacious bathrooms with baths across floors
New-build on a named development — marketing images used
Tenure not specified; buyers should confirm legally before exchange
Local crime recorded above average despite affluent area
This New Build five-bedroom detached home sits on a generous plot in the Overstone Gate development, overlooking green space and designed for family living. At 2,515 sqft the layout includes a large main bedroom with dressing room and ensuite, flexible reception rooms, a study and a kitchen/family area opening onto the garden — ideal for daily life and entertaining.
Practical highlights include a double garage, private driveway for four cars, utility room, and three spacious bathrooms with baths. The property is offered with a 5% deposit boost (worth £37,500) or a 105% part-exchange option, plus a top-of-the-range kitchen upgrade — useful incentives for buyers looking to move quickly.
Buyers should note material facts: this is a new-build plot within a branded development and photographic materials supplied are marketing images rather than individual-property photographs. Tenure is not specified. The area is very affluent with excellent mobile and fast broadband, but recorded local crime levels are above average. Overall this home suits a growing family seeking a modern, spacious house in a prospering countryside setting close to Northampton.
5 bedroom detached house for sale in Stratford Drive
Overstone
NN6 0RP, NN6 — £729,995 • 5 bed • 1 bath • 2134 ft²
5 bedroom detached house for sale in Stratford Drive
Overstone
NN6 0RP, NN6 — £639,995 • 5 bed • 1 bath • 1671 ft²
5 bedroom detached house for sale in Stratford Drive
Overstone
NN6 0RP, NN6 — £699,995 • 5 bed • 1 bath • 1780 ft²
4 bedroom detached house for sale in Stratford Drive
Overstone
NN6 0RP, NN6 — £544,995 • 4 bed • 1 bath • 1302 ft²
4 bedroom detached house for sale in Stratford Drive
Overstone
NN6 0RP, NN6 — £522,995 • 4 bed • 1 bath • 1539 ft²
4 bedroom detached house for sale in Stratford Drive
Overstone
NN6 0RP, NN6 — £623,995 • 4 bed • 1 bath • 1765 ft²














































