**Standout Features:**
- **Self-build plot**: Approximately 0.11 acres with outline planning permission pending.
- **Connected services**: Electricity, water, and mains drainage available at the boundary.
- **Countryside views**: Scenic vistas at the rear enhance the tranquil setting.
- **Access**: Direct highway access via a private, block-paved road.
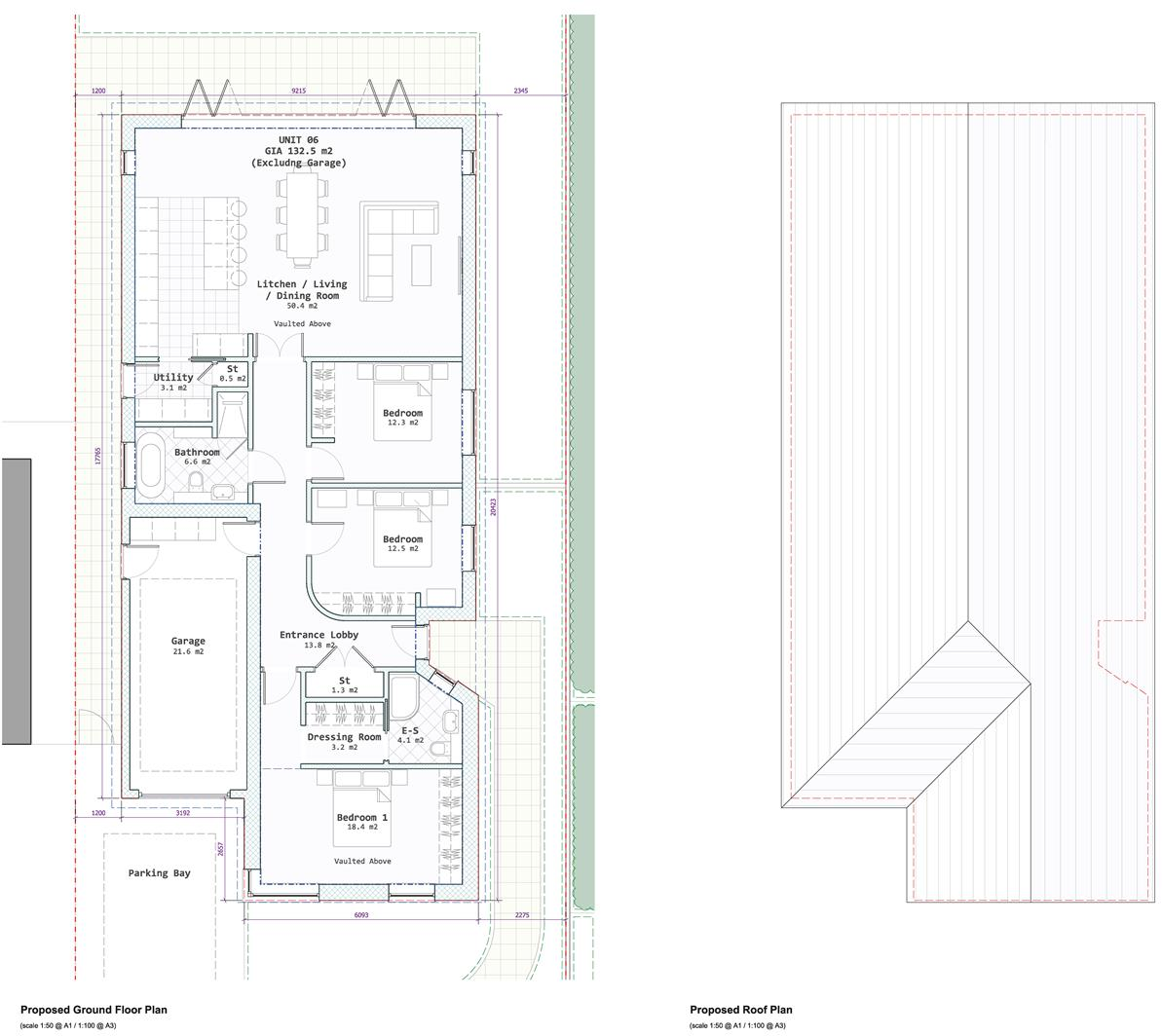
- **Potential layout**: Indicative plans for a bespoke detached bungalow of approx. 1,400 sq ft available.
This self-build plot in Franceska Gardens, on the tranquil fringes of Alresford, presents a unique opportunity for those eager to realize their dream home. Measuring approximately 122ft by 41ft, this freehold plot is ideally positioned to enjoy captivating countryside views, making it a perfect retreat from urban life. With essential services already connected to the boundary, you can focus on designing your ideal space without the hassle of lengthy installations. 
The plot forms part of a small development of modern executive homes nearing completion, complementing the serene living environment. You will find local amenities, schools, and public transport options within a mile’s reach, enhancing both convenience and lifestyle. Note that the acquisition will hinge on satisfactory outline planning consent, but the potential here is ripe for those looking to create a bespoke living space tailored to their specifications. Enjoy the advantages of countryside living while maintaining access to urban conveniences—secure this plot before it’s gone!
 Plot for sale in Hunters Chase, Ardleigh, CO7 — £300,000 • 1 bed • 1 bath
 Plot for sale in Hunters Chase, Ardleigh, CO7 — £300,000 • 1 bed • 1 bath Plot for sale in Hunters Chase, Ardleigh, Colchester, Essex, CO7 — £375,000 • 3 bed • 1 bath
 Plot for sale in Hunters Chase, Ardleigh, Colchester, Essex, CO7 — £375,000 • 3 bed • 1 bath Plot for sale in Finch Way, Parsons Heath, Colchester, Essex, CO4 — £250,000 • 1 bed • 1 bath • 2500 ft²
 Plot for sale in Finch Way, Parsons Heath, Colchester, Essex, CO4 — £250,000 • 1 bed • 1 bath • 2500 ft² Land for sale in Land Adjacent To Cross Farm, Station Road, Thorrington, Essex, CO7 — £600,000 • 1 bed • 1 bath
 Land for sale in Land Adjacent To Cross Farm, Station Road, Thorrington, Essex, CO7 — £600,000 • 1 bed • 1 bath Land for sale in Land Adjacent to Cross Farm, Station Road, Thorrington, Colchester, CO7 — £600,000 • 1 bed • 1 bath • 5000 ft²
 Land for sale in Land Adjacent to Cross Farm, Station Road, Thorrington, Colchester, CO7 — £600,000 • 1 bed • 1 bath • 5000 ft² Plot for sale in Primrose Hill, Wrabness, Manningtree, Essex, CO11 — £165,000 • 1 bed • 1 bath • 1214 ft²
 Plot for sale in Primrose Hill, Wrabness, Manningtree, Essex, CO11 — £165,000 • 1 bed • 1 bath • 1214 ft²


















